Les infos Essentielles
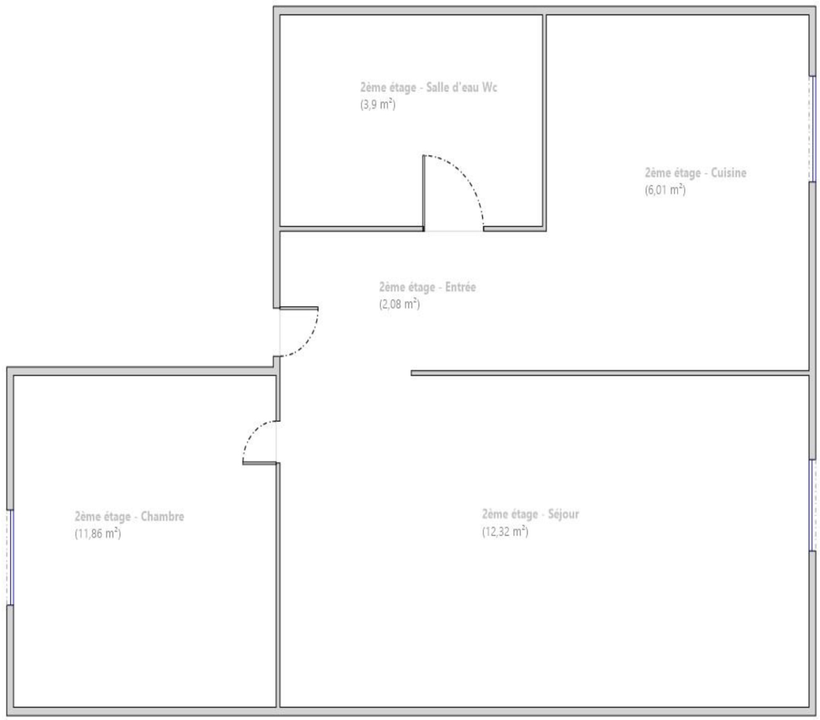
EXCLUSIVITE - PARIS 20ème - MENILMONTANT - Cet appartement 2 pièces d'une surface de 36 m2 environ vous séduira par ses nombreux atouts. Situé au 2ème étage sans ascenceur d'une petite copropriété d'un immeuble datant de 1860, il est lumineux, traversant, en bon état, fonctionnel et sans aucune perte de place. Il comprend une entrée, un séjour avec vue dégagée, une chambre avec de nombreux rangements (penderie et commode), une cuisine séparée aménagée et équipée ainsi qu'une salle de douche avec WC. Ballon d'eau chaude récent. Double vitrage. Porte blindée. Parties communes propres. Bon diagnostic (D). Copropriété sécurisée avec digicode. Vie de quartier très agréable. Proximité immédiate commerces, marché, restaurants et transports (nombreux bus, métro - ligne 2, station Ménilmontant et ligne 3, station Père Lachaise). Proche square des Amandiers, Belleville, Père Lachaise. Idéal primo-accédants, pied à terre. Bienvenue pour les visites !
Annonce proposée par un agent commercial
Localisation Du bien
-
Commerces et santé
-
Loisirs
-
Ecoles
-
Transports
-
Pratique
Les infos Energetiques
Détails des diagnostics énergétiques
Montant estimé des dépenses annuelles d'énergie de ce logement pour un usage standard est compris entre 480 € et 680 € . 2021 étant l'année de référence des prix de l'énergie utilisés pour établir cette estimation.
