Les infos Essentielles
BRS – OPPORTUNITÉ À BORDEAUX (RUE DE LEYBARDIE) – DUPLEX 3 PIÈCES DE 75 M² À PRIX MAÎTRISÉ
Accédez à la propriété au cœur de Bordeaux grâce au dispositif du Bail Réel Solidaire (BRS), une solution sécurisée qui permet d’acheter votre résidence principale à un prix significativement inférieur au marché.
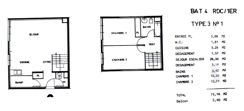
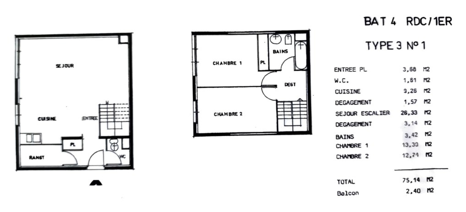
Découvrez ce spacieux appartement 3 pièces en duplex de 75 m², proposé à 157 600 €, idéal pour un premier achat dans un secteur urbain dynamique et en pleine évolution.
Situé au sein d’une résidence construite dans les années 90, ce bien offre des volumes généreux et une configuration en duplex particulièrement recherchée, permettant de bien distinguer les espaces de vie et les espaces nuit.
L’appartement se compose de :
- Un séjour confortable et lumineux, adapté à la vie quotidienne
- Deux chambres, idéales pour un couple, une famille ou un télétravail optimisé
- Une organisation fonctionnelle sur deux niveaux, apportant un réel confort d’usage
Vous bénéficierez également d’un balcon de 2 m², permettant de profiter d’un extérieur en complément de l’espace intérieur.
Un emplacement stratégique à Bordeaux Bastide / secteur Brazza – en pleine transformation urbaine :
Situé rive droite, rue de Leybardie, le bien s’inscrit dans un environnement en fort développement, à proximité immédiate de projets d’aménagement récents et d’espaces urbains modernisés.
Le quartier bénéficie de nombreux atouts :
- Proximité de la zone Brazza, secteur en plein renouveau avec commerces, équipements et logements récents
- Accès rapide au centre-ville de Bordeaux via le pont Chaban-Delmas
- À proximité du tramway (ligne A) permettant de rejoindre facilement les quais, la place Stalingrad ou le centre historique
- Présence de commerces de proximité, écoles et services facilitant le quotidien
Ce secteur attire de plus en plus d’acquéreurs grâce à son potentiel de valorisation et sa proximité avec les grands projets urbains bordelais.
Dans le cadre du BRS, vous dissociez le foncier du bâti, ce qui permet de réduire fortement le coût d’acquisition tout en accédant à la propriété dans une grande métropole.
La redevance foncière mensuelle est de 115,41 €
Ce dispositif est soumis à des conditions de ressources et d’éligibilité, basées sur le revenu fiscal de référence (avis 2025 sur revenus 2024) :
- 1 personne : 38 844 €
- 2 personnes : 58 057 €
- 3 personnes : 76 105 €
- 4 personnes : 90 863 €
- 5 personnes : 108 107 €
Ce logement est destiné exclusivement à un usage en résidence principale, conformément aux règles du Bail Réel Solidaire.
Une opportunité rare à Bordeaux, idéale pour devenir propriétaire à prix maîtrisé dans un secteur en pleine mutation, alliant accessibilité, volumes et potentiel à moyen terme.
Testez dès maintenant votre éligibilité grâce au simulateur disponible sur le site MY BRS, spécialiste de l’accompagnement en Bail Réel Solidaire.
Localisation Du bien
-
Commerces et santé
-
Loisirs
-
Ecoles
-
Transports
-
Pratique
Les infos Energetiques
Ce site est protégé par reCAPTCHA, les Politiques de Confidentialité et les Conditions d'Utilisation de Google s'appliquent.
Détails des diagnostics énergétiques
Montant estimé des dépenses annuelles d'énergie de ce logement pour un usage standard est compris entre 820 € et 1 160 € . 2023 étant l'année de référence des prix de l'énergie utilisés pour établir cette estimation.
