Les infos Essentielles
Situé dans une petite copropriété moderne datant de 2000, à proximité des gares de Viroflay Rive Droite et Viroflay Rive Gauche, retrouvez cet appartement situé au premier étage avec ascenseur.
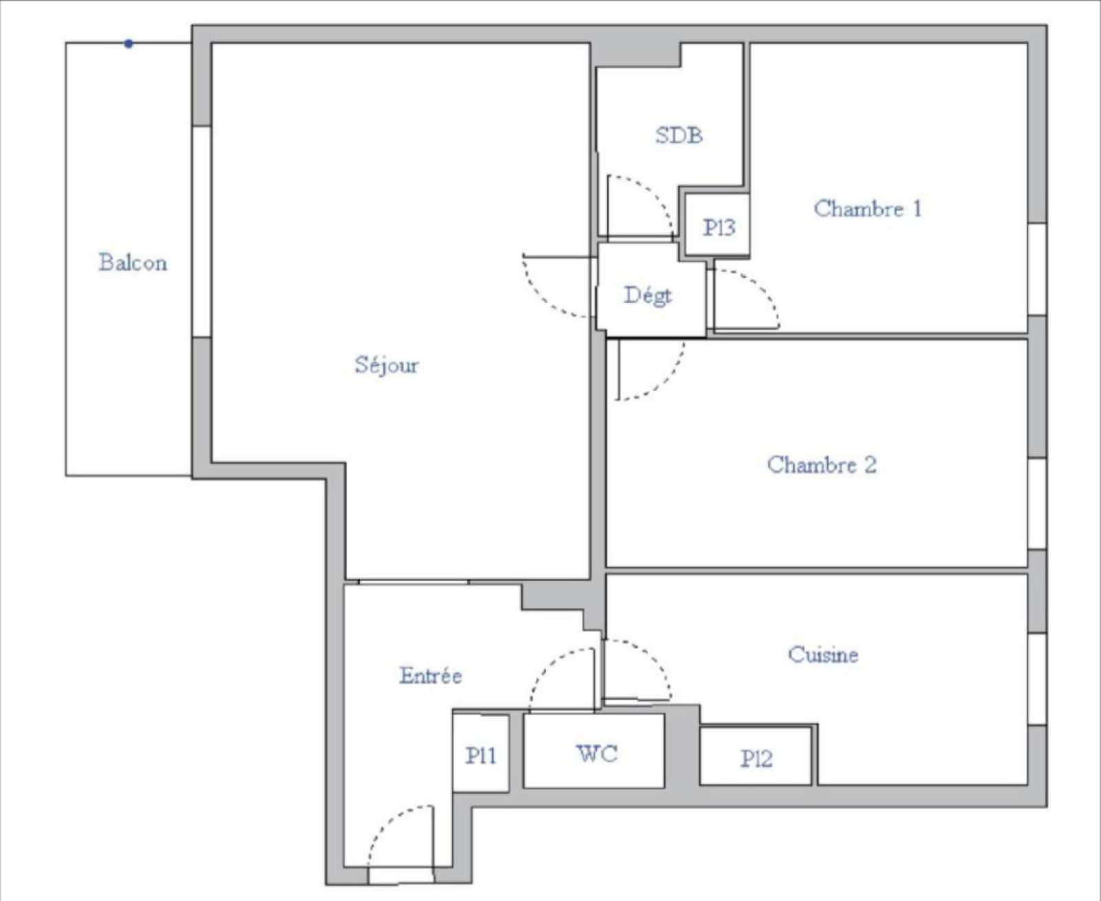
D'une superficie carrez de 71,31m2, il se compose d'une entrée avec dressing intégré, d'un WC d'indépendant, d'un double séjour / salle à manger exposé plein Sud d'une superficie de 25m2 s'ouvrant sur un large balcon couvert de 7m2, d'une cuisine indépendante entièrement équipée avec des matériaux et équipements de qualités (électroménagé DE DIETRICH), d'une salle de bains avec vasque et baignoire, d'un dégagement, deux chambres de 11,50m2 et 12,60m2. L'appartement dispose d'une cave ainsi que d'une place de parking en sous-sol sécurisée.
L'appartement est au calme et donne sur la cour de la copropriété. Il dispose de la fibre optique ainsi que de volets roulants éléctrique dans chaque pièces.
Annonce proposée par un agent commercial
Localisation Du bien
-
Commerces et santé
-
Loisirs
-
Ecoles
-
Transports
-
Pratique
Les infos Energetiques
Détails des diagnostics énergétiques
Montant estimé des dépenses annuelles d'énergie pour un usage standard est compris entre 770 € et 1 100 € . Prix moyens des énergies indexés sur les années 2021, 2022 et 2023 (abonnements compris).
