Les infos Essentielles
L’agence Flat Fish Immo vous propose en exclusivité cette demeure rare du XVIIème siècle, entièrement rénovée, alliant avec élégance le charme de l’ancien et le confort moderne.
Ce bien est à vendre en vente interactive sur le site de SQUARIMO. Le prix affiché est un prix de présentation sur lequel vous faites une proposition à la hausse.
Lien de l'annonce SQUARIMO :
https://squarimo.com/bien.php?id=aa9f571a-b972-4e28-993d-d1b61c9c1c08
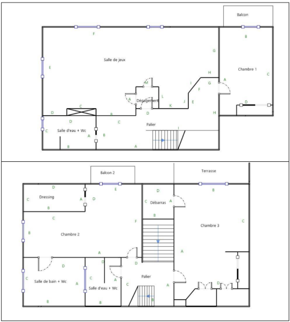
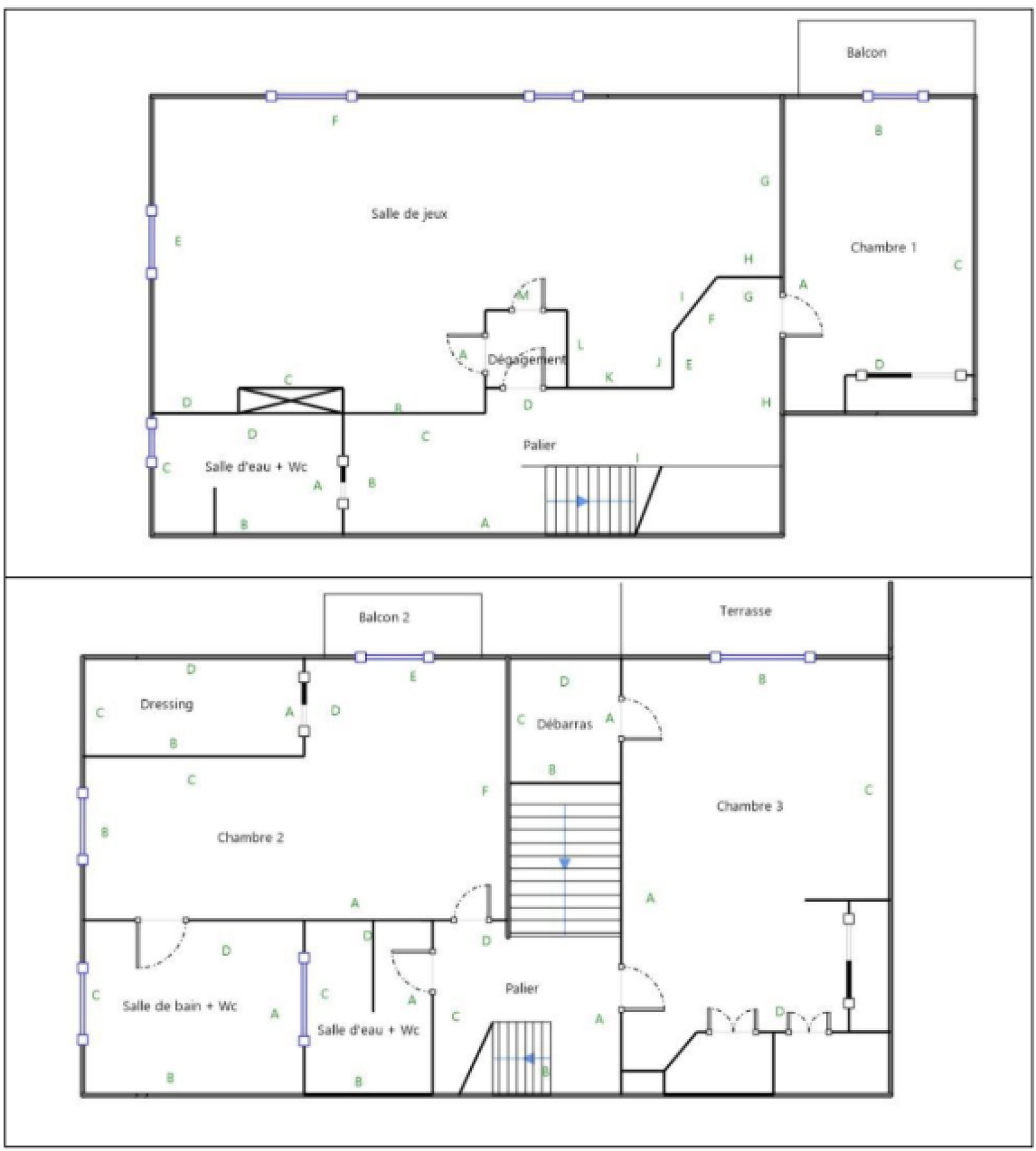
Située Grande Rue, au cœur du village de Millery (Rhône), cette maison de caractère d'environ 267 m² habitables, répartis sur trois niveaux et complétés par une tour panoramique, séduit par ses volumes généreux, son cachet architectural et ses nombreuses possibilités d’aménagement, aussi bien pour une résidence principale de standing que pour un projet d’investissement.
Elle offre actuellement 5 à 6 chambres selon l’aménagement, dont plusieurs suites, ainsi que de beaux espaces de vie lumineux et de nombreux rangements.
Les éléments d’époque ont été soigneusement conservés : pierres apparentes, poutres et plafonds à la française, escalier en pierres, bois massif et cave voûtée. Les espaces de vie s’organisent autour d’une cuisine équipée. Le confort est assuré par un chauffage au sol, complété par des radiateurs en fonte et électriques. La toiture a été révisée et les menuiseries bois sont en double vitrage.
À l’extérieur, la propriété s’étend sur un terrain d'environ 408 m², comprenant environ 230 m² d’espaces extérieurs aménagés, organisés autour d’une agréable cour intérieure intimiste, constituant un véritable espace de vie extérieur.
Elle dispose également d’une terrasse de 24,15 m², ainsi que de deux balcons totalisant 4,78 m² (2,63 m² et 2,15 m²), apportant luminosité et vues dégagées.
Un garage fermé de 30 m², une cave et quatre places de stationnement privatives situées sur la propriété complètent ce bien, un atout particulièrement rare en plein cœur du village.
Un bien aux multiples projets
Famille : grande maison chaleureuse, proche des écoles et commodités.
Profession libérale : possibilité d’un espace indépendant avec stationnement sur place.
Investisseur : volumes et configuration permettant la création de plusieurs logements (location meublée, colocation haut de gamme, gîtes de charme).
Localisation & informations :
Centre de Millery, village dynamique avec commerces, écoles et transports
À 20 minutes de Lyon, accès rapide aux axes autoroutiers
Taxe foncière : 1 140 €
DPE : C
Adresse : Grande Rue, 69390 Millery
Les honoraires sont à la charge du vendeur.
Les informations sur les risques auxquels ce bien est exposé sont disponibles sur le site Géorisques : www.georisques.gouv.fr
Contacter l'agence FLAT FISH IMMO pour tous renseignements et visite avec cecile . gonin @ or an ge .fr - Tél : O6 48 8O 43 53 - w w w .flat - fish . fr
Ce bien est à vendre en vente interactive sur le site de SQUARIMO. Le prix affiché est un prix de présentation sur lequel le vendeur n’est pas engagé à vendre. La participation à la vente interactive de SQUARIMO n’entraîne aucun frais supplémentaire pour l'acquéreur, ni pour le vendeur. La participation à la vente interactive est soumise à agrément préalable de SQUARIMO. Les offres seront transmises au vendeur, qui reste libre de choisir parmi les offres formulées. Une offre formulée sur le site SQUARIMO n’est pas un engagement d’acquérir, mais une intention de négocier de bonne foi sur la base des conditions de l’offre.
Lien de l'annonce SQUARIMO :
https://squarimo.com/bien.php?id=aa9f571a-b972-4e28-993d-d1b61c9c1c08
Localisation Du bien
-
Commerces et santé
-
Loisirs
-
Ecoles
-
Transports
-
Pratique
Les infos Energetiques
Ce site est protégé par reCAPTCHA, les Politiques de Confidentialité et les Conditions d'Utilisation de Google s'appliquent.
Détails des diagnostics énergétiques
Propriété d’exception en Sologne – 21 hectares avec étang de 5...
