Les infos Essentielles
*** EXCLUSIVITE *** CENTRE de SACLAY BOURG - COUP DE COEUR - Au CALME - Maison CONTEMPORAINE en EXCELLENT ETAT, avec JARDIN et LUMIERE TRAVERSANTE - DPE D - ESPACE de VIE de plus de 68m2 - SANS VIS A VIS - GARAGE - CAVE - CELLIER - MAISON ISOLEE et CONSTRUITE sur VIDE SANITAIRE - POTENTIEL: 5ème chambre ou bureau indépendant possible - TERRAIN 380m2 ***
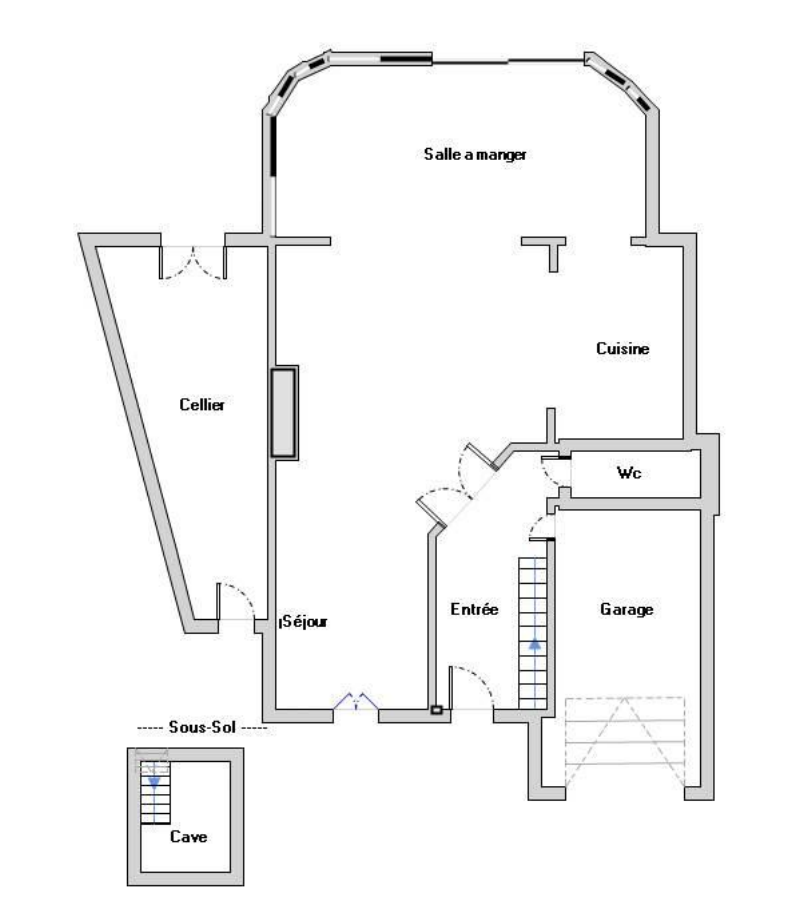
Cette maison au goût du jour vous offre une surface de totale de 163 m2 utiles (au sol: 199 m2 et 144 m2 carrez) avec en supplément un GARAGE, une CAVE et un CELLIER isolé avec rangements pour une salle de jeux ou bureau ou création de chambre, grenier pour le stockage.
Cette maison vous offre au RDC, une belle entrée avec verrière et rangements conduisant à un espace de vie de 68m2 aménagé en partie salon avec cheminée de charme pour les moments de détente donnant sur une véranda spacieuse avec vitrages isolants et volets roulants électriques, cuisine ouverte équipée avec bar, WC indépendants, garage, cave et cellier isolé attenant pour chambre ou atelier.
Le 1er vous propose un dégagement, une chambre parentale de 14.92 m2 avec douche, placards et dressing, 2 autres chambres (11 à 12m2) dont une avec grand placard, une autre chambre de 14m2 avec grand placard et une salle de jeux attenante de 17m2 au sol, une salle de bains balnéo, WC indépendants.
*** LES ATOUTS *** centre du village avec toutes commodités, état impeccable (travaux faits, électricité, tous les ouvrants en pvc double vitrage...), véranda isolée avec vitrages athermiques, grande pièce de séjour, potentiel d'agrandissement, terrasses et double exposition traversante, aucun travaux, bonne isolation, garage, stationnements extérieurs.
Proche de toutes commodités (écoles, commerces, gymnase, parcs, conservatoire, centre Médical...) TOUT SE FAIT A PIED, N118, Grandes Ecoles. A 5 min: bus pour RER B (Orsay) ou RER C (JOUY OU MASSY), 15/20min TGV Massy, Orly, Tunnel Duplex Versailles. Ligne 18 du Grand Paris Express et en 2024 (futur arrêt CEA de Saclay), le Grand Hôpital Nord Essonne ***
VOUS CHERCHEZ une maison CONTEMPORAINE et DESIREZ Y POSER VOS VALISES, un secteur familial et convivial à proximité de tout, CALME de part sa SITUATION, LUMINEUSE, SANS TRAVAUX et avec une très bonne CARTE SCOLAIRE ORSAY ... IDEAL POUR FAMILLE désirant une maison impeccable et au calme, UNE VISITE S'IMPOSE !
Annonce proposée par un agent commercial
Les informations sur les risques auxquels ce bien est exposé sont disponibles sur le site Géorisques
Localisation Du bien
-
Commerces et santé
-
Loisirs
-
Ecoles
-
Transports
-
Pratique
Les infos Energetiques
Ce site est protégé par reCAPTCHA, les Politiques de Confidentialité et les Conditions d'Utilisation de Google s'appliquent.
Détails des diagnostics énergétiques
Montant estimé des dépenses annuelles d'énergie pour un usage standard est compris entre 2 480 € et 3 420 € . Prix moyens des énergies indexés sur les années 2021, 2022 et 2023 (abonnements compris).
Maison Saclay Val d'Albian de 162m2
