Les infos Essentielles
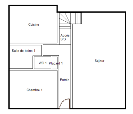
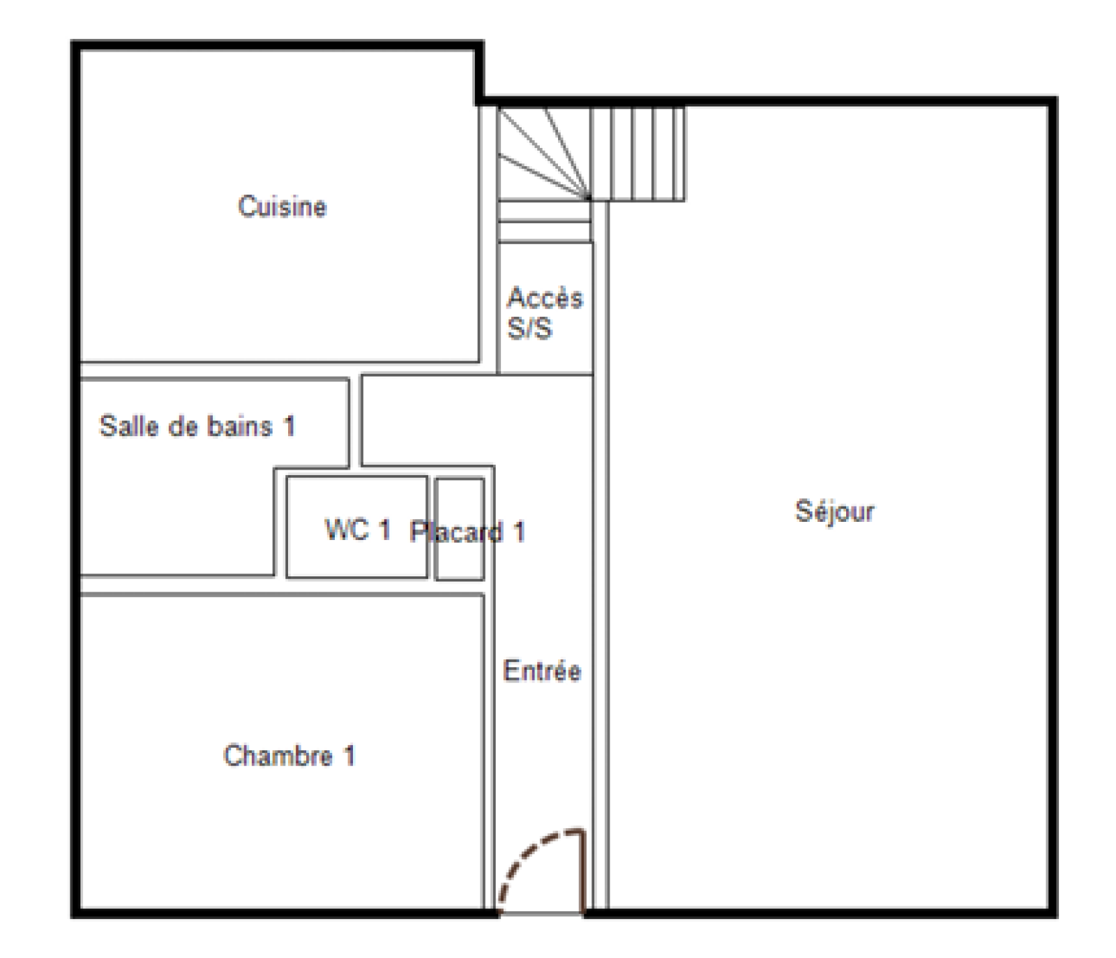
*** BIEN VENDU *** EXCLUSIVITE *** NOUVEAUTÉ au VAL d'ALBIAN, Maison familiale de 133m2 utiles (surface de 197m2 totale au sol) dont un sous-sol total d'environ 64m2 sur terrain de 550m2 - En EXCELLENT ÉTAT avec énormément de CHARME - DPE D -LUMINEUSE avec exposition SUD/OUEST - RÉNOVATION de 2017 à 2021 - RAVALEMENT 2023 - VIE de PLAIN-PIED POSSIBLE - 4 CHAMBRES dont une CHAMBRE avec salle de bains au REZ de CHAUSSÉE - SUD/OUEST - CALME - FORÊT - QUARTIER CALME et PROCHE de toutes commodités *** Anne-Marie Dumas Immobilier vous propose cette maison de 1969 avec, au RDC, une belle entrée avec porte sécurisée et rangement, une pièce de vie lumineuse et conviviale de 33m2 avec cheminée, une cuisine séparée équipée. Ce niveau vous offre également une chambre, une salle de bains, WC séparés et donne directement sur le beau jardin arboré d'environ 480m2.
Au 1er, 3 chambres (13, 15 et 23 m2 au sol), une salle d'eau avec WC. Vous bénéficiez d'un sous-sol avec une buanderie, une pièce pouvant faire office de bureau, d'une chaufferie, d'un garage. Stationnement devant le garage possible et à l'extérieur.
Annonce proposée par un agent commercial
Les informations sur les risques auxquels ce bien est exposé sont disponibles sur le site Géorisques
Localisation Du bien
-
Commerces et santé
-
Loisirs
-
Ecoles
-
Transports
-
Pratique
Les infos Energetiques
Détails des diagnostics énergétiques
Montant estimé des dépenses annuelles d'énergie pour un usage standard est compris entre 1 770 € et 2 440 € . Prix moyens des énergies indexés sur les années 2021, 2022 et 2023 (abonnements compris).
