Les infos Essentielles
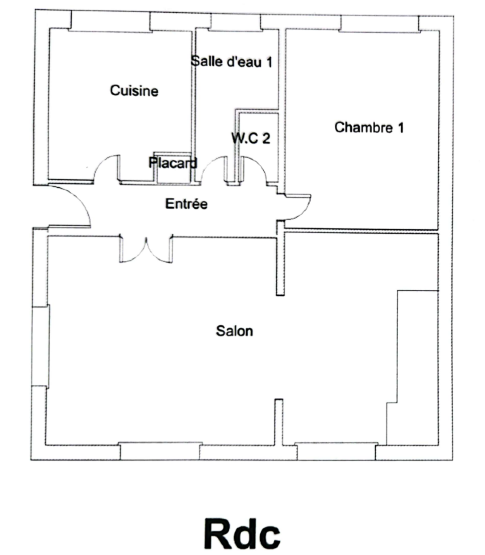
*** MAISON au VAL D'ALBIAN sur GRAND TERRAIN 524m2 A L'ABRI DES REGARDS - MAISON FAMILIALE TRES BIEN SITUEE - TRES BEAU JARDIN PLEIN SUD OUEST - DPE D - 4 CHAMBRES - GRAND GARAGE - RENOVEE INTEGRALEMENT - CALME - HAVRE DE PAIX - RAVALEMENT FAIT *** Venez visiter cette belle maison dans un état impeccable de 170m2 au sol (135m2 de surface utile - 105 m2 habitables) en très bon état. Le 1er étage vous offre un beau salon de 28m2 donnant sur une terrasse avec vue sur le jardin, une cuisine séparée, une chambre de 12 m2 avec placards, salle d'eau et WC séparés. Au 2ème étage, mezzanine avec coin bureau, une grande chambre parentale de 26m2 au sol avec grand dressing et climatisation, une autre chambre mansardée de 11 m2 au sol avec dressing. Au rez de jardin, vous découvrirez deux pièces supplémentaires complètement isolées pour bureau de 9m2 et chambre supplémentaire avec point d'eau de 10.5m2, une buanderie avec chaudière. ATELIER - BEAU GARAGE de 22m2 - CARPORT extérieur pour 2 voitures et stationnement aisé devant la maison.*** Les ATOUTS : Pas de travaux, bons diagnostiques, ravalement fait avec isolation extérieure, électricité aux normes, fenêtres double vitrage, magnifique jardin à l'abri des regards, maison saine *** Proche de toutes commodités ( écoles, commerces, sport, bus...) , future ligne 18 du métro (2026) arrivée en 2026 de la ligne 18 du MÉTRO et du T12, groupe scolaire, mairie, marché le dimanche (Saclay Bourg), maison médicale (Saclay Bourg), carte scolaire Orsay - lycée international, RER B Orsay et RER C, Polytechnique, FAC d'Orsay, Université, Supelec, Técomah, Thalès, HEC, à 15/20 minutes du TGV Massy, Orly, à 15 km du sud-ouest de Paris et l’arrivée en 2026 de la ligne 18 du MÉTRO et du T12. *** A VISITEZ RAPIDEMENT ***
Annonce proposée par un agent commercial
Les informations sur les risques auxquels ce bien est exposé sont disponibles sur le site Géorisques
Localisation Du bien
-
Commerces et santé
-
Loisirs
-
Ecoles
-
Transports
-
Pratique
Les infos Energetiques
Détails des diagnostics énergétiques
Montant estimé des dépenses annuelles d'énergie de ce logement pour un usage standard est compris entre 1 430 € et 1 980 € . 2021 étant l'année de référence des prix de l'énergie utilisés pour établir cette estimation.
