Les infos Essentielles
Lancement de la commercialisation du nouvel 'Eco quartier' de 16 maisons individuelles et de 29 appartements au coeur de La Garnache, à proximité de toutes les commodités (écoles, supermarché, cabinet médical, commerces etc...), à 5 minutes de Challans, 20 minutes de la côte atlantique et 40 minutes de Nantes.
Programme en VEFA pour une livraison au 31 12 2028 au plus tard. - 16 maisons individuelles de 86m2 à 96m2 sur des terrains de 210m2 à 600m2 et de 259000EUR à 330000EUR - 29 logements en R+1 de 39,50m2 à 67,21m2 et de 157000EUR à 268000EUR
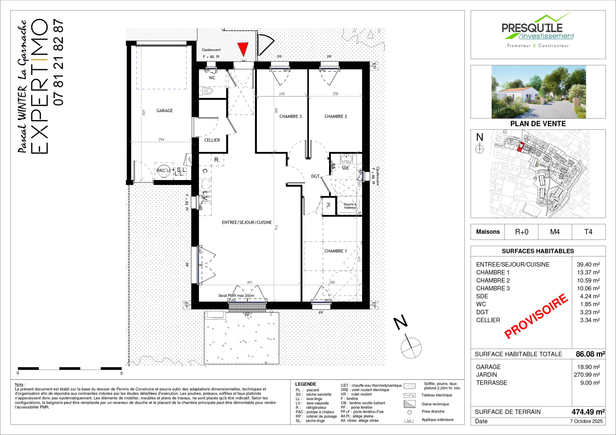
Exemple cette maison M4 sur les 2 premières photos de 86m2, plain-pied, 3 chambres, 1 salle d'eau, 1 WC, 1 salon-séjour cuisine ouverte de 39,40m2, 1 cellier, 1 garage de 18,90m2, 1 terrasse sur un terrain clos de 474m2 au prix de 294000EUR TTC, honoraires inclus à la charge du vendeur.
Il est précisé que le prix ne comprend pas les frais ci-dessous indiqués et sont à la charge du Réservataire : - les frais d'actes notariés de vente, y compris les frais de timbre et de publicité foncière; - les frais et charges de prêts sollicités par le Réservataire; - les frais de travaux supplémentaires par rapport aux prévisions de la réservation qui seraient demandés par le Réservataire; - le montant de tous impôts et taxes, participations ou autres redevances à la charge de l'acquéreur, y compris ceux qui viendraient à être modifiés ou créés; - les frais d'établissement du règlement et des statuts d'ASL; - les frais de l'ASL à compter de la date à laquelle il aura été notifié au Réservataire que les locaux sont mis à sa disposition. Diagnostics non obligatoires, construction aux normes RE 2020, assurance dommages-ouvrage comprise.
N'hésitez pas à contacter votre professionnel local de La Garnache Pascal Winter (EI) au 07 81 21 82 87.
Les informations sur les risques auxquels ce bien est exposé sont disponibles sur le site Géorisques : www.georisques.gouv.fr
Annonce rédigée et publiée par un agent mandataire. - Annonce rédigée et publiée par un Agent Mandataire - Surface : 86 m² Non soumis au DPE Consommation énergie primaire : Non communiqué Consommation énergie finale : 0 kWh/m²/an
Annonce proposée par un agent commercial
Localisation Du bien
-
Commerces et santé
-
Loisirs
-
Ecoles
-
Transports
-
Pratique
Les infos Energetiques
Ce site est protégé par reCAPTCHA, les Politiques de Confidentialité et les Conditions d'Utilisation de Google s'appliquent.
