Les infos Essentielles
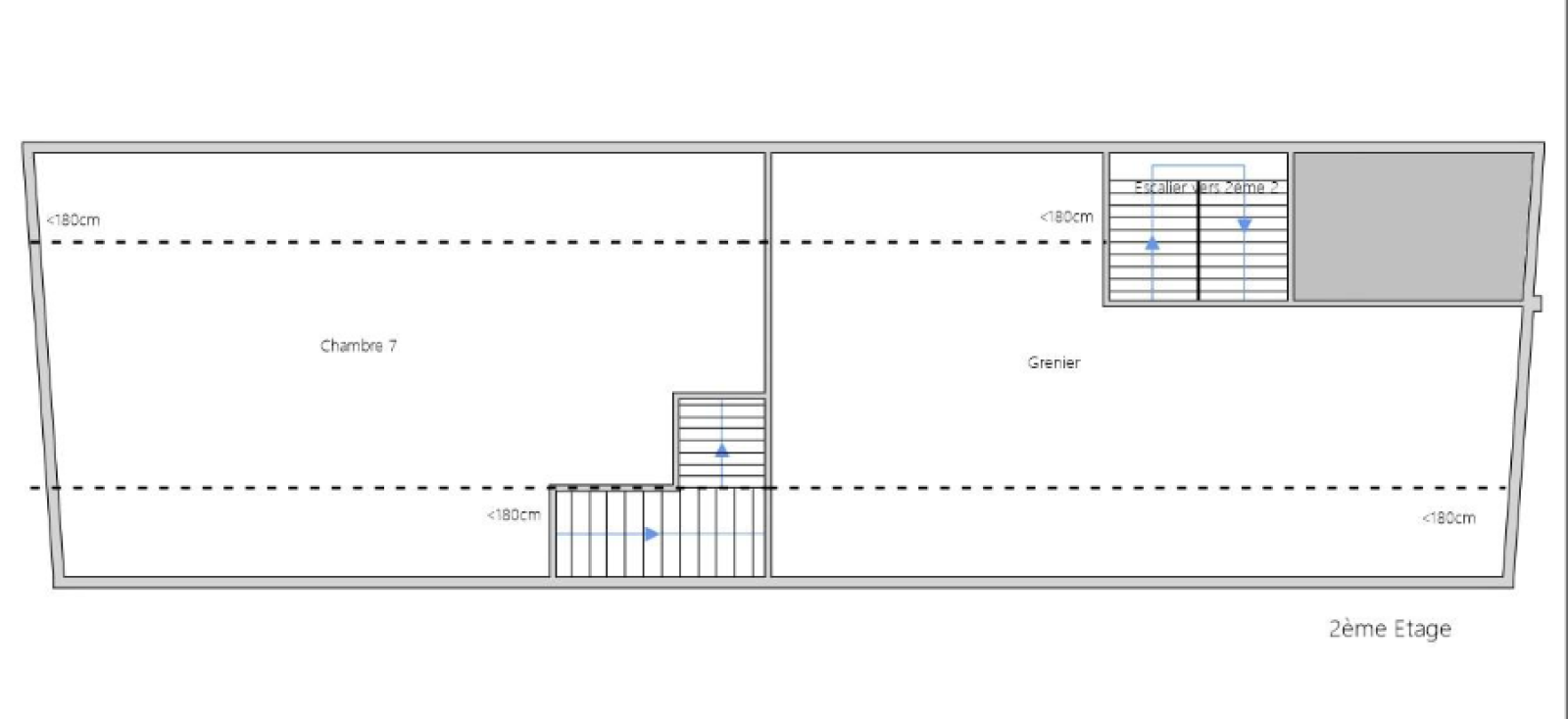
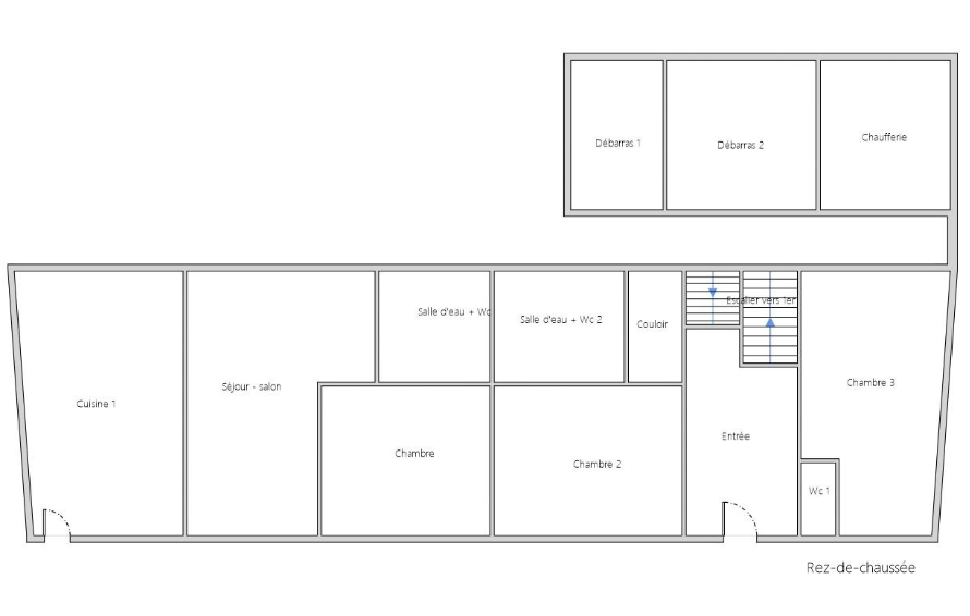
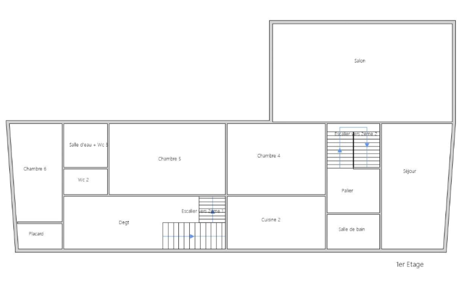
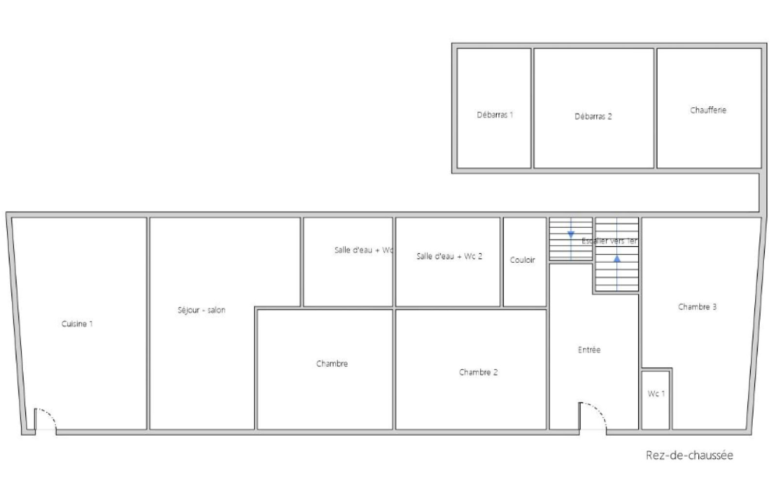
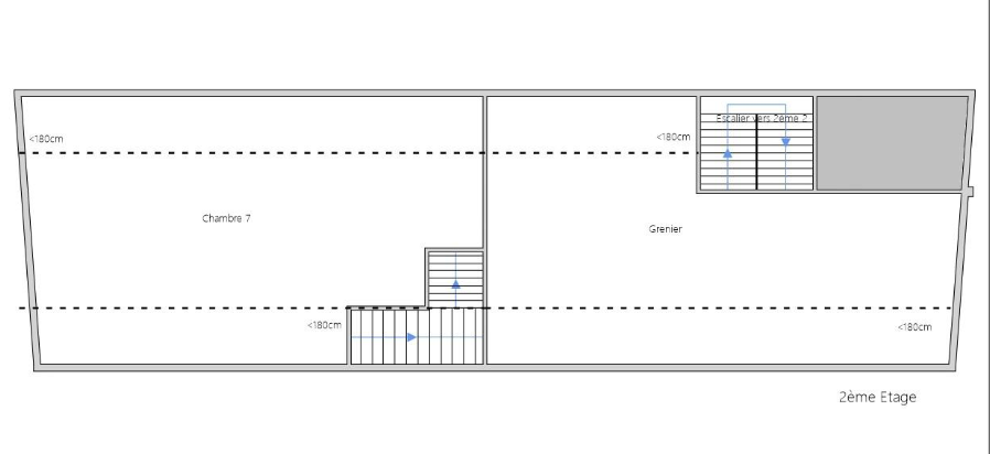
Maison principale de 6 chambres ( possible 8 ) comprenant au RDC : une entrée, une chambre avec wc + lavabo, une salle de sport ( ou autre ) une salle d'eau avec wc. Au 1er étage : un palier qui dessert : un bel espace de vie avec cheminée, une cuisine indépendante aménagée et équipée, une salle de bain, 2 chambres, une suite parentale avec (salle d'eau + wc) , un wc indépendant. Au 2 ème étage : un grand espace pouvant accueillir 2 chambres avec vélux, une grande chambre + bureau + ( salle de bain possible ). Le tout avec deux cours pavées , deux espaces de verdure, 3 locaux ( chambre froide ou autre utilité + chaufferie + pièce de stockage/rangement )
L'appartement de type F2 avec son entrée indépendante et ses 2 places de parking privatives. Il comprend : une entrée, une cuisine aménagée et équipée ouverte sur un espace de vie traversant et lumineux, une salle d'eau avec wc + une chambre.
En plein centre ville. DPE en C
Nombreuses possibilités ( peut convenir à un investisseur ou à plusieurs familles ) + aménagement proposé avec l'IA
A voir rapidement
Les informations sur les risques auxquels ce bien est exposé sont disponibles sur le site Géorisques
Localisation Du bien
-
Commerces et santé
-
Loisirs
-
Ecoles
-
Transports
-
Pratique
Les infos Energetiques
Ce site est protégé par reCAPTCHA, les Politiques de Confidentialité et les Conditions d'Utilisation de Google s'appliquent.
