Les infos Essentielles
Oui, vous avez bien lu : 50 000 € seulement pour un bien aussi unique.
Un prix défiant toute concurrence pour cet ancien couvent chargé d’histoire, au cachet incroyable, offrant un potentiel rare pour les amateurs de rénovation et de lieux atypiques.
Développé sur environ 271 m² habitables, ce bien s’organise sur 5 niveaux, du jardin jusqu’aux combles (croquis disponibles), et propose aujourd’hui 6 chambres ainsi que de nombreux espaces à repenser selon vos envies.
La maison dispose de 5 points d’eau au total.
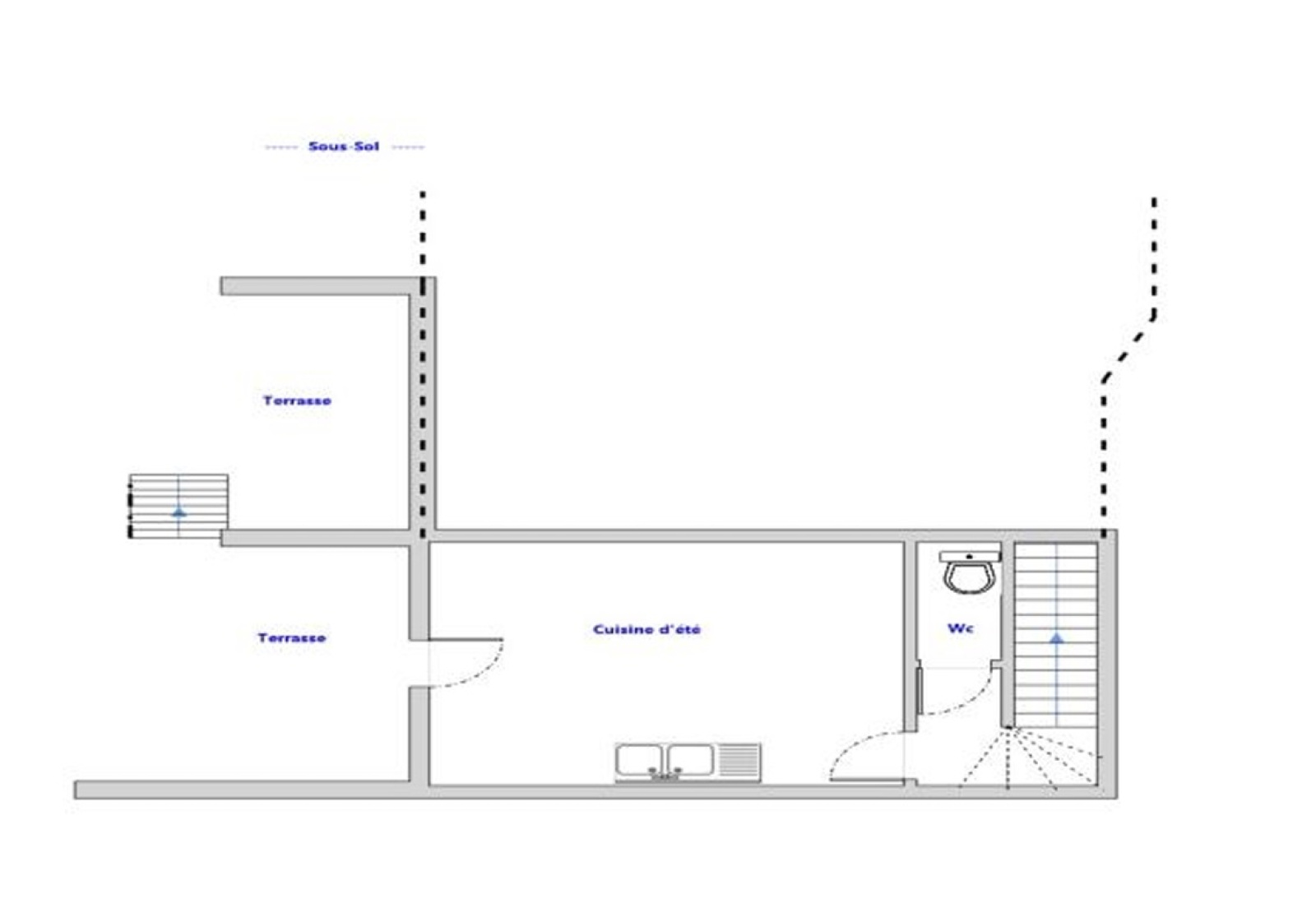
En rez-de-jardin, sous les arches, vous découvrez une cuisine d’été.
Au niveau rez-de-chaussée, un ensemble de salons et un accès direct à la terrasse d'environ 20m² avec une vue imprenable, ainsi que plusieurs caves.
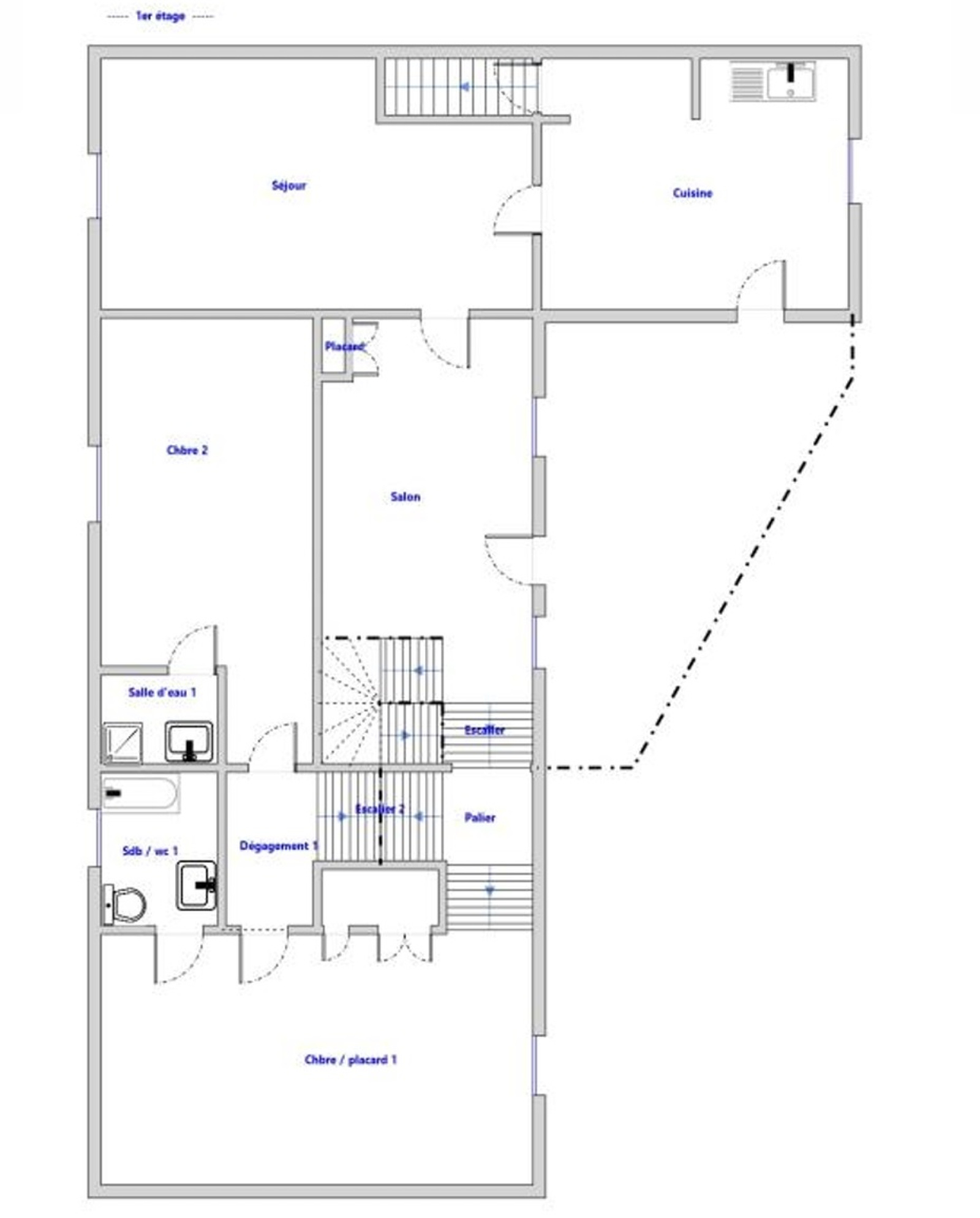
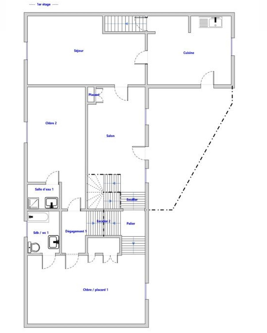
Le premier étage, qui est aussi l'entrée côté rue, accueille une cuisine, salle à manger et deux premières chambres avec salle d'eau et salle de bain.
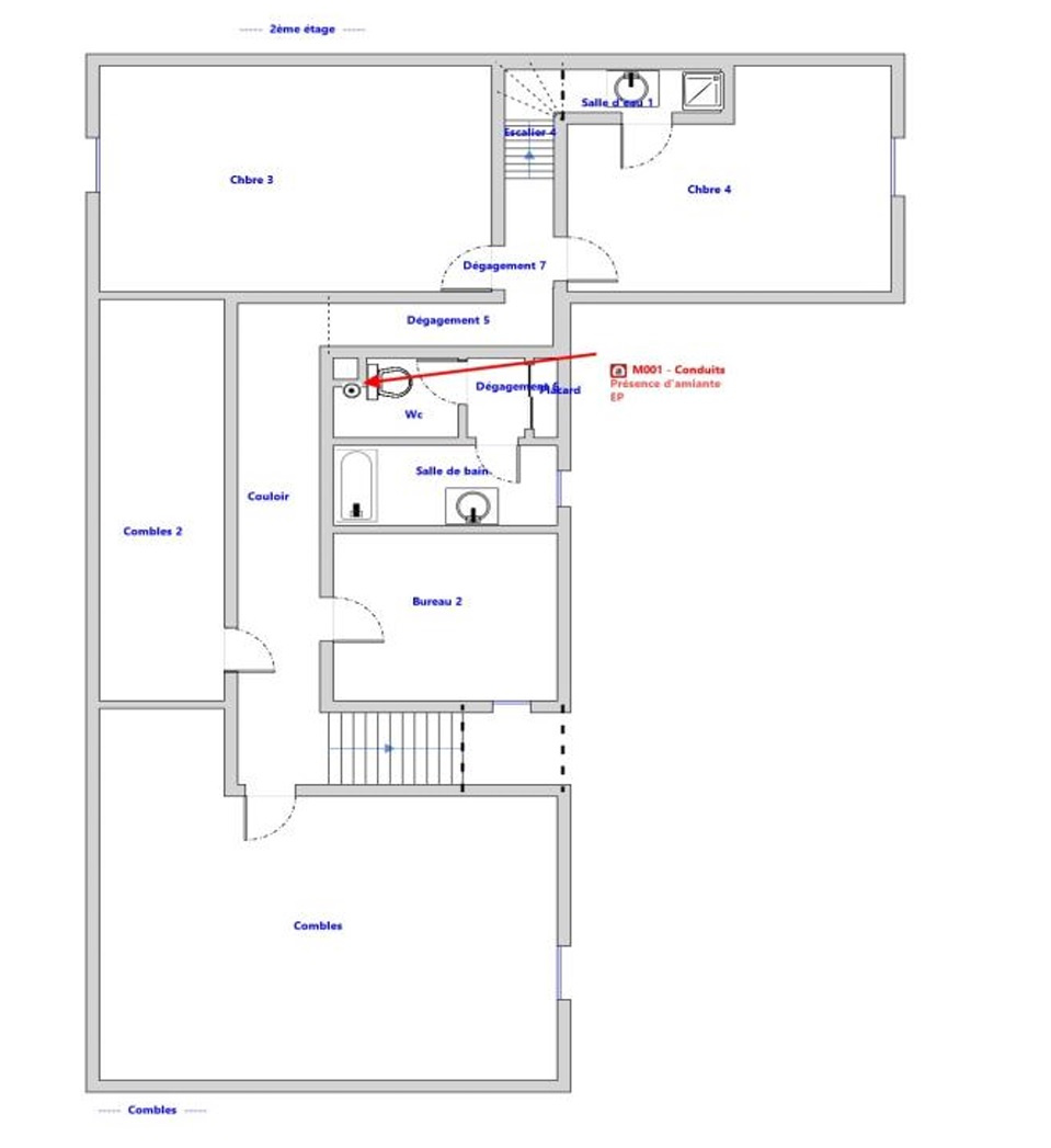
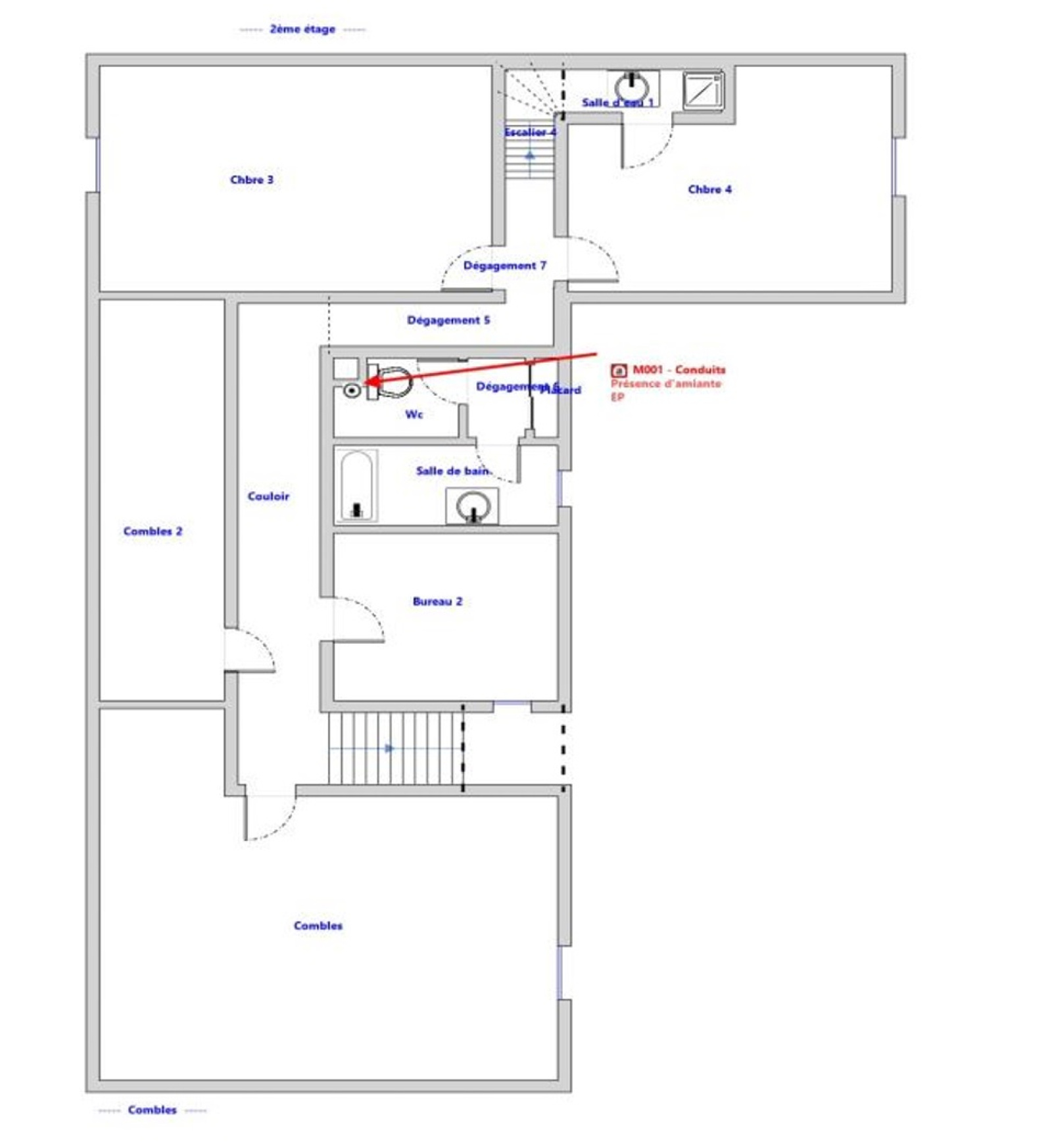
Au deuxième étage, un bureau et deux chambres supplémentaires avec salle d'eau et salle de bain (urgence toiture sur cet étage), ainsi que des combles
Enfin, au troisième et dernier étage, sous les combles, deux dernières chambres avec un point d'eau complètent l’ensemble.
À l’extérieur, le charme opère immédiatement…
Un terrain d’environ 150 m² forme un magnifique jardin suspendu, sublimé par de superbes arches.
Une terrasse d’environ 20 m² vous offre une vue imprenable sur la vallée.
En complément, vous bénéficiez d’environ 820 m² de terrain non attenants, situés en contrebas, d'une place de stationnement et d'un ancien four à pain.
Ce bien exceptionnel nécessitera des travaux de rénovation conséquents, avec notamment une toiture nécessitant une intervention urgente, ainsi que la reprise de l’électricité, du chauffage, des menuiseries, ... et une amélioration énergétique (DPE classé E).
Un bien atypique, idéal pour une résidence familiale de caractère, une maison d’hôtes ou un projet touristique, avec un fort potentiel de valorisation.
Une journée de visites individuelles sera organisée le vendredi 17 avril (selon météo).
Annonce proposée par un agent commercial
Localisation Du bien
-
Commerces et santé
-
Loisirs
-
Ecoles
-
Transports
-
Pratique
Les infos Energetiques
Ce site est protégé par reCAPTCHA, les Politiques de Confidentialité et les Conditions d'Utilisation de Google s'appliquent.
