Les infos Essentielles
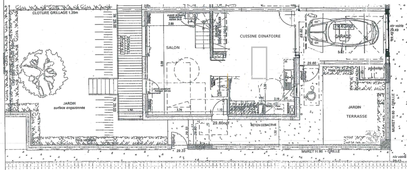
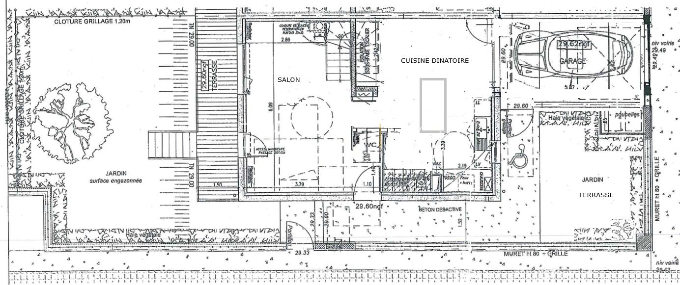
Exclusivité Gennevilliers Chevrins : En très bon état, cette maison de 126 m2 présente de beaux volumes et une distribution harmonieuse avec un espace de vie traversant de 51m2 prolongé par deux terrasses et un jardin arboré de 55 m2.
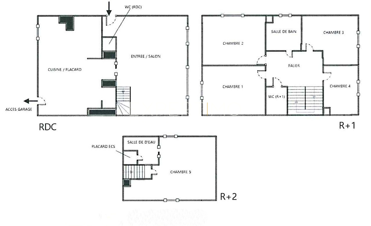
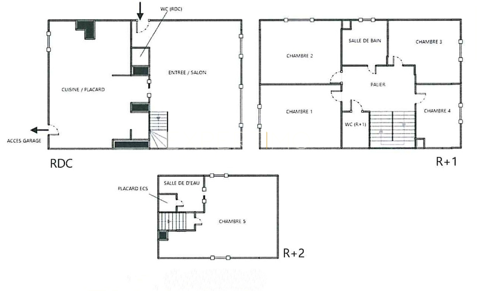
Au 1er étage, sont réparties quatre chambres, une salle de bains et un w-c séparé. Le second étage est dédié à une suite parentale de 25m2 disposant d'une salle d’eau avec w-c, d'un double dressing et de rangements supplémentaires.
Bâtie en 2015 sur un terrain de 189m2, elle dispose également d’un garage attenant.
Située au calme absolu dans le secteur pavillonnaire des Chevrins, la maison profite d’un emplacement privilégié à 3 mn du métro Les Courtilles (L13), du tramway T1, des écoles et de nombreuses commodités.
Rare sur le secteur, cette maison familiale, prête à habiter et dotée de belles prestations, représente une opportunité idéale pour concrétiser votre rêve immobilier.
Pour en savoir plus et planifier une visite, contactez Badia MARZAKI, Consultante Expertimo et référente locale, votre partenaire de confiance pour mener à bien votre projet immobilier, au plus proche de vous.
Annonce proposée par un agent commercial
Localisation Du bien
-
Commerces et santé
-
Loisirs
-
Ecoles
-
Transports
-
Pratique
Les infos Energetiques
Ce site est protégé par reCAPTCHA, les Politiques de Confidentialité et les Conditions d'Utilisation de Google s'appliquent.
Détails des diagnostics énergétiques
Montant estimé des dépenses annuelles d'énergie pour un usage standard est compris entre 1 500 € et 2 070 € . Prix moyens des énergies indexés sur les années 2021, 2022 et 2023 (abonnements compris).
