Les infos Essentielles
Murs commerciaux dans Immeuble de caractère – Centre-ville de Landerneau
Adresse : 32 rue de Brest, Landerneau
Bâtiment de charme datant de 1816 – Emplacement n°1
BAISSE DE PRIX. Opportunité rare sur le marché de Landerneau : découvrez ces murs commerciaux d'unimmeuble de caractère, situé en plein cœur du centre-ville, offrant un excellent placement patrimonial et une rentabilité attractive.
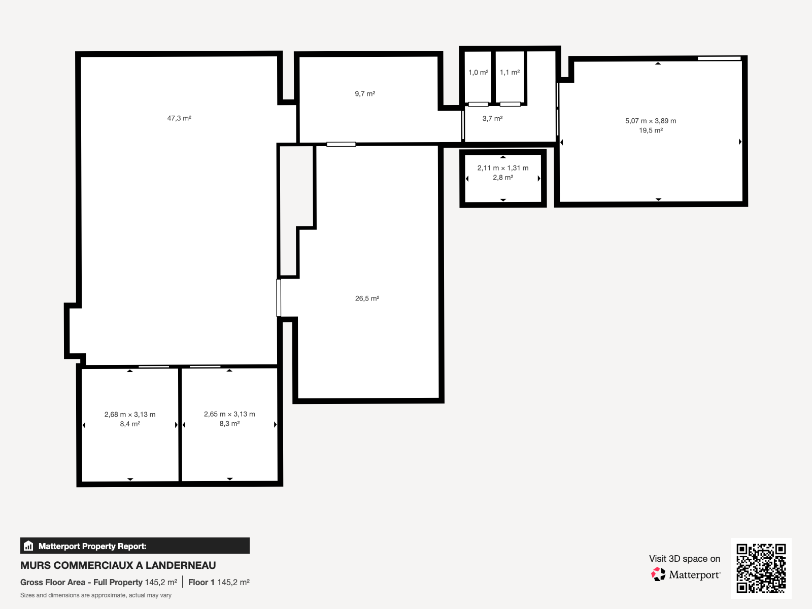
Description du bien
-
Immeuble ancien en très bon état, construit en 1816
-
Respect des normes d’accessibilité
-
Local commercial en pied d’immeuble
-
Emplacement premium, à forte visibilité, dans une rue dynamique
-
Possibilité d’acquisition avec ou sans locataire
Situation locative
-
Locataire en place (bail commercial 3/6/9) depuis le 1er octobre 2023
-
Revenu annuel : 18 960 € charges comprises
-
Rentabilité nette : 8 %
-
Taxe foncière : 1 135 € / an, entièrement refacturée au locataire
Cet actif permet une sécurisation immédiate des revenus, avec un locataire professionnel déjà en place.
Atouts majeurs
-
Adresse stratégique en plein centre-ville
-
Forte demande sur le secteur de Landerneau
-
Idéal pour investisseurs, diversification patrimoniale ou emplacement commercial
-
Opportunité d'acquérir le bien libre d’occupation, selon projet
-
Valeur patrimoniale pérenne : bâtiment ancien de caractère, parfaitement situé
Visite virtuelle disponible
Vous souhaitez pré-visualiser le local avant déplacement ?
Je vous accompagne pour découvrir notre visite virtuelle sur demande.
Contact
Thierry MADEC – Agent immobilier Expertimo
Tel. 07 86 39 79 99
Accompagnement investisseurs – Expertise secteur Landerneau & Brest métropole
Annonce proposée par un agent commercial
Localisation Du bien
-
Commerces et santé
-
Loisirs
-
Ecoles
-
Transports
-
Pratique
Les infos Energetiques
Ce site est protégé par reCAPTCHA, les Politiques de Confidentialité et les Conditions d'Utilisation de Google s'appliquent.
