Les infos Essentielles
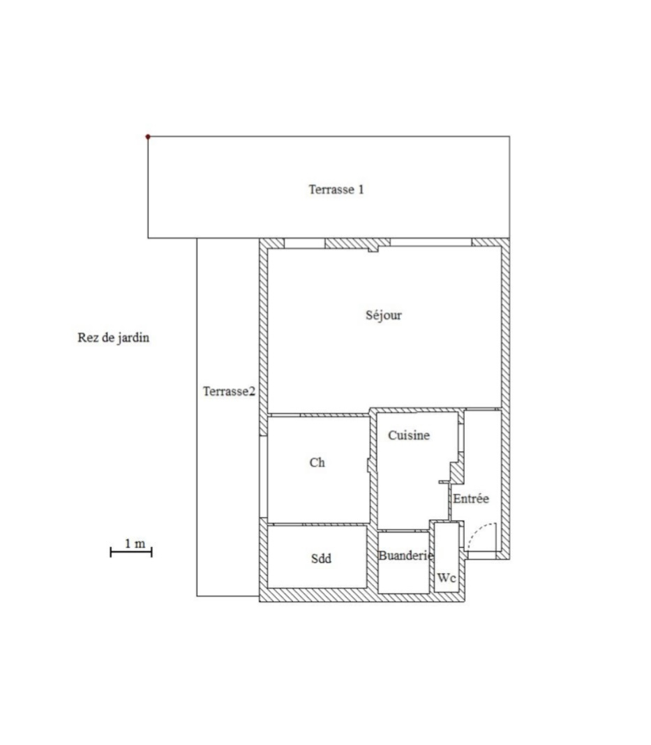
Au sein d'une résidence arborée sécurisée avec gardien et piscine, beau T2 de 45m2 ouvrant sur une belle terrasse de 22 m2 exposée sud sans vis à vis avec loggoa supplémentaire de 14 m2 transformée en grand dressing.
Il se compose d'une belle cuisine équipée avec buanderie donnant sur un salon avec jolie terrasse dans le prolongement, une chambre avec salle d'eau et grand dressing.
La résidence est située à 100 mètres de la plage et village à pied. Un ravallement complet ainsi que de nombreux travaux d'embellissements votés et payés sont en cours.
Place de parking privative en sous-sol ainsi qu'une cave complètent ce bien.
Annonce proposée par un agent commercial
Localisation Du bien
-
Commerces et santé
-
Loisirs
-
Ecoles
-
Transports
-
Pratique
Les infos Energetiques
Détails des diagnostics énergétiques
Montant estimé des dépenses annuelles d'énergie de ce logement pour un usage standard est compris entre 590 € et 850 € . 2021 étant l'année de référence des prix de l'énergie utilisés pour établir cette estimation.
