Les infos Essentielles
SPECIAL INVESTISSEUR – LOCATAIRE EN PLACE EN LOYER CONVENTIONNE JUSQU’EN 04/2025
REVENU LOCATIF ANNUEL ACTUEL : 12 879€ H.C - CHARGES DE COPROPRIETE : 1 952€/AN - TAXE FONCIERE 2022 : 915€
LOYER ESTIME APRES BAIL CONVENTIONNÉ : 1 750€ À 1 800€ C.C/MOIS DONT 110€ DE CHARGES LOCATIVES
IDEALEMENT SITUE PROCHE DU CENTRE-VILLE, DE TOUTES COMMODITES ET DU CERN (SUISSE)
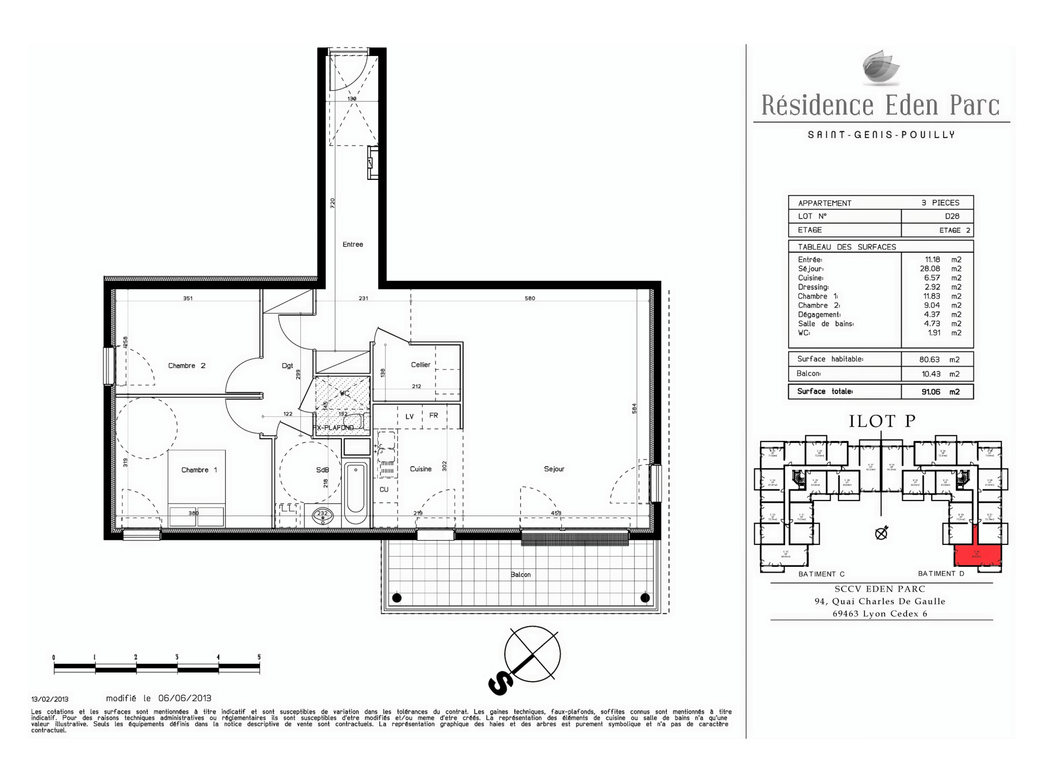
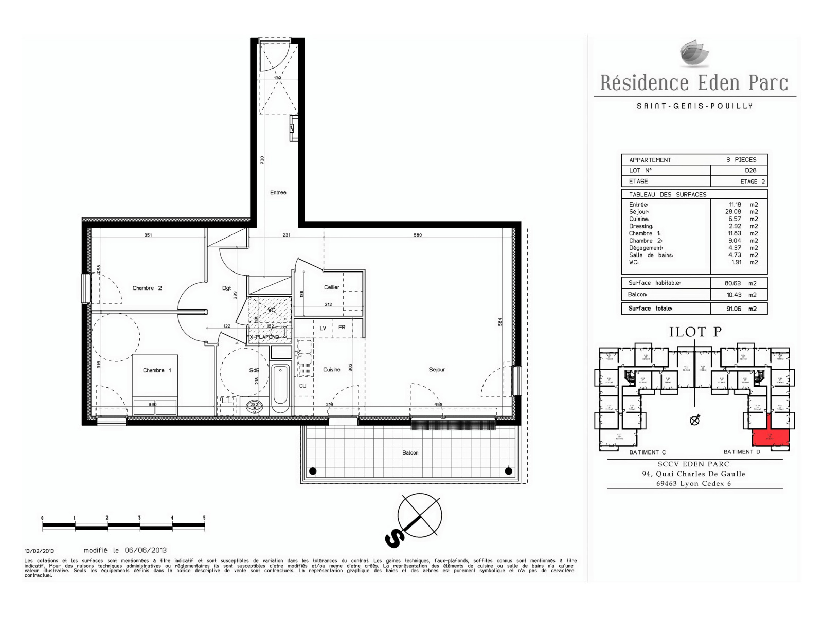
À découvrir sans tarder ce spacieux appartement 3 pièces de 81m² situé au 2ème et dernier étage d’une résidence de 2015.
Cet appartement triple expositions, principalement Sud-est offre une belle luminosité tout au long de la journée et se compose comme suit : une grande entrée de 11 m², un dégagement, un séjour/cuisine américaine d’environ 35 m² donnant accès à une grande terrasse avec une belle vue dégagée, 2 belles chambres, 1 buanderie, 1 salle de bains et 1 WC indépendant.
Ce spacieux logement familial est en excellent état général.
Il est vendu avec 3 garages sécurisés au sous-sol dont 1 double box en largeur.
De nombreuses places de parking sont disponibles autour de la résidence.
La résidence a été construite sous la norme RT2012 et bénéfice encore de la Garantie décennale et de l’Assurance Dommages Ouvrage.
Toutes les commodités se trouvent dans un périmètre de 5 à 10 min à pied de la résidence : centre-ville de Saint-Genis-Pouilly, mairie, poste, banques, bus 33 (St-Genis-Pouilly Allondon) – bus 68 (St-Genis, CERN Alice et St-Genis-Mitterrand), crèche, école primaire Boby Lapointe, collège et lycée International, activité de loisirs, commerces de proximité, centre commercial Allondon, proche du CERN, sites de Prévessin-Moëns, et Meyrin et à 7 min de la frontière Suisse.
Honoraires d’agence à la charge du vendeur.
Envie de découvrir toutes les originalités de ce bien ?
Prenez contact avec votre conseiller VR FRANCE IMMOBILIER, Thê-Kiêt REDORGER au +33(0)662 652 900, conseiller indépendant en immobilier (sans détention de fonds), membre du réseau national EXPERTIMO et immatriculé au RSAC de Bourg-en-Bresse sous le numéro 898 704 630.
BESOIN DE PRÊT IMMOBILIER? N'hésitez pas à nous solliciter!
Nous serons ravis de vous mettre en relation avec nos spécialistes pour vous accompagner dans l'obtention de votre prêt.
Annonce proposée par un agent commercial
Localisation Du bien
-
Commerces et santé
-
Loisirs
-
Ecoles
-
Transports
-
Pratique
Les infos Energetiques
Ce site est protégé par reCAPTCHA, les Politiques de Confidentialité et les Conditions d'Utilisation de Google s'appliquent.
