Les infos Essentielles
En plein cœur du village, à proximité immédiate des commerces, des écoles et commodités, découvrez cet appartement traversant de 68 m², entièrement rénové, offrant un cadre de vie alliant confort et calme.
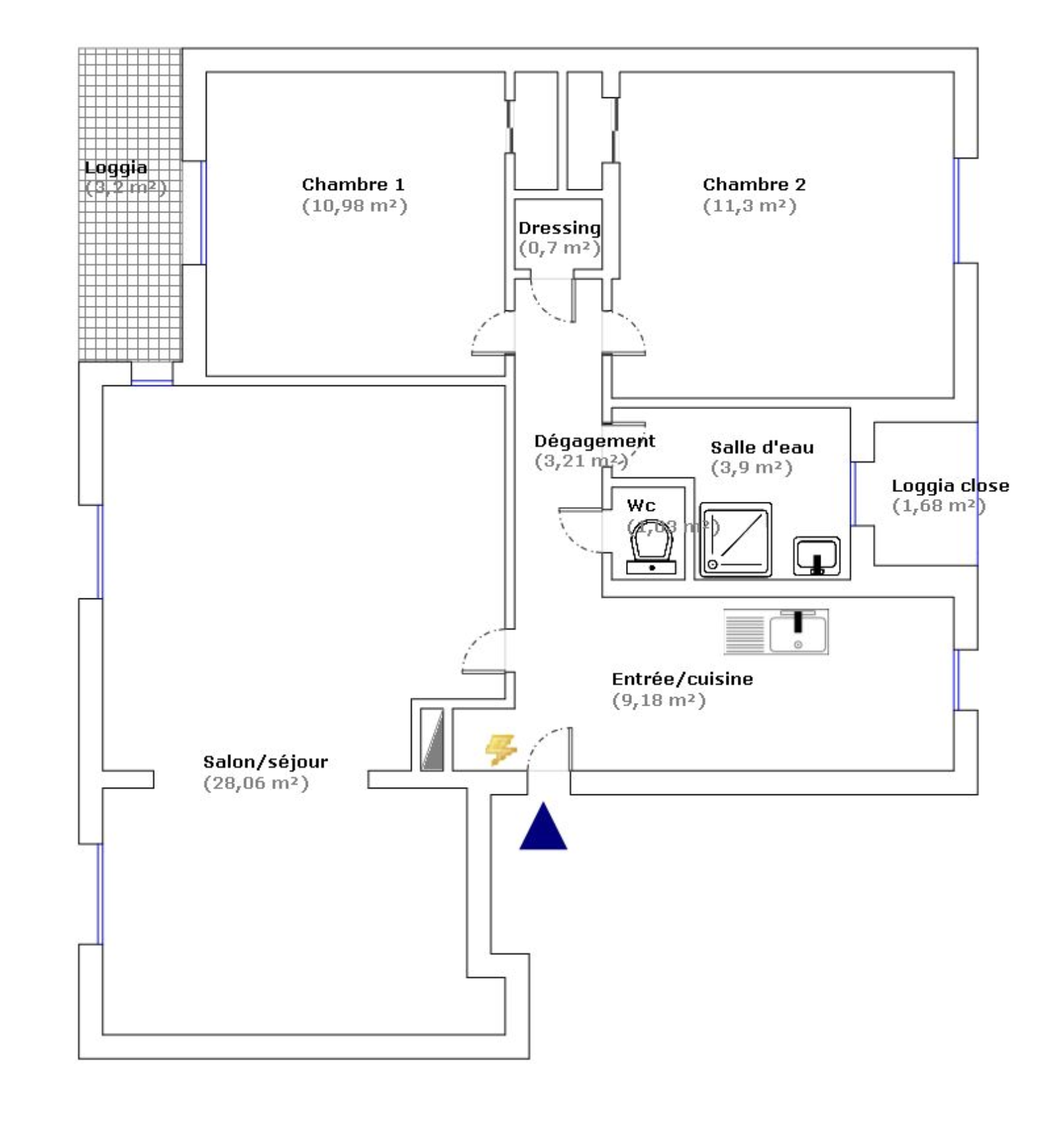
Situé au premier étage d’une résidence sécurisée et parfaitement entretenue, ce T3/T4 séduit par son agencement fonctionnel et la qualité de ses prestations.
Â
Le séjour, lumineux, s’ouvre sur un balcon bénéficiant d’une vue dégagée, idéal pour profiter au calme.Â
La cuisine neuve est aménagée et équipée. Elle est complétée par une loggia pratique, offrant un espace de rangement ou buanderie appréciable.
L’espace nuit se compose actuellement de deux chambres, avec la possibilité d’en créer aisément une troisième selon vos besoins (bureau, chambre d’enfant ou espace télétravail).
Â
Traversant, l’appartement bénéficie d’une belle luminosité tout au long de la journée. Il dispose également de la climatisation réversible, d’une cave et d’un stationnement.Â
Son emplacement central, son environnement paisible et ses prestations en font un bien rare sur le secteur.
Aucun travaux à prévoir : un appartement clé en main, prêt à accueillir ses nouveaux propriétaires.
Annonce proposée par un agent commercial
Localisation Du bien
-
Commerces et santé
-
Loisirs
-
Ecoles
-
Transports
-
Pratique
Les infos Energetiques
Ce site est protégé par reCAPTCHA, les Politiques de Confidentialité et les Conditions d'Utilisation de Google s'appliquent.
Détails des diagnostics énergétiques
Montant estimé des dépenses annuelles d'énergie pour un usage standard est compris entre 790 € et 1 140 € . Prix moyens des énergies indexés sur les années 2021, 2022 et 2023 (abonnements compris).
