Les infos Essentielles
RENNES - QUARTIER ALPHONSE GUERIN - à 50 mètres de la promenade des bonnets rouges.
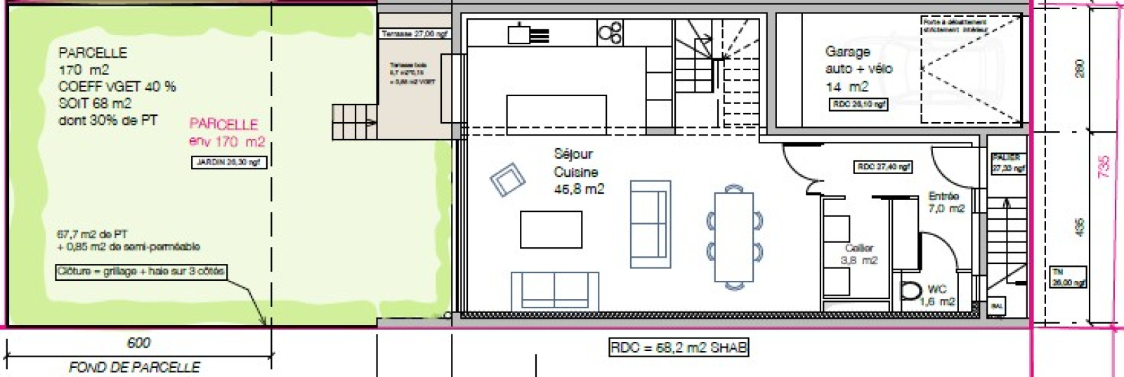
Terrain à bâtir de 171 m2 non viabilisé libre de constructeur.
Cadre de vie très agréable situé à quelques pas de la promenade des bonnets rouges, des commerces et du centre ville.
Possibilité de construire une maison neuve de 90 à 150 m2 orientée à l'Ouest.
Démolition du bâti existant à prévoir.
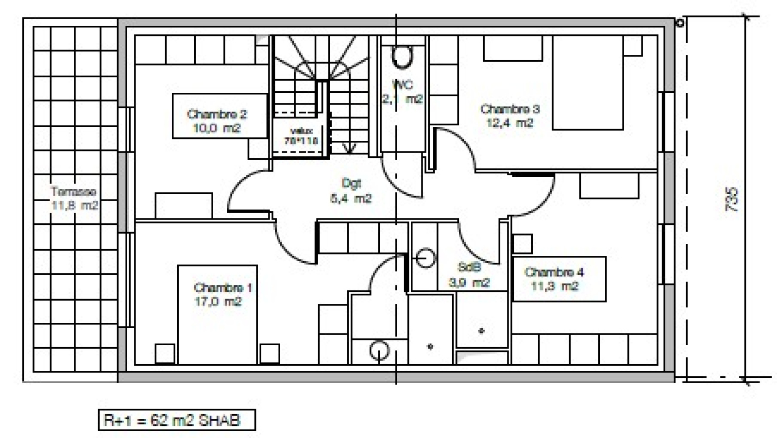
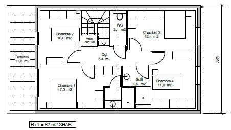
Plan sur demande pour une maison de 95 m2 avec 3 chambres (budget terrain + maison autour de 500 000 €) ou une maison de 120 m2 avec 4 chambres (budget terrain + maison autour de 550 000 €).
Annonce proposée par un agent commercial
Localisation Du bien
-
Commerces et santé
-
Loisirs
-
Ecoles
-
Transports
-
Pratique
Ce site est protégé par reCAPTCHA, les Politiques de Confidentialité et les Conditions d'Utilisation de Google s'appliquent.
