Les infos Essentielles
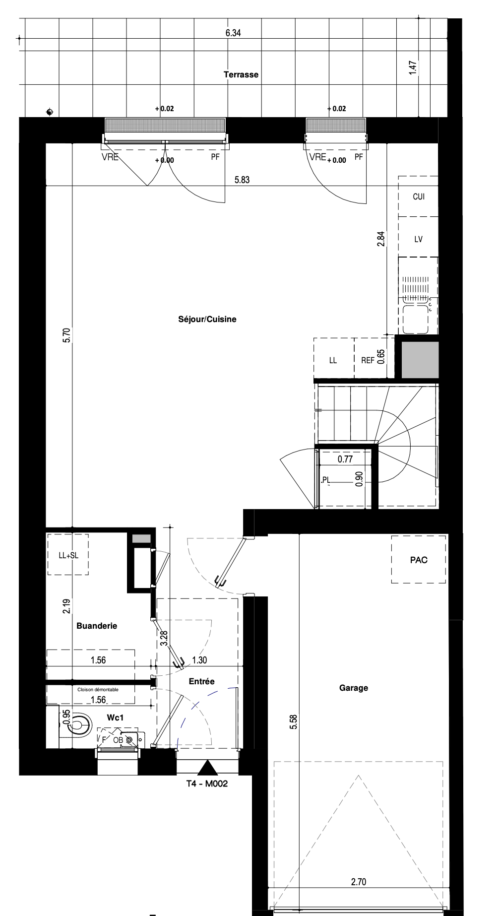
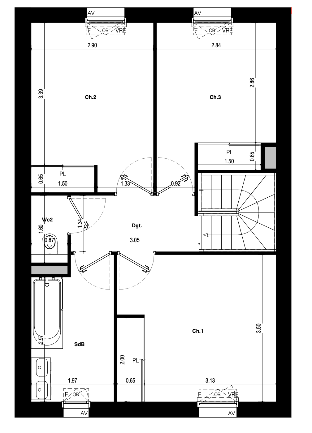
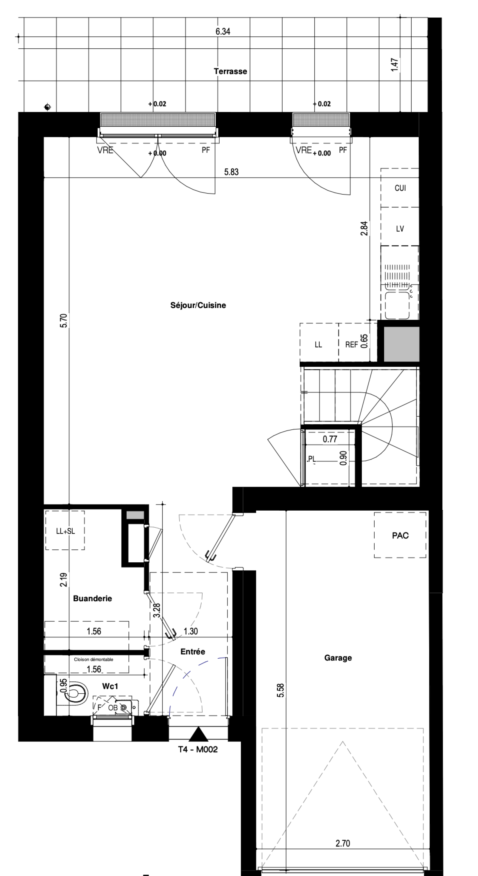
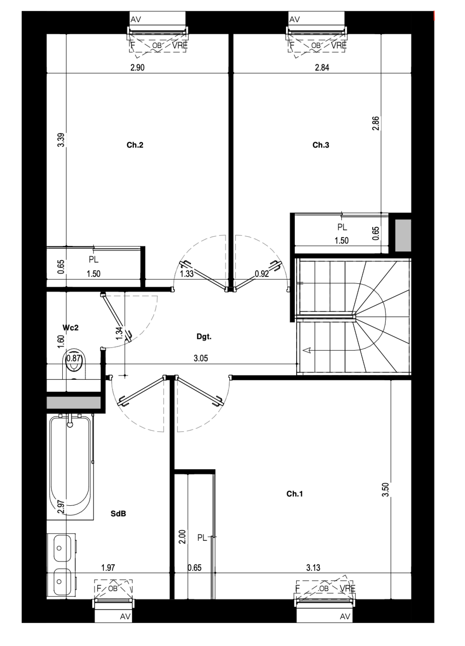
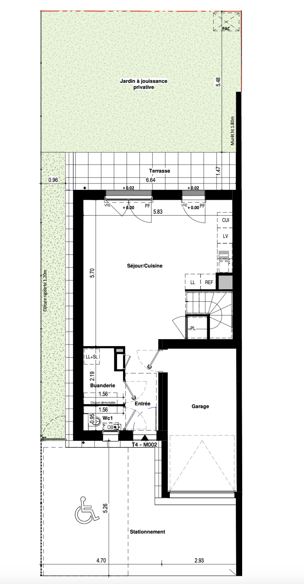
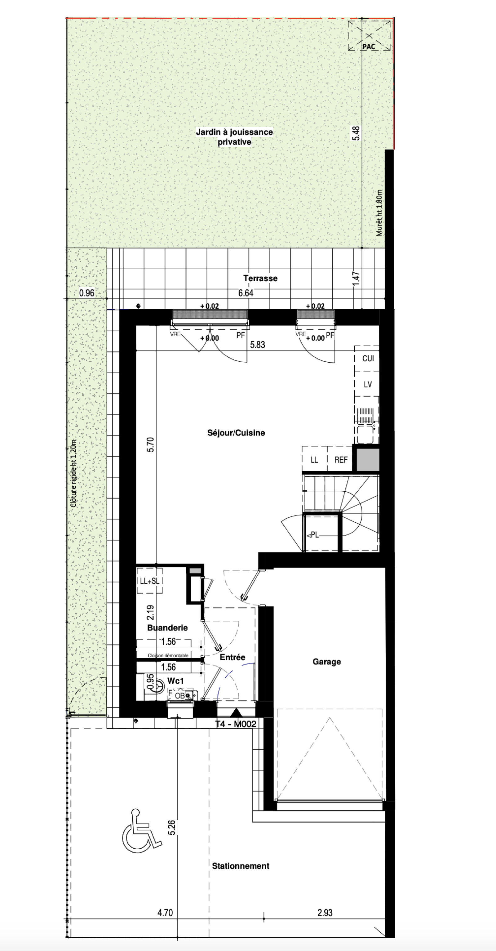
RIVE DROITE - Yonathan Sourigon vous propose une belle opportunité à ne pas manquer : - RENNES - Rue Honoré Commereuc secteur Jean Mermoz/rue de Nantes - A quelques minutes de la gare TGV et du centre ville, découvrez cette superbe maison de ville dotée de belle prestations, comprenant: Entrée, séjour salon de 30m² donnant sur terrasse et jardin de 53m², buanderie, wc, garage. A l'étage: 3 chambres, salle de bain, wc. Frais de notaire réduits - Coup de coeur assuré ! A SAISIR
Localisation Du bien
-
Commerces et santé
-
Loisirs
-
Ecoles
-
Transports
-
Pratique
Les infos Energetiques
Ce site est protégé par reCAPTCHA, les Politiques de Confidentialité et les Conditions d'Utilisation de Google s'appliquent.
Détails des diagnostics énergétiques
DINARD - LA VICOMTE - A 5 min de la mer - Appartement du T1 au T4
