Les infos Essentielles
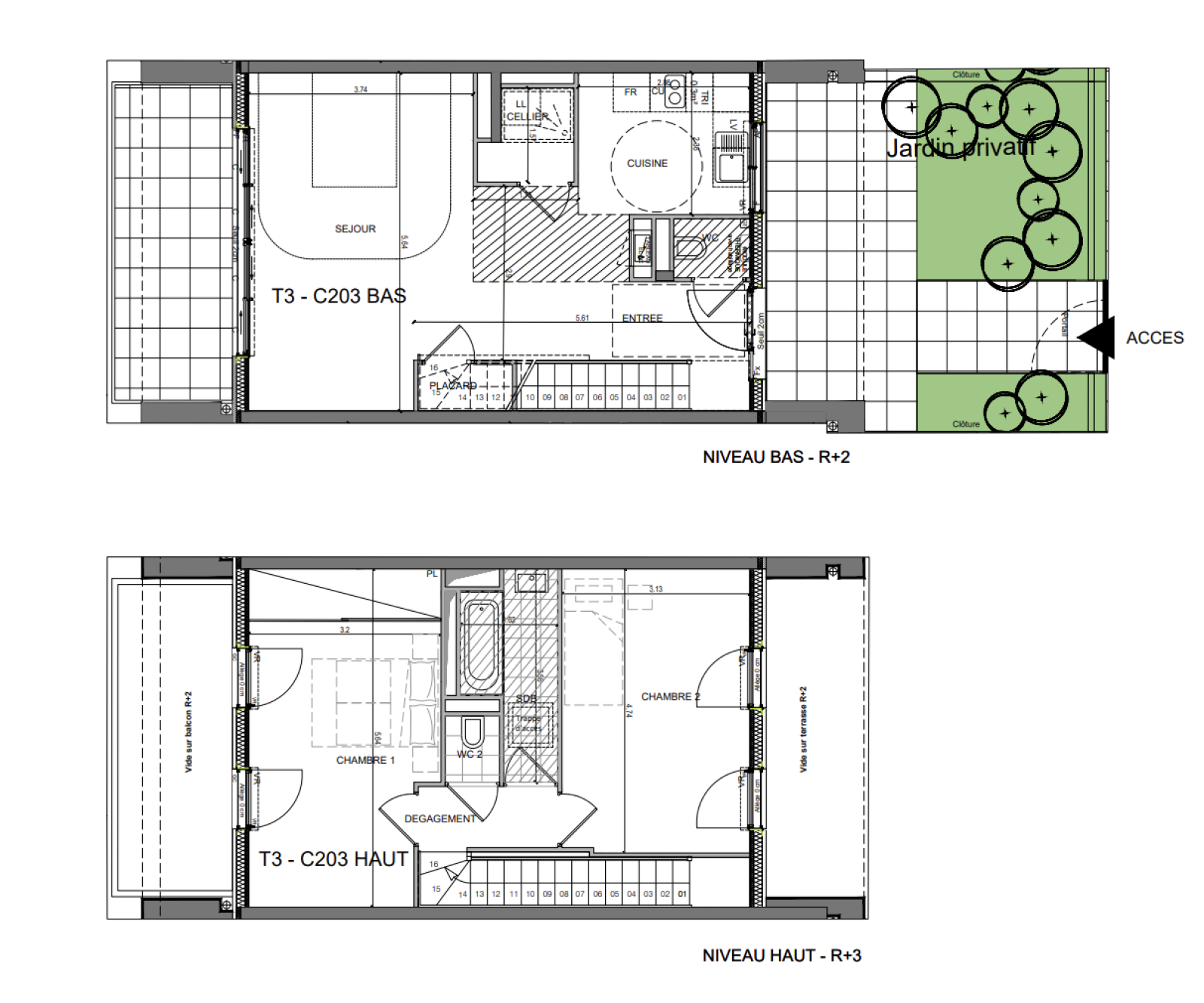
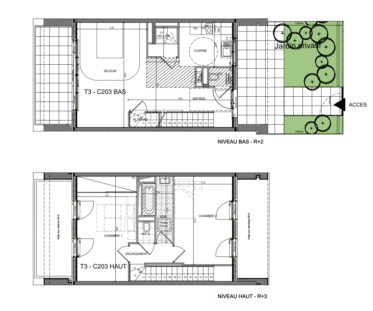
RIVE DROITE agence de RENNES - Yonathan sourigon vous propose: OPPORTUNITE A SAISIR - RENNES - BAUD CHARDONNET - A proximité d'un parc de 5 hectares au bord de l'eau et au coeur d'un environnement paysagé doté d'un accès direct vers le centre ville (entre 5 et 10 min) en voiture, bus, ou vélo, découvrez nos charmantes maisons de ville urbaine, à l'architecture sobre et élégante. Superbe maison T3: Au 1er niveau: Séjour-cuisine d'environ 35m² donnant sur grand balcon, terrasse et jardinet, cellier, wc. A l'étage: 2 chambres, salle de bain, wc. Parking en sous sol -
Ses atouts: Confort assuré - Prestations modernes de qualité - performances énergétiques - Emplacement recherché - Frais de notaire réduits - ELIGIBLE PRET A TAUX ZERO - DISPONIBLE 2025 - IDEAL POUR RESIDENCE PRINCIPALE - PRIX 326.000€ (BRS4 soumis à conditions)
Localisation Du bien
-
Commerces et santé
-
Loisirs
-
Ecoles
-
Transports
-
Pratique
Les infos Energetiques
Ce site est protégé par reCAPTCHA, les Politiques de Confidentialité et les Conditions d'Utilisation de Google s'appliquent.
Détails des diagnostics énergétiques
Maison d'habitation proche de la Place de Bretagne
