Les infos Essentielles
RIVE DROITE Agence de Rennes - Yonathan Sourigon vous propose cette OPPORTUNITE A SAISIR pour INVESTIR ou HABITER, idéalement située à l'angle du Boulevard de Metz/ Rue de Fougères,à proximité immédiate des commerces, écoles, transports, et du quartier recherché Thabor/Sévigné.
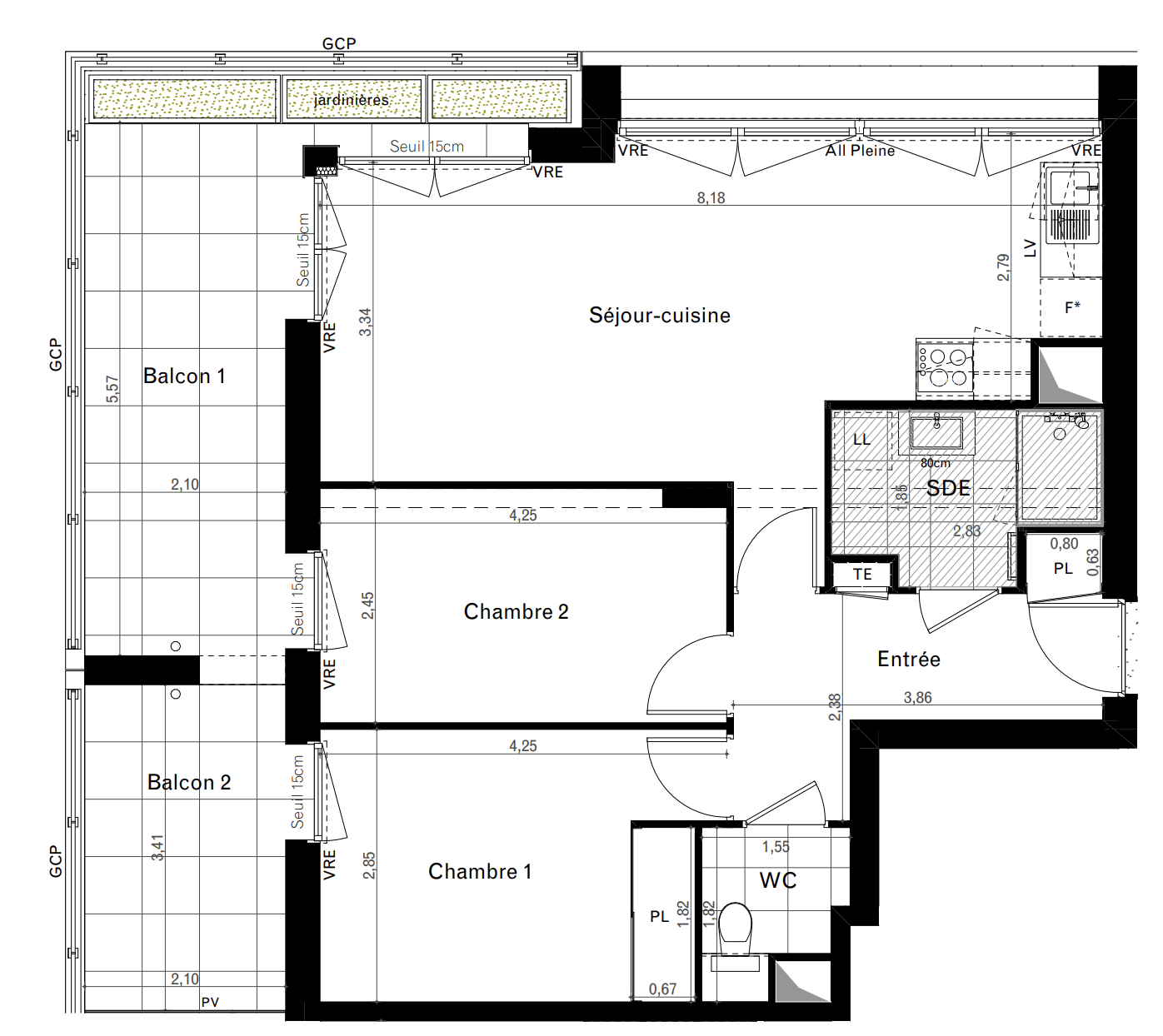
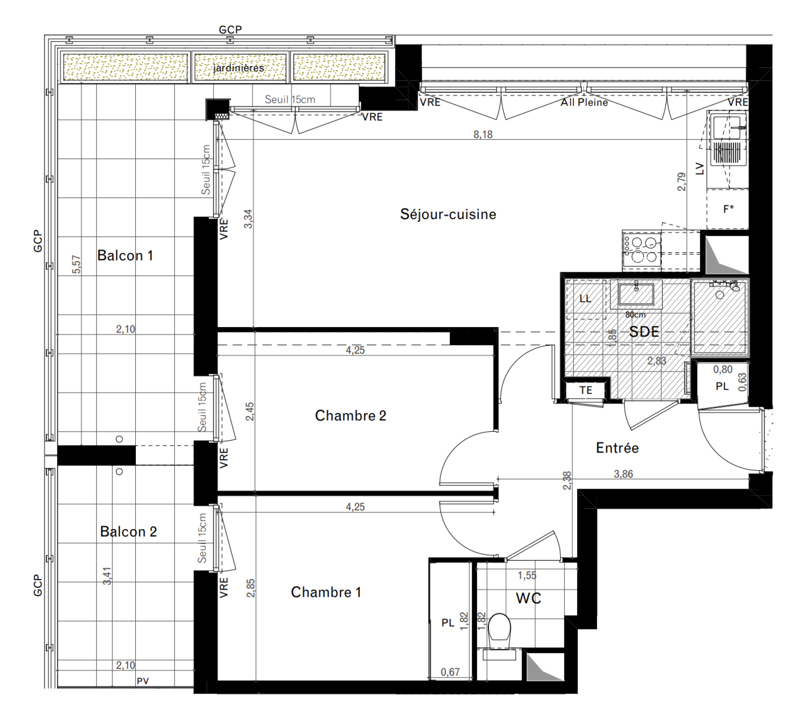
Dans une résidence de standing, à l'architecture élégante et dotées de belles prestations, découvrez ce superbe T3 exposéouest pourvu d'un séjour-salon donnant sur 2 balcons de plus de 20M2, 2 chambres. Logement économe en énergie, et disposant de tout le confort moderne.
INVESTISSEMENT DE QUALITE - Disponibilité en 2027 - A VOIR RAPIDEMENT - RARE SUR LE MARCHE -Â
Localisation Du bien
-
Commerces et santé
-
Loisirs
-
Ecoles
-
Transports
-
Pratique
Les infos Energetiques
Ce site est protégé par reCAPTCHA, les Politiques de Confidentialité et les Conditions d'Utilisation de Google s'appliquent.
Détails des diagnostics énergétiques
RENNES THABOR - FOUGERES (Bd de Metz) - Appartement T3 avec BALCON
