Les infos Essentielles
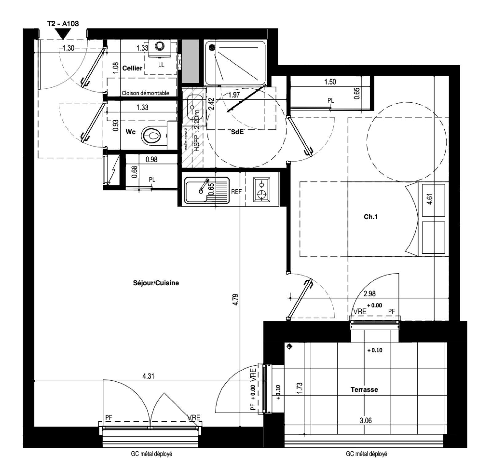
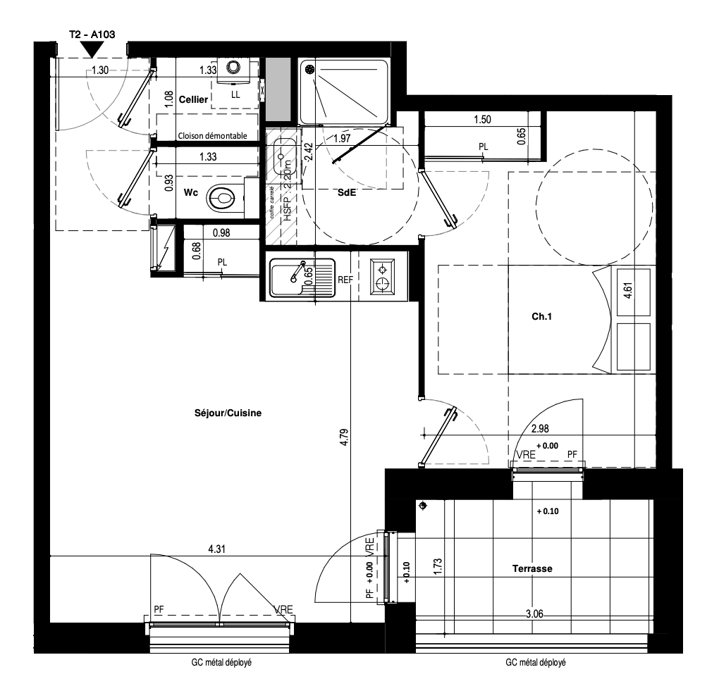
RIVE DROITE - Yonathan Sourigon vous propose: RENNES SAINT JACQUES / Bd JEAN MERMOZ - Découvrez ce superbe T2 doté de belles prestations située dans un environnement agréable proche de la Rue de Nantes. Il comprend: Une entrée, cellier, wc séparé, un séjour-salon avec cuisine ouverte donnant sur un joli balcon exposé Ouest, grande chambre avec placard, salle d'eau. Eligible Prêt à taux zéro. Frais de notaire réduits. Disponible Juin 2027. A VOIR RAPIDEMENTÂ
Localisation Du bien
-
Commerces et santé
-
Loisirs
-
Ecoles
-
Transports
-
Pratique
Les infos Energetiques
Ce site est protégé par reCAPTCHA, les Politiques de Confidentialité et les Conditions d'Utilisation de Google s'appliquent.
Détails des diagnostics énergétiques
CHANTEPIE T2 avec Balcon
