Les infos Essentielles
RIVE DROITE agence de RENNES - Yonathan Sourigon vous propose cette BELLE OPPORTUNITE POUR INVESTIR - A SAISIR - Bel investissement patrimonial durable - Rennes Beaulieu - Proche Campus et métro -
- Dans résidence moderne à l'architecture soignée, Très beau T2 bien agencé et équipé- Equipements communs: Salle d'étude - salle de réunion - buanderie - locaux vélos - ROOFTOP -
Résicence très plebiscitée par les étudiants - Loyer meublé prévisionnel 780€/mois si mise en location -Â
Ses atouts: Confort assuré - Prestations modernes de qualité - performances énergétiques - Emplacement recherché - Frais de notaire réduits - DISPONIBLE DEBUT 2026 - IDEAL POUR INVESTISSEUR - Ce logement a toutes les qualités pour vous séduire -Â
Localisation Du bien
-
Commerces et santé
-
Loisirs
-
Ecoles
-
Transports
-
Pratique
Les infos Energetiques
Ce site est protégé par reCAPTCHA, les Politiques de Confidentialité et les Conditions d'Utilisation de Google s'appliquent.
Détails des diagnostics énergétiques
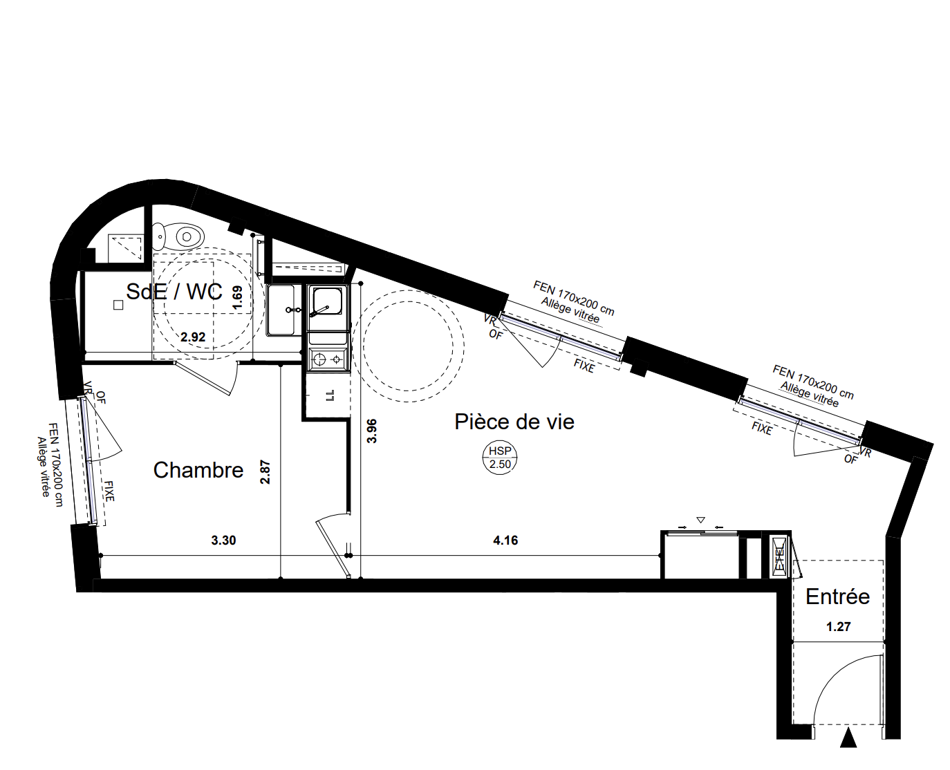
Mail François Mitterand/ T2/ 35 m²/ Balcon/
