Les infos Essentielles
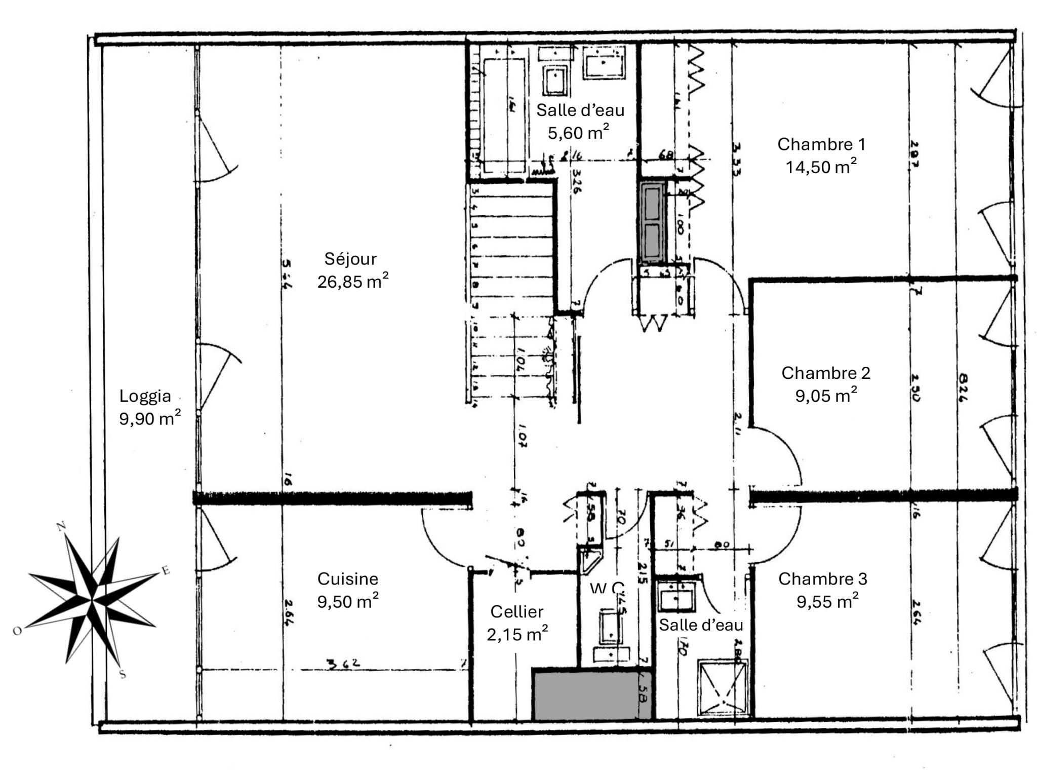
Cet appartement traversant de 4 pièces sur 85,40 m², imaginé par Jacques Kalisz, membre de l'académie d'architecture, chevalier des arts et des lettres et de l'ordre national du mérite, avec une loggia de 9,90 m² exposé à l’ouest et une place de stationnement en sous-sol, est situé à quelques minutes à pied de la gare RER A Nanterre Préfecture et la gare RER E Nanterre La Folie, entre le square de La Brèche et le square Georges Pernoud donnant eux-mêmes sur le Parc André Malraux (25 ha paysagés).
Il est composé au 2ème étage d’un pallier privatif de 1,45 m² relié par un escalier privatif à l’appartement qui se trouve au 3ème étage (équivalent à un 7ème étage).
L’appartement en lui-même est composé d’un séjour, séparé par une cloison vitrée coulissante de l’accès aux chambres et aux sanitaires, d’une cuisine d’une cuisine meublée et équipée, ² d’une loggia exposée à l’ouest, de 3 chambres exposées à l’est, d’un cellier jouxtant la cuisine, de deux salles d’eau dont une avec W.C. et de W.C. indépendants avec lavabo
Il est vendu avec un box fermé en sous-sol situé dans le parking souterrain accessible directement des ascenseurs.
Calme, clair et offrant une vue sur le square de La Brèche à l’ouest et sur le square Georges Pernoud à l’est avec l’Ecole de Ballet de l’Opéra de Paris en premier plan et La défense en arrière-plan, il est très facile d’accès, aussi bien en voiture qu’en transports en commun : Gare RER A Nanterre Préfecture à 4mn à pied, Gare de La Défense Grande-Arche avec RER, métro, train et tramway à 20 mn à pied (1mn30 en RER), gare de Nanterre Université a 15 mn à pied, ainsi que de nombreuses lignes de bus, donnent un accès rapide à l’ensemble de la région parisienne. Sa proximité avec La Défense accessible en 15-20 mn par zone piétonne offre de très nombreux emplois qualifiés.
Un rafraichissement, et une révision de l’électricité, qui fonctionne mais qui est aux normes de 1974 seraient bienvenu.
Implanté dans une vaste zone piétonne agrémentée de squares arborés et d’un grand parc de 25 hectares paysagé avec pièce d’eau, grande pelouses accessibles, jardin de collection, etc., il offre dès aujourd’hui une qualité de vie rare en proche région parisienne, en particulier lorsqu’on a des enfants, avec de très nombreuses offres culturelles, sportives et associatives accessibles à pied. La proximité des crèches, haltes garderies, écoles, centre aéré et commerces facilitera la vie de toute la famille.
Situé en lisière de la zone Seine-Arche et profitant du Grand Paris, il bénéficiera à termes des plus-values engendrées par les nombreuses infrastructures prévues à proximité : gare RER E qui vient d’être mise en service, métros 15 et 18, nouveau tramway, nouvelles universités et écoles supérieures, nombreux nouveaux sièges sociaux, etc.
Dossier complet sur l'appartement, l'immeuble et son quartier par retour d'Email.
Annonce proposée par un agent commercial
Les informations sur les risques auxquels ce bien est exposé sont disponibles sur le site Géorisques
Localisation Du bien
-
Commerces et santé
-
Loisirs
-
Ecoles
-
Transports
-
Pratique
Les infos Energetiques
Ce site est protégé par reCAPTCHA, les Politiques de Confidentialité et les Conditions d'Utilisation de Google s'appliquent.
Détails des diagnostics énergétiques
Montant estimé des dépenses annuelles d'énergie pour un usage standard est compris entre 1 560 € et 2 170 € . Prix moyens des énergies indexés sur les années 2021, 2022 et 2023 (abonnements compris).
