Les infos Essentielles
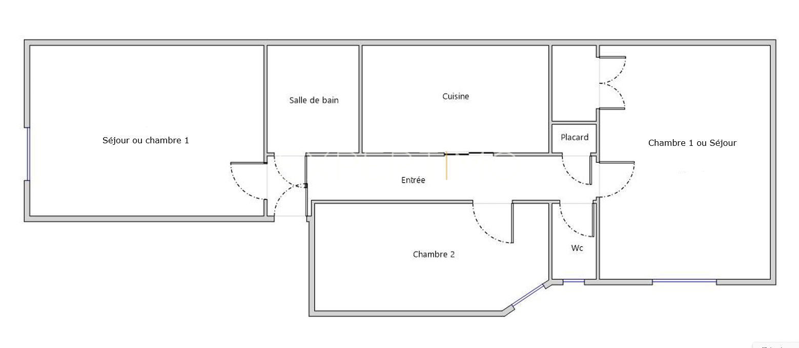
Exclusivité Asnières/Seine Les Bourguignons : Situé dans une petite rue résidentielle au calme, cet appartement traversant de 3 pièces de 52 m² bénéficie d’un emplacement privilégié, à proximité immédiate des commerces, des services et du métro Les Agnettes (L13 & L15) à 6 mn à pied.
Si vous recherchez un cadre calme et authentique, vous serez particulièrement séduits par le cachet de l’ancien : parquet, cheminées, belle hauteur sous plafond. Agréable à vivre et sans perte de place, le séjour donne sur rue, tandis que les deux chambres de 13 m² et 8 m² ouvrent sur cour. La cuisine (5 m²) et la salle de bains (3 m²) sont à rafraîchir, wc séparé et rangements.
Il est situé au rez-de-chaussée d’un bel immeuble du 19è siècle, en parfait état et très bien entretenu (ravalement avec isolation réalisé). Les faibles charges de copropriété incluent l’eau et le chauffage. Une cave complète le bien.
Un appartement rare que vous apprécierez pleinement une fois mis à votre goût. Idéal 1er achat ou profession libérale. Une opportunité pour concrétiser votre projet immobilier.
Pour en savoir plus et planifier une visite, Badia MARZAKI, Consultante immobilière Expertimo, Partenaire de votre projet immobilier, Proche de vous.
Annonce proposée par un agent commercial
Localisation Du bien
-
Commerces et santé
-
Loisirs
-
Ecoles
-
Transports
-
Pratique
Les infos Energetiques
Ce site est protégé par reCAPTCHA, les Politiques de Confidentialité et les Conditions d'Utilisation de Google s'appliquent.
