Les infos Essentielles
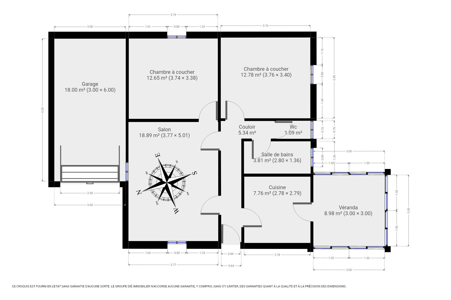
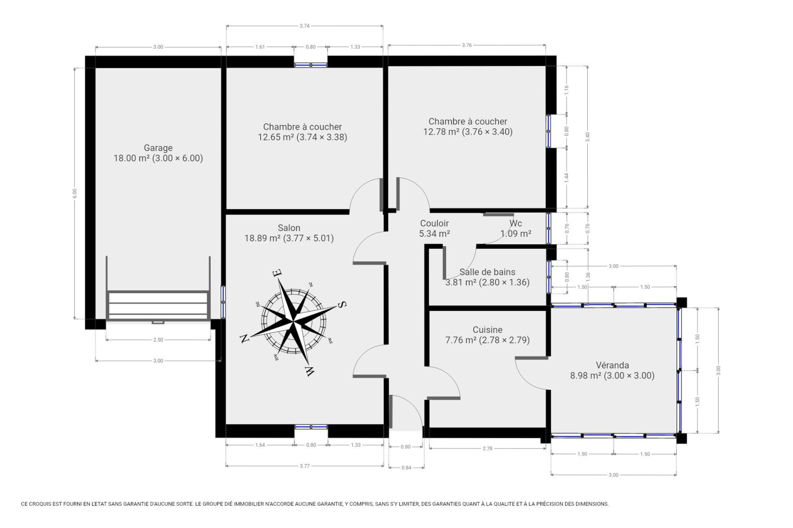
À vendre : venez découvrir cette maison de 3 pièces de 71 m² et de 751 m² de terrain située à La Teste-de-Buch - Cazaux (33260). La maison, avec vue sur jardin, bénéficie d'une exposition sud. Elle dispose d'un séjour, de deux chambres, d'une cuisine indépendante, d'une salle de bains et d'un wc. Un chauffage fonctionnant au gaz est installé dans la maison. Cinq places de parking en intérieur sont prévues pour stationner vos véhicules. Des écoles maternelles et élémentaires se trouvent à moins de 10 minutes : l'École Élementaire Cazaux Lafon et l'École Maternelle Cazaux la Farandole. Il y a un accès à l'autoroute A660 à 18 km. Il y a plusieurs restaurants à quelques minutes. Cette maison de 3 pièces est à vendre pour la somme de 350 000 € (honoraires à la charge du vendeur).
Localisation Du bien
-
Commerces et santé
-
Loisirs
-
Ecoles
-
Transports
-
Pratique
Les infos Energetiques
Intéressé(e) par
Ce bien ?
Détails des diagnostics énergétiques
DPE ANCIENNE VERSION
