Réf : ETOILEE
Coup de coeur

Bron (69500) Rare en maison HPE construite en 2014 à 30 minutes de lyon Bellecour

4 Pièce(s)
3 Chambre(s)

Les infos Essentielles

Caractéristiques Valeurs
Code postal 69500
Surface habitable (m²) 88 m²
surface terrain 1 100 m²
Surface loi Carrez (m²) 87,47 m²
Caractéristiques Valeurs
Nombre de chambre(s) 3
Nombre de pièces 4
Nombre de niveaux 2
Vue jardin
Caractéristiques Valeurs
Nb de salle d'eau 1
Cuisine Américaine
Type de cuisine Equipée
Mode de chauffage Electrique
Caractéristiques Valeurs
Type de chauffage Panneaux rayonnant
Format de chauffage Individuel
Visiophone OUI
Balcon NON
Caractéristiques Valeurs
Terrasse OUI
Sous/sol AVEC
Cave OUI
Nombre de parking 2
Caractéristiques Valeurs
Surface cave (m²) 8
Exposition Nord-Sud
Année de construction 2014
Terrain piscinable OUI
Caractéristiques Valeurs
Terrain arboré OUI
Terrain divisible NON
Copropriété NON
Quote Part annuelle des charges de copropriété 450 €
Caractéristiques Valeurs
plan de sauvegarde NON
statut du syndic pas de procédure en cours
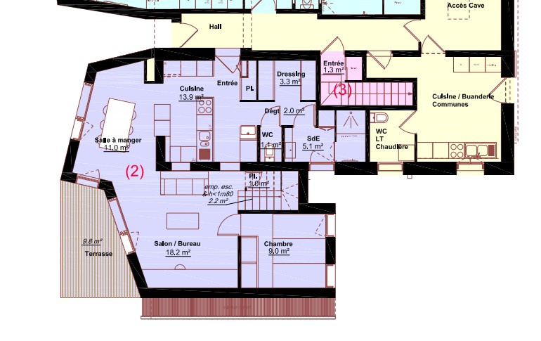
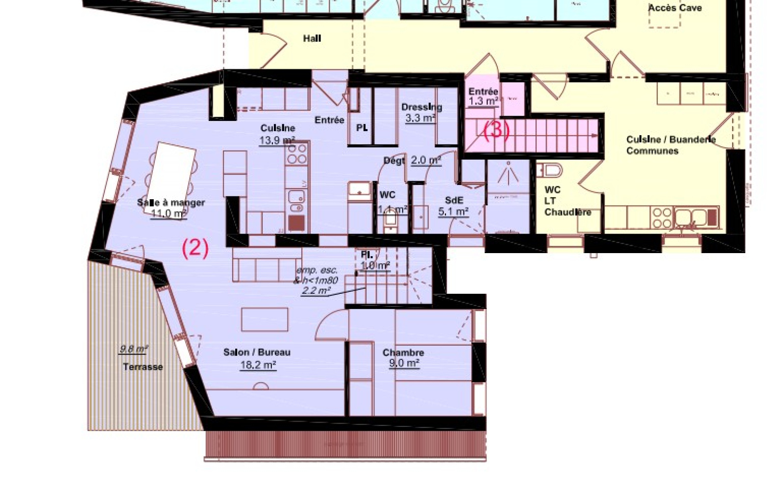
RARE à 20 minutes de Lyon, dans un immeuble de 11 ans construit avec des matériaux durables de qualité, visitez ce rez de jardin de 88 m² sans compter les communs habitables, dans une copropriété à taille humaine de 3 familles. Si vous cherchez le mixte et les avantages de la maison et la copropriété , intéressez vous à ce lieu rare qui allie habitat économe contemporain avec le calme, la sécurité, la verdure, et les commodités proches. Cet appartement de 88 m² avec 3 chambres est juste rarissime . Avec un DPE de classe B + (panneaux solaires pour l'eau, isolation thermique sur les 4 côtés du bâti), des baies permettant une grande luminosité naturelle, la présence du bois apaisante, cet appartement est également accessible aux personnes à mobilité réduite . Agencé avec de plain pied, une cuisine ouverte sur la pièces à vivre puis un espace salle d'eau, WC et placard technique pour finir par une chambre et beaucoup de rangements sur mesure. A l'étage : deux chambres avec rangements + coin lecture. Les terrasses se choisissent au nombre de 4 si on compte celle des communs avec potager, barbecue, pergola... Des parkings (6) sont également présents à l'entrée fermée par un portail automatique. Côté situation, vous avez le TRAM à 10 minutes à pied et le bus à 5 minutes tout comme les écoles . Le quartier est pavillonnaire et le jardin verdoyant sans vis à vis . Une cave en sous sol, un local à vélos, une chambre d'amis, une buanderie et une cuisine d'été vous permettent d'agrandir votre espace privatif. Les charges de l'immeuble de 6 lots en tout sont de 450 euros/an Informez vous auprès de Magalie PLACE au 06 14 21 57 54 Conseillère indépendante E.I Expertimo enregistré au régime spécial des agents commerciaux de Lyon N° 848 012 563 Le site géorisques vous indique les risques technologiques de la commune. Film visite disponible sur demande .

Annonce proposée par un agent commercial


Les informations sur les risques auxquels ce bien est exposé sont disponibles sur le site Géorisques
Découvrir le bien

Les infos Financières

Prix de vente 369 000 €
Les honoraires d'agence seront intégralement à la charge du vendeur  
Charges mensuelles 40 €
Taxe foncière annuelle 925 €

Nos outils

Imprimer
object(Applications\Sites\Model\Localite\ModelVille)#972 (15) { ["_pays":protected]=> object(Applications\Sites\Model\Localite\ModelPays)#1026 (7) { ["container":protected]=> NULL ["id"]=> string(1) "1" ["externalId"]=> string(1) "1" ["name"]=> string(6) "france" ["humanName"]=> string(6) "France" ["isoCode"]=> string(2) "fr" ["noZipCode"]=> string(1) "0" } ["cp":protected]=> NULL ["id":protected]=> string(4) "1638" ["idcp":protected]=> NULL ["humanName":protected]=> string(4) "Bron" ["_ville":protected]=> NULL ["_code":protected]=> object(Applications\Sites\Model\Localite\ModelCode)#1027 (11) { ["_pays":protected]=> object(Applications\Sites\Model\Localite\ModelPays)#1026 (7) { ["container":protected]=> NULL ["id"]=> string(1) "1" ["externalId"]=> string(1) "1" ["name"]=> string(6) "france" ["humanName"]=> string(6) "France" ["isoCode"]=> string(2) "fr" ["noZipCode"]=> string(1) "0" } ["cp":protected]=> NULL ["container":protected]=> NULL ["id"]=> string(4) "1245" ["externalId"]=> string(4) "4528" ["idPays"]=> string(1) "1" ["code"]=> string(5) "69500" ["latitude"]=> string(12) "45.733299255" ["longitude"]=> string(11) "4.916669846" ["name"]=> NULL ["_point4326"]=> string(25) "æŠ2€«ª@ý3ÿ¿ÜÝF@" } ["container":protected]=> NULL ["externalId"]=> string(5) "28629" ["idPays"]=> string(1) "1" ["name"]=> string(4) "bron" ["latitude"]=> string(12) "45.733299255" ["longitude"]=> string(11) "4.916669846" ["isoCode"]=> string(5) "69029" ["_point4326"]=> string(25) "æŠ2€«ª@ý3ÿ¿ÜÝF@" }

Localisation Du bien

  • Commerces et santé
  • Loisirs
  • Ecoles
  • Transports
  • Pratique

Les infos Energetiques

DPE GES
Rez de chaussée
entrée 6 m²

couloir 2.53 m²

chambre 0.65 m²

avec chasse lavabo

cuisine 7.99 m²

salle d'eau 5.13 m²

une 2eme douche est possible a l'étage

chambre 7.7 m²

parquet

Etage 1
chambre 9.95 m²

chambre 10.12 m²

vue entree sud

autre avec filet 4 m²

* Champ obligatoire

Les informations recueillies sur ce formulaire sont enregistrées dans un fichier informatisé par La Boite Immo agissant comme Sous-traitant du traitement pour la gestion de la clientèle/prospects de l'Agence / du Réseau qui reste Responsable du Traitement de vos Données personnelles. La base légale du traitement repose sur l'intérêt légitime de l'Agence / du Réseau. Elles sont conservées jusqu'à demande de suppression et sont destinées à l'Agence / au Réseau. Conformément à la loi « informatique et libertés », vous disposez des droits d’accès, de rectification, d’effacement, d’opposition, de limitation et de portabilité de vos données. Vous pouvez retirer votre consentement à tout moment en contactant directement l’Agence / Le Réseau. Consultez le site https://cnil.fr/fr pour plus d’informations sur vos droits. Si vous estimez, après avoir contacté l'Agence / le Réseau, que vos droits « Informatique et Libertés » ne sont pas respectés, vous pouvez adresser une réclamation à la CNIL. Nous vous informons de l’existence de la liste d'opposition au démarchage téléphonique « Bloctel », sur laquelle vous pouvez vous inscrire ici : https://www.bloctel.gouv.fr Dans le cadre de la protection des Données personnelles, nous vous invitons à ne pas inscrire de Données sensibles dans le champ de saisie libre.
Ce site est protégé par reCAPTCHA, les Politiques de Confidentialité et les Conditions d'Utilisation de Google s'appliquent.
contacter l'agence