Les infos Essentielles
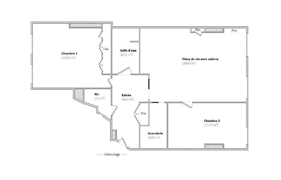
Un bien rare disponible de suite : Cours Vitton, secteur boulevard des Brotteaux, au dernier étage avec ascenseur, dans un immeuble ancien, cet élégant T3 de 77 m² allie le cachet de l'ancien à une rénovation contemporaine de grande qualité.
Dès l’entrée, le ton est donné : placards sur mesure, volumes harmonieux et finitions impeccables. La pièce de vie de 30 m² baignée de lumière vous accueille dans une atmosphère chaleureuse, avec son parquet d’origine et sa cheminée décorative. La cuisine ouverte, parfaitement intégrée et entièrement équipée, séduit par sa fonctionnalité et son esthétique soignée.
Traversant Sud/Nord, l’appartement offre deux chambres confortables de 13 m² et 14,58 m², toutes deux avec placards aménagés. L’une d’elles dispose en plus d’un coin bureau astucieusement aménagé, idéal pour le télétravail. La buanderie indépendante de plus de 4 m², rare et précieuse, complète parfaitement l’espace de vie. La salle d’eau avec sa douche à l’italienne est confortable et moderne, tandis que les toilettes sont séparées pour plus de confort.
Un appartement aux prestations abouties, dans un secteur prisé et vivant, situé entre la parc de la tête d'or et le métro Massena.
Classe énergie: D. Emission gaz à effet de serre : B. Montant estimé des dépenses annuelles d'énergie pour un usage standard : entre 1 110 euros et 1 560 euros (prix moyen des énergies indexés années 2021, 2022, 2023 abonnement compris).
Les informations sur les risques auxquels ce bien est exposé sont disponibles sur le site Géorisques http://www.georisques.gouv.fr
Pour toute demande de renseignements contactez nous. Agent commercial indépendant du Réseau EXPERTIMO RSAC BOURG 501 002 927 00025.Entreprise individuelle.
Annonce proposée par un agent commercial
Localisation Du bien
-
Commerces et santé
-
Loisirs
-
Ecoles
-
Transports
-
Pratique
Les infos Energetiques
Parquet d'origine rénové. Cheminée.
Grands placards aménagés; Parquet. Coin bureau.
Beau parquet
douche à l'italienne
Idéal pour le lave-linge et le sèche-linge
Ce site est protégé par reCAPTCHA, les Politiques de Confidentialité et les Conditions d'Utilisation de Google s'appliquent.
Détails des diagnostics énergétiques
Montant estimé des dépenses annuelles d'énergie pour un usage standard est compris entre 1 110 € et 1 560 € . Prix moyens des énergies indexés sur les années 2021, 2022 et 2023 (abonnements compris).
