Les infos Essentielles
SOUS OFFRE
Situé à Versailles, dans le secteur de Clagny-Glatigny, cet appartement au 2ème étage d'une copropriété ravalée avec des espaces verts, gardien et ascenseur est disponible à la vente.
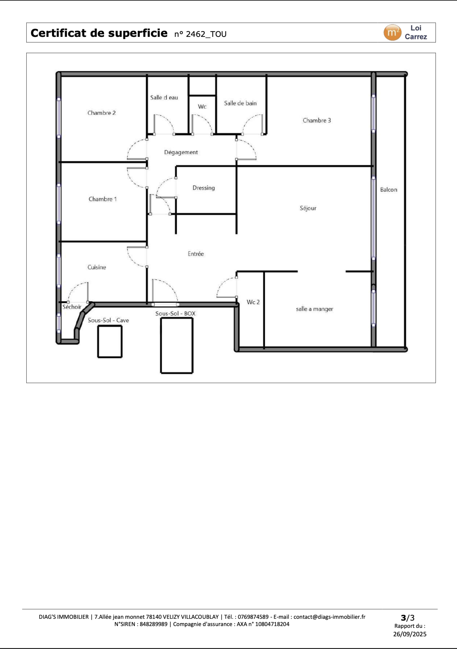
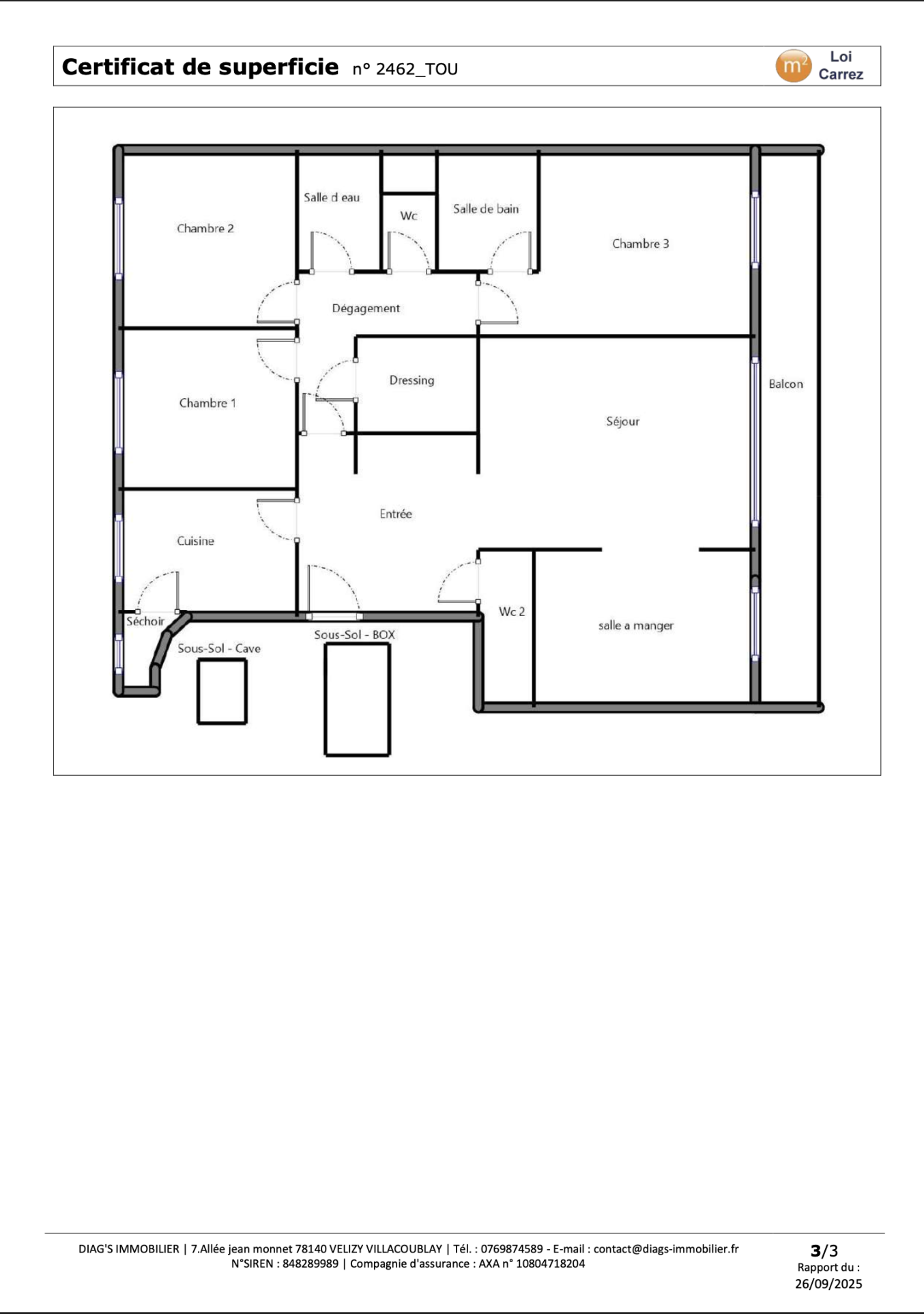
Il dispose de 5 pièces principales d'une surface totale de 110m2 composé : d'une grande entrée avec dressing intégré et WC d'invité, d'une cuisine indépendante entièrement rénovée et équipée, d'un double séjour et d'une salle à manger donnant sur un balcon filant de 12m2 exposé plein Sud. Côté nuit, vous retrouverez un dégagement distribuant trois chambres dont une suite parentale équipée d'une salle de bain, d'une salle d'eau avec douche et vasque, d'un WC d'indépendant, d'un dressing. Un parquet en chêne massif couvre la totalité du bien.
Une cave et une place de parking en sous-sol sécurisée complètent cette description.
Les parties communes sont raffinées, un ravalement des blacons et gardes corps ont eu lieu ces dernières semaines.
20min à pied de la gare de Versailles Rive Droite / Ligne de bus au pied de la résidence desservant toutes les gares de Versailles
Annonce proposée par un agent commercial
Localisation Du bien
-
Commerces et santé
-
Loisirs
-
Ecoles
-
Transports
-
Pratique
Les infos Energetiques
Ce site est protégé par reCAPTCHA, les Politiques de Confidentialité et les Conditions d'Utilisation de Google s'appliquent.
Détails des diagnostics énergétiques
Montant estimé des dépenses annuelles d'énergie pour un usage standard est compris entre 1 560 € et 2 170 € . Prix moyens des énergies indexés sur les années 2021, 2022 et 2023 (abonnements compris).
