Les infos Essentielles
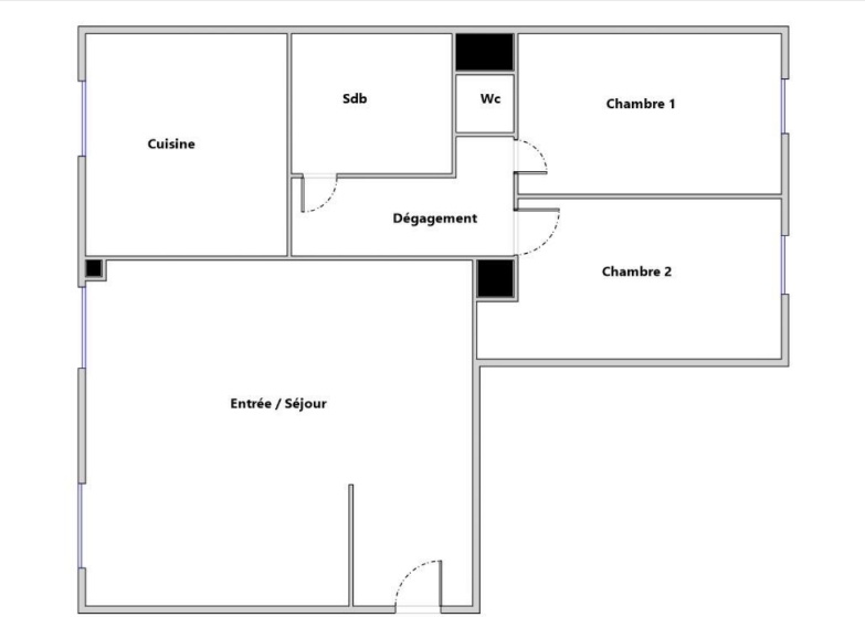
*** BIEN VENDU *** Versailles PORCHEFONTAINE - VUE SUPERBE, COMPLETEMENT DEGAGEE et SANS AUCUN VIS A VIS - APPARTEMENT 4 pièces en BON ETAT et TRES LUMINEUX - RESIDENCE FAMILIALE dans un parc et SECURISEE, TRES BIEN ENTRETENUE - A 10 minutes à pied des GARES des CHANTIERS et PORCHEFONTAINE - BON AGENCEMENT, au CALME - SUD/OUEST – GARDIEN - CAVE - PARKING LIBRE dans la résidence *** Cet appartement de 64m2 baigné de lumière, au 8 ème étage est aménagé avec une entrée, un double salon de 28 m2 avec partie salon et salle à manger, une grande cuisine de 9m2 équipée et aménagée, deux chambres de 9 m2 environ, salle de bains et WC séparés. POSSIBILITE rapide de créer une troisième chambre dans le salon. *** ATOUTS: travaux faits placards, aménagement cuisine, salle d'eau, peintures de tout l'appartement, ballon (2023), fenêtres double vitrage, sols). Faibles charges, bon syndic. Bus, écoles, crèches et commerces au pied de la résidence. ENTRE 10 et 15 minutes à pied des deux gares de Versailles Chantiers (train direct Paris Montparnasse RER C, N, U), Versailles Porchefontaine (RER C pour Paris et L par arrêt Viroflay) et accès direct A86. Bus, écoles, crèches et commerces au pied de la résidence. *** APPARTEMENT en BON ETAT avec un peu de rafraîchissement - *** Profitez d'un prix au m2 encore abordable sur Versailles. A VISITEZ RAPIDEMENT ! ***
Annonce proposée par un agent commercial
Les informations sur les risques auxquels ce bien est exposé sont disponibles sur le site Géorisques
Localisation Du bien
-
Commerces et santé
-
Loisirs
-
Ecoles
-
Transports
-
Pratique
Les infos Energetiques
Détails des diagnostics énergétiques
Montant estimé des dépenses annuelles d'énergie pour un usage standard est compris entre 1 690 € et 2 330 € . Prix moyens des énergies indexés sur les années 2021, 2022 et 2023 (abonnements compris).
