Les infos Essentielles
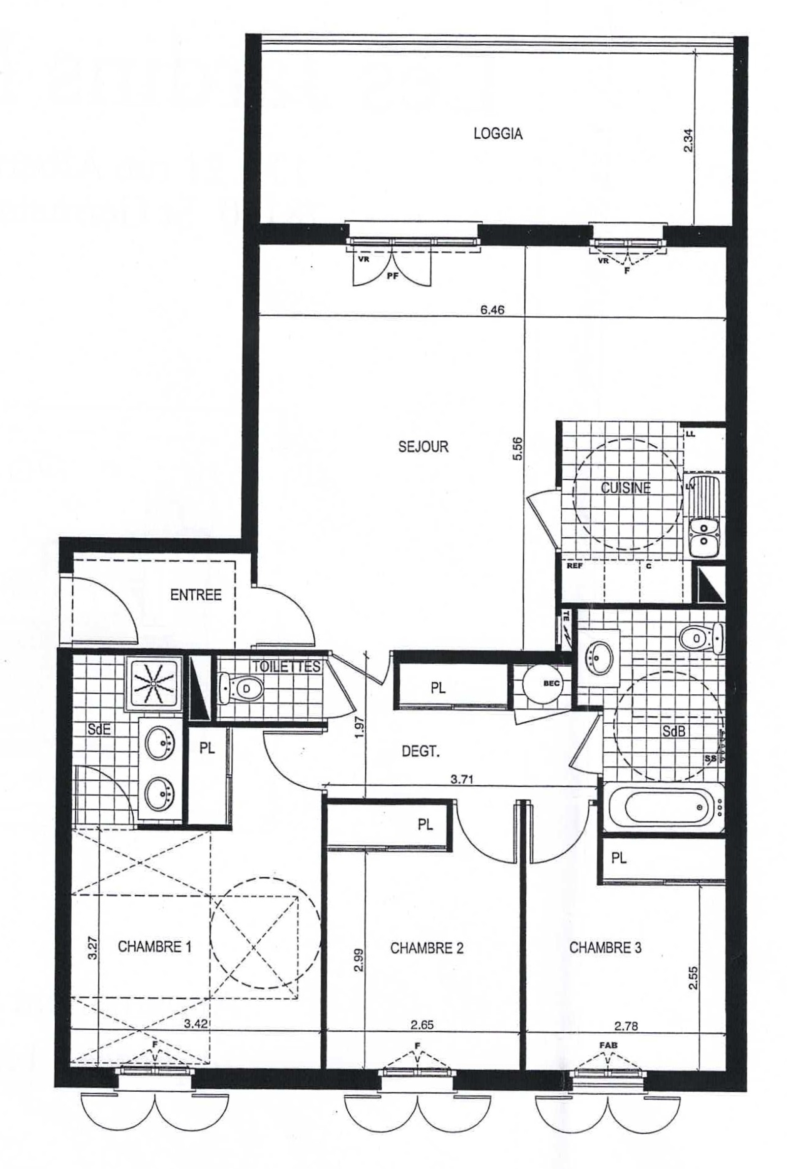
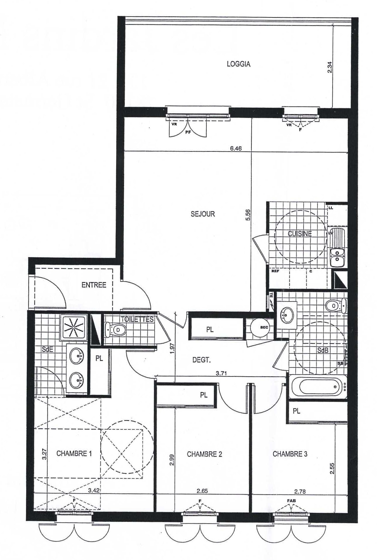
Dans la Résidence Les Jardins de Mermoz (de 2011) à 5 minutes à pied du Tram 13 qui relie efficacement la ville à Versailles et au réseau francilien, complétant l’offre de transport avec le RER A et plusieurs lignes de bus. L'appartement se compose d'un hall d'entrée, un espace de vie de plus de 37m² avec une cuisine, le tout donnant accès à la Terrasse de 15 m² au calme. Un espace nuit offrant un dégagement avec placards intégrés, un Wc indépendant, une salle de bains avec Wc, 3 chambres dont une suite parentale (17m²) avec sa salle d'eau. L’ensemble est lumineux, bien agencé et idéal pour une vie de famille ou un projet d’investissement.
Au sous-sol : 2 emplacements parking.
Annonce proposée par un agent commercial
Localisation Du bien
-
Commerces et santé
-
Loisirs
-
Ecoles
-
Transports
-
Pratique
Les infos Energetiques
Sous-sol (n°12)
Sous-sol (n°11)
avec Water-Closets
avec cuisine ouverte
(suite parentale)
Ce site est protégé par reCAPTCHA, les Politiques de Confidentialité et les Conditions d'Utilisation de Google s'appliquent.
Détails des diagnostics énergétiques
Montant estimé des dépenses annuelles d'énergie pour un usage standard est compris entre 1 130 € et 1 580 € . Prix moyens des énergies indexés sur les années 2021, 2022 et 2023 (abonnements compris).
