Les infos Essentielles
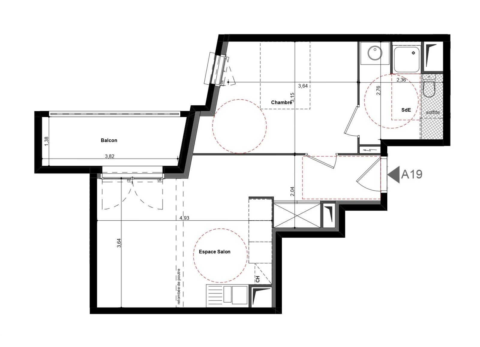
Situé à 800m de la future Marina de Cormeilles. Appartement F2 à Sartrouville de 42.7m² situé au 1er étage avec ascenseur dans une résidence BBC, privée et sécurisée de 2015. L'appartement est constitué d'une entrée avec placard, cuisine américaine ouverte sur le séjour-salon donnant sur le balcon avec une vue verdoyante et dégagée, une chambre et une salle d'eau, WC. Vous appréciérez le calme de l'appartement, l'accès à pied aux quais de Seine, la qualité des matériaux. Le logement dispose également de fenêtres à double vitrage et d'un chauffage au gaz individuel. Il s'accompagne d'une place de parking. Contactez William Gonçalves si vous voulez planifier une visite.
107€ de charges /Mois (soit 1287€ /An)
Annonce proposée par un agent commercial
Localisation Du bien
-
Commerces et santé
-
Loisirs
-
Ecoles
-
Transports
-
Pratique
Les infos Energetiques
Ce site est protégé par reCAPTCHA, les Politiques de Confidentialité et les Conditions d'Utilisation de Google s'appliquent.
