Les infos Essentielles
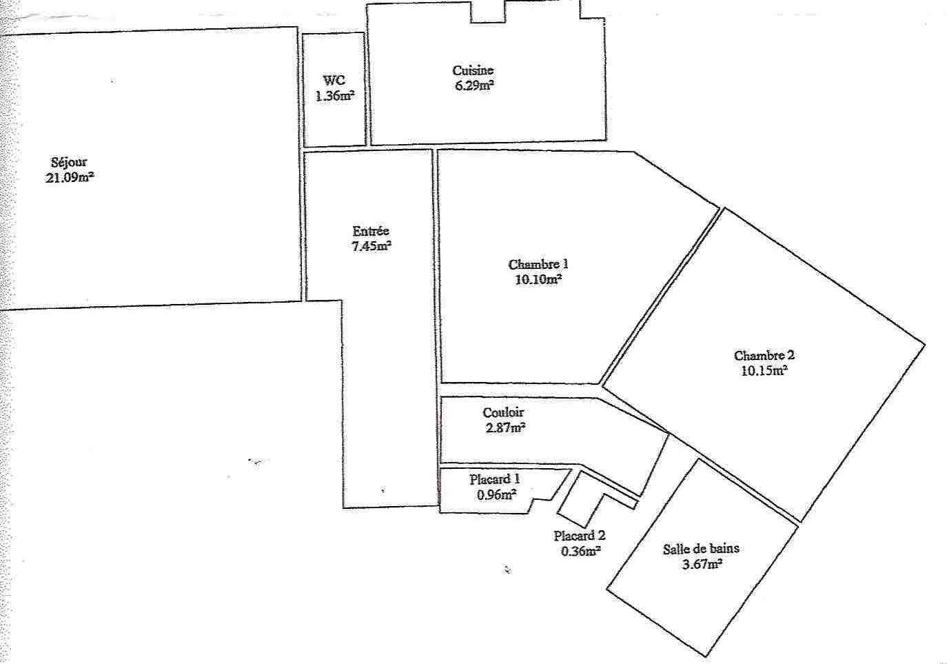
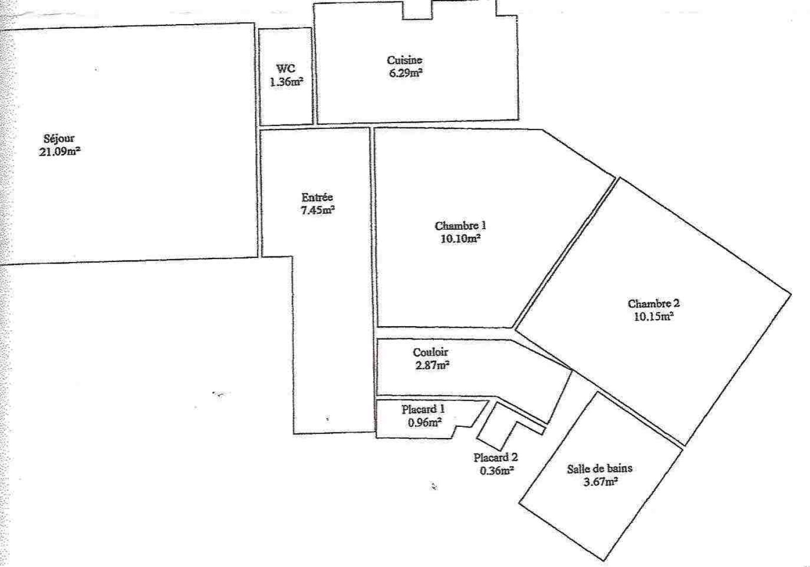
C'est un 3 pièces dans un immeuble de 1959 au 2 éme étage. Il y a peu de travaux à prévoir, c'est calme, traversant, double vitrage.
Si vous voulez en savoir plus  vous pouvez contacter Michel Sidlovski du Réseau Expertimo RC Paris 305653479. Tél : 06 0757 1146Â
Annonce proposée par un agent commercial
Localisation Du bien
-
Commerces et santé
-
Loisirs
-
Ecoles
-
Transports
-
Pratique
Les infos Energetiques
Ce site est protégé par reCAPTCHA, les Politiques de Confidentialité et les Conditions d'Utilisation de Google s'appliquent.
Détails des diagnostics énergétiques
3 piéces paris 13 ème
