Les infos Essentielles
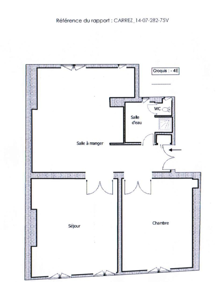
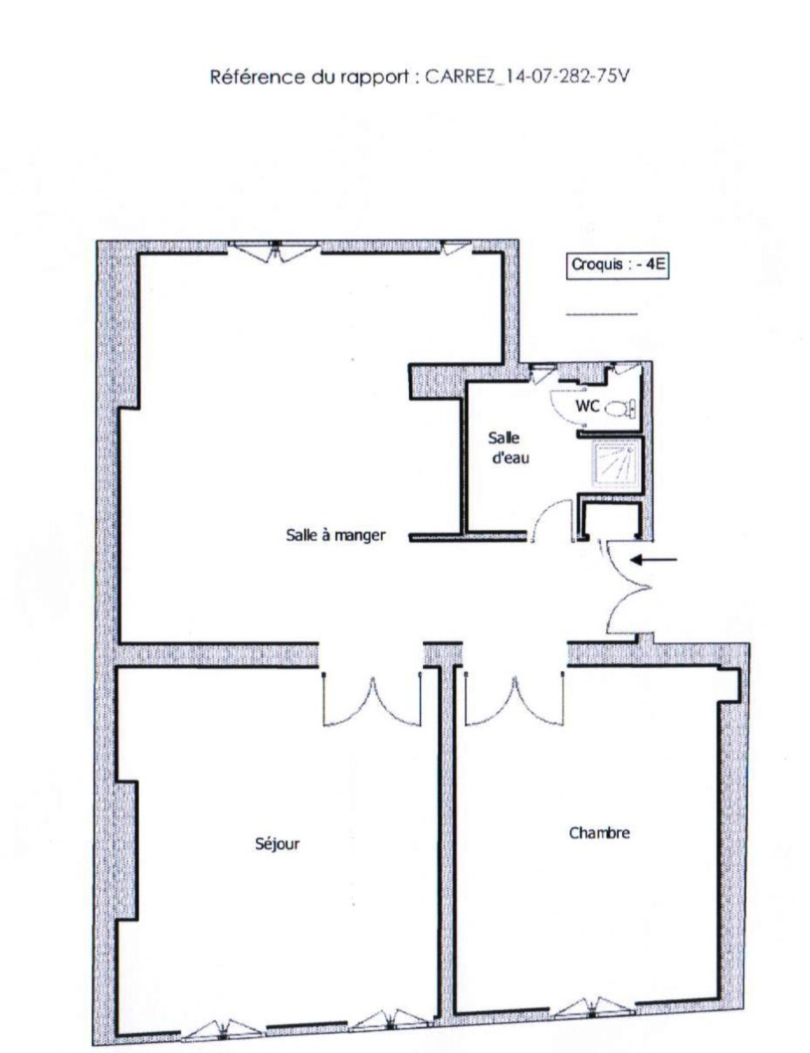
C'est un 2 ,3 pièces de 73 m2 rue d'Alesia entre la rue des Plantes et la rue Didot dans un immeuble de 1930 avec parquet,cheminée,et moulures au 4 ème étage , l'ascenseur est envisagé.L'appartement est traversant et est orienté sud , c'est un mixte d'ancien et de moderne.Il y a une possibilite de parking juste à coté .Appelez moi si vous avez des questions.Michel Sidlovski agent commercial indépendant Expertimo Rc 305653479 Paris tel :0607571146
Annonce proposée par un agent commercial
Localisation Du bien
-
Commerces et santé
-
Loisirs
-
Ecoles
-
Transports
-
Pratique
Les infos Energetiques
Ce site est protégé par reCAPTCHA, les Politiques de Confidentialité et les Conditions d'Utilisation de Google s'appliquent.
Détails des diagnostics énergétiques
3 Pièces Paris 14 ème
