Les infos Essentielles
Découvrez ce magnifique espace de bureau de 144 m² de surface utile conçu pour allier fonctionnalité et design moderne. Avec un prix de 434 725€ cet espace clés en main sera prêt à vous accueillir dès sa livraison vous permettant de vous installer dans un confort optimal.
Caractéristiques principales :
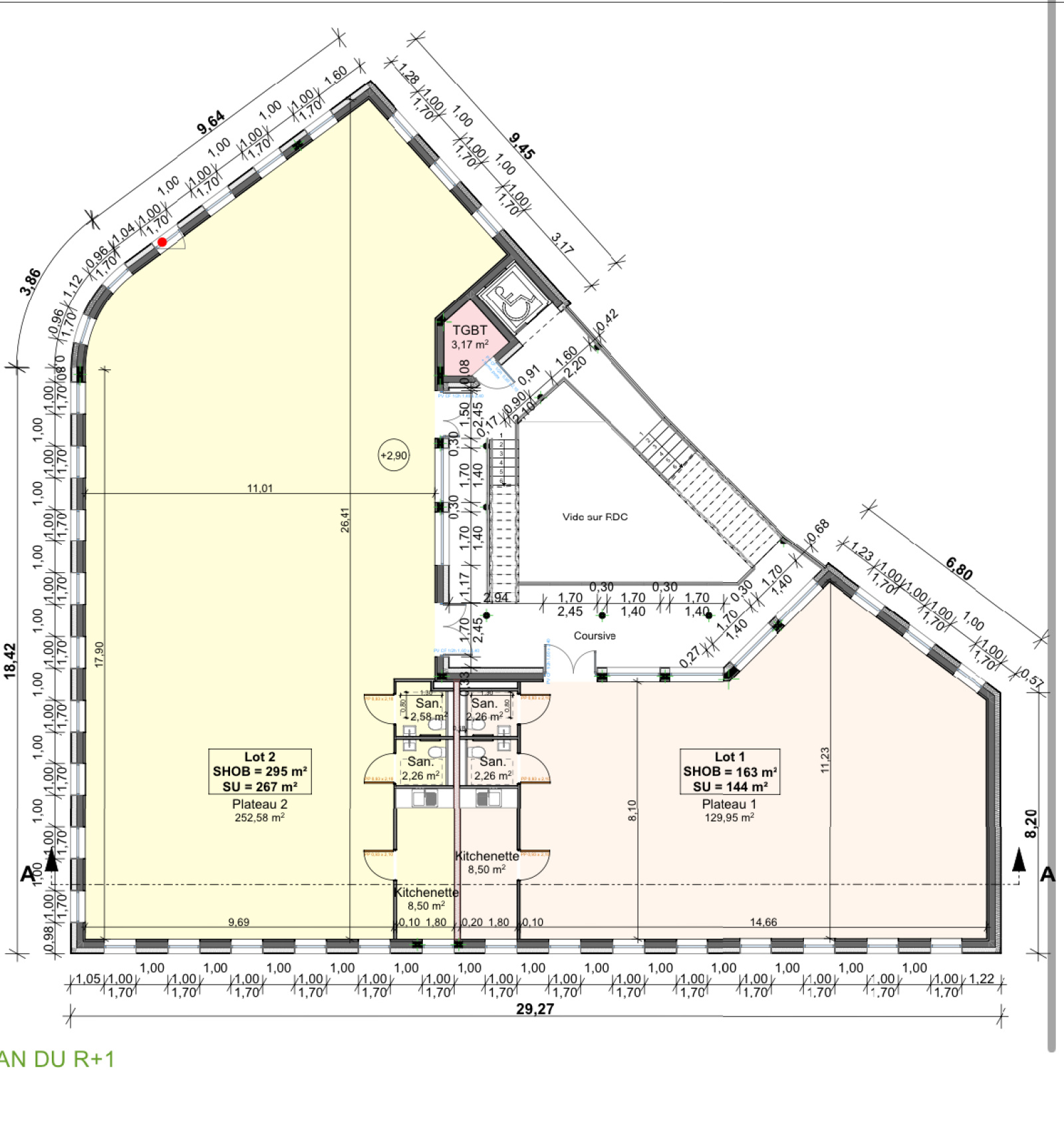
- Surface utile : 144 m² dont 163 m2 SHOB ( Lot N°1 ) idéale pour aménager un espace professionnel à votre image.
- Construction moderne et performante : RT2012 pour garantir une excellente performance énergétique et un confort thermique toute l'année.
- Aménagements inclus : Bureau prêt à l’usage adapté à vos besoins grâce à des finitions haut de gamme.
Avantages supplémentaires :
- Six places de parking attitrées : Incluses dans le prix ces places bénéficient d’un accès sécurisé.
- Accessibilité totale : Ascenseur et conformité PMR (Personnes à Mobilité Réduite).
- Localisation stratégique : Situé à quelques minutes du centre-ville et des grands axes autoroutiers parfait pour une activité professionnelle dynamique.
Grâce à sa localisation en plein cœur d’une zone en plein essor à Montauban ce bureau constitue une excellente opportunité que ce soit pour développer vos activités ou réaliser un investissement à fort potentiel.
N’hésitez pas à me contacter pour plus d’informations ou pour organiser une visite.
Je serai ravi de répondre à toutes vos questions et de vous accompagner dans votre projet d’acquisition.
Annonce proposée par un agent commercial
Localisation Du bien
-
Commerces et santé
-
Loisirs
-
Ecoles
-
Transports
-
Pratique
Les infos Energetiques
La base légale du traitement repose sur l’intérêt légitime de l'Agence / du Réseau.
Elles sont conservées jusqu'à demande de suppression et sont destinées à  l'Agence / au Réseau.
Conformément à la loi « informatique et libertés », vous pouvez exercer votre droit d'accès aux données vous concernant et les faire rectifier en contactant l'Agence / le Réseau.
Si vous estimez, après avoir contacté l'Agence / le Réseau, que vos droits « Informatique et Libertés » ne sont pas respectés, vous pouvez adresser une réclamation à la CNIL.
Nous vous informons de l’existence de la liste d'opposition au démarchage téléphonique « Bloctel », sur laquelle vous pouvez vous inscrire ici : https://www.bloctel.gouv.frÂ
Dans le cadre de la protection des Données personnelles, nous vous invitons à ne pas inscrire de Données sensibles dans le champ de saisie libre
Ce site est protégé par reCAPTCHA, les Politiques de Confidentialité et les Conditions d'Utilisation de Google s'appliquent.
