Les infos Essentielles
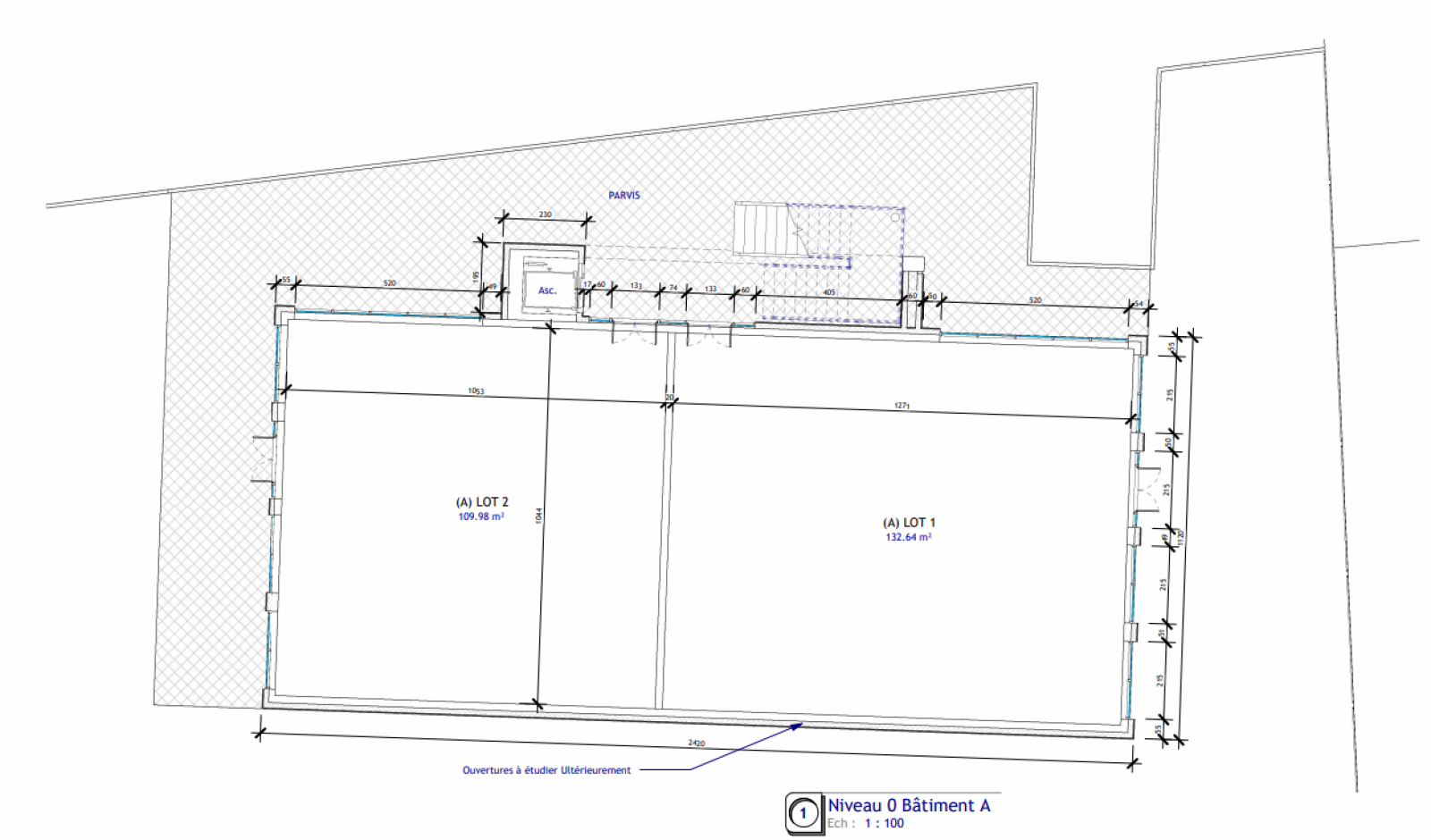
Espace commercial ou bureaux situé au rez-de-chaussée d'un immeuble neuf à 5 minutes du tram à pieds, cette cellule est livrée avec un sanitaire et une zone de repos.
Les fluides sont en attentes dans les foureaux, travaux d'aménagement envisagés en sus, au choix du preneur.
Le prix net vendeur est de 485 100 € HT, TVA au taux en vigueur en sus.
Les honoraires sont de 5% HT du prix de vente, soit 24 255 € HT, TVA au taux en vigueur en sus.
Tous les montants ci-dessus indiqués peuvent être soumis au régime de la TVA au taux en vigueur, notre service commercial vous renseignera.
Annonce proposée par un agent commercial
Localisation Du bien
-
Commerces et santé
-
Loisirs
-
Ecoles
-
Transports
-
Pratique
Les infos Energetiques
Ce site est protégé par reCAPTCHA, les Politiques de Confidentialité et les Conditions d'Utilisation de Google s'appliquent.
