Les infos Essentielles
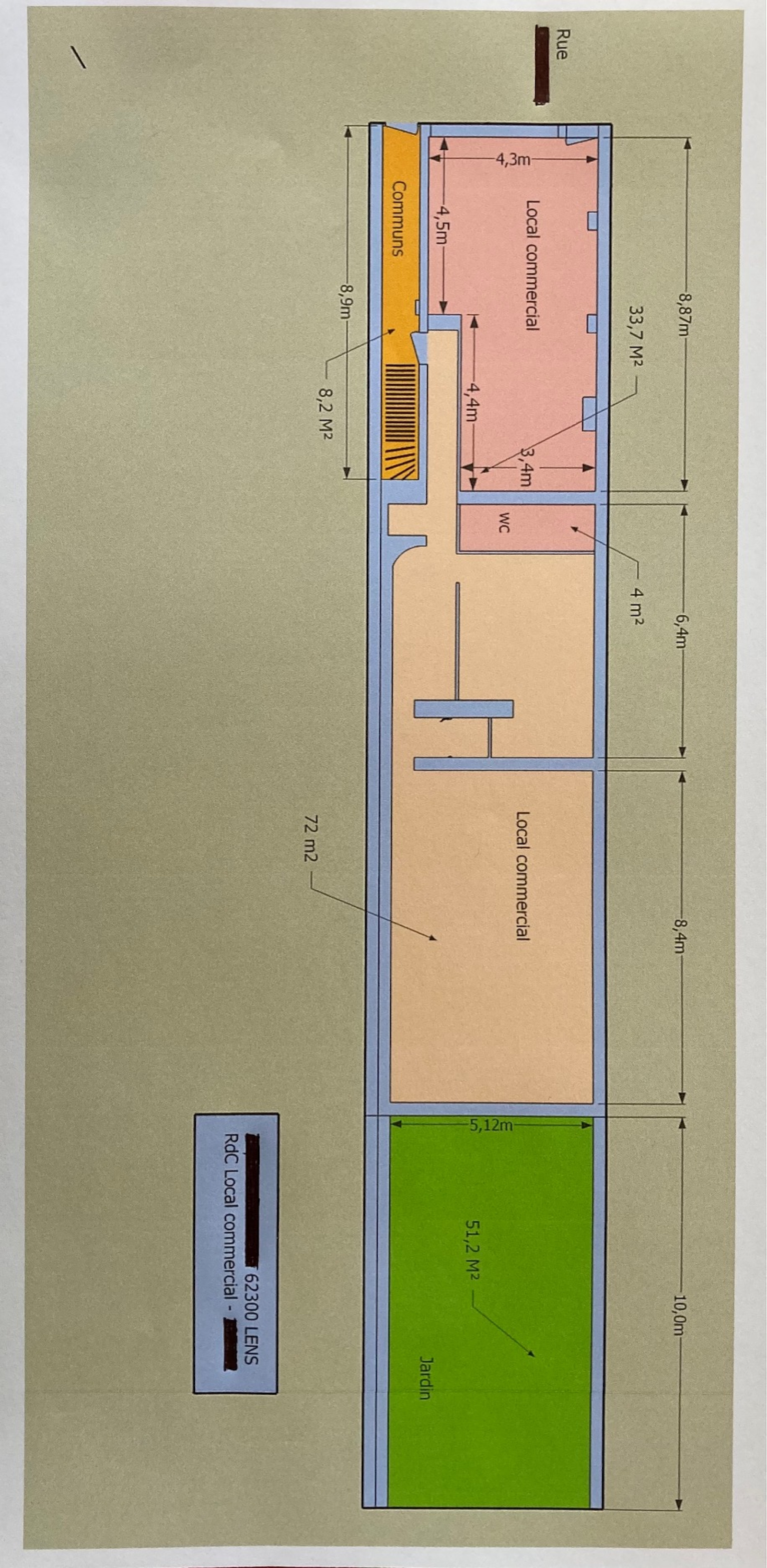
Au rez-de-chaussée d'un immeuble dans LENS CENTRE, LOCAUX à usage de commerce ou de bureaux de 109,75 m2 comprenant 2 cellules :
- Local de 39 m2 en façade rue avec vitrine :
Local de 35 m2, espace vestiaire-wc de 4 m2
Occupé : bail commercial du 22/08/2022, Loyer mensuel 514 € HT + Provision mensuelle sur charges 90 € HT
- Local de 72 m2 sur l'arrière du bâtiment :
Accueil, bureau avec kitchenette 14 m2, open-space 43 m2 avec accès sur terrasse et jardin privatif, wc, cave au sous-sol
Occupé : bail commercial du 26/11/2024, Loyer mensuel 650 € HT + Provision mensuelle sur charges 120 € HT
Les ++++ :
- proximité commerces, gare, parking République
- rentabilité brute : 11 %
Charges de copropriété 593 € / an - Pas de procédure en cours.
Provisions sur charges comprennent : eau, charges locatives de copropriété, taxe foncière, assurance PNO (au prorata des superficies), électricité (au réél).
Les informations sur les risques auxquels ce bien est exposé sont disponibles sur le site Géorisques
Annonce proposée par un agent commercial
Localisation Du bien
-
Commerces et santé
-
Loisirs
-
Ecoles
-
Transports
-
Pratique
Les infos Energetiques
La base légale du traitement repose sur l’intérêt légitime de l'Agence / du Réseau.
Elles sont conservées jusqu'à demande de suppression et sont destinées à  l'Agence / au Réseau.
Conformément à la loi « informatique et libertés », vous pouvez exercer votre droit d'accès aux données vous concernant et les faire rectifier en contactant l'Agence / le Réseau.
Si vous estimez, après avoir contacté l'Agence / le Réseau, que vos droits « Informatique et Libertés » ne sont pas respectés, vous pouvez adresser une réclamation à la CNIL.
Nous vous informons de l’existence de la liste d'opposition au démarchage téléphonique « Bloctel », sur laquelle vous pouvez vous inscrire ici : https://www.bloctel.gouv.frÂ
Dans le cadre de la protection des Données personnelles, nous vous invitons à ne pas inscrire de Données sensibles dans le champ de saisie libre
Ce site est protégé par reCAPTCHA, les Politiques de Confidentialité et les Conditions d'Utilisation de Google s'appliquent.
