Les infos Essentielles
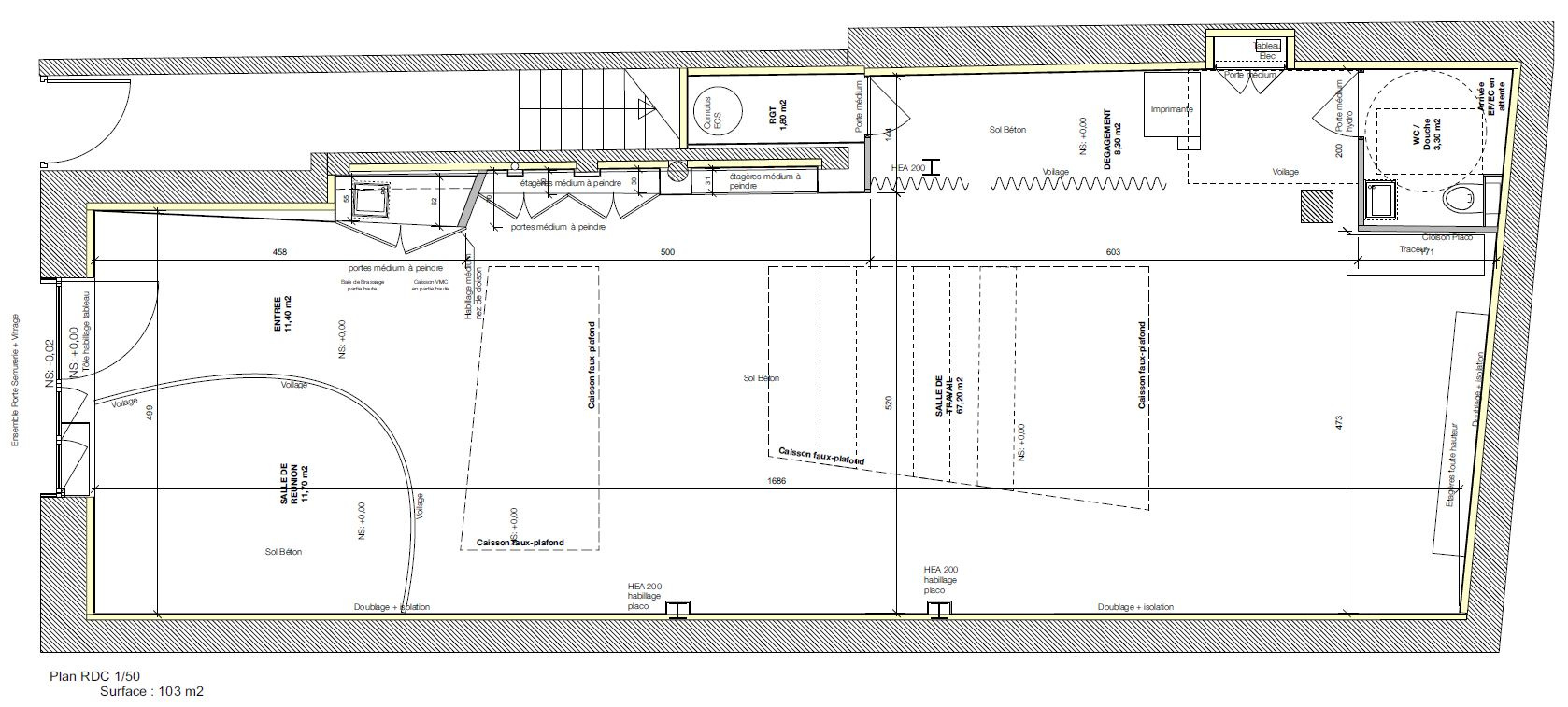
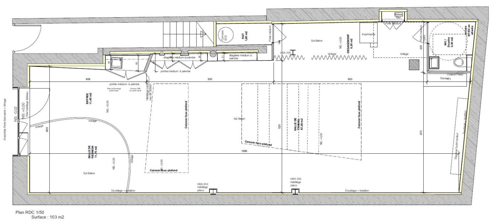
À vendre : local commercial ou professionnel de 105 m², bénéficiant d’une hauteur sous plafond de 3,60 m et d’un accès rapide au tram. Situé à proximité du Pont de Pierre, au cœur de Bordeaux centre, dans un quartier plein de charme et une rue calme.
Le bien se trouve au rez-de-chaussée d’un immeuble en pierre bordelaise de deux étages, offrant un cadre authentique et recherché.
Idéale Activités :
- Professions médicales et paramédicales
- Bureaux toutes activités
- Cabinets d’avocats, d’experts-comptables et professions libérales
- Coaching professionnel
- Ateliers d’art et activités créatives
Je reste à votre disposition pour plus de renseignement
Je reste à votre disposition pour plus de renseignements
Â
Prix : 408 000 € FAI
Â
Annonce proposée par un agent commercial
Localisation Du bien
-
Commerces et santé
-
Loisirs
-
Ecoles
-
Transports
-
Pratique
Les infos Energetiques
La base légale du traitement repose sur l’intérêt légitime de l'Agence / du Réseau.
Elles sont conservées jusqu'à demande de suppression et sont destinées à  l'Agence / au Réseau.
Conformément à la loi « informatique et libertés », vous pouvez exercer votre droit d'accès aux données vous concernant et les faire rectifier en contactant l'Agence / le Réseau.
Si vous estimez, après avoir contacté l'Agence / le Réseau, que vos droits « Informatique et Libertés » ne sont pas respectés, vous pouvez adresser une réclamation à la CNIL.
Nous vous informons de l’existence de la liste d'opposition au démarchage téléphonique « Bloctel », sur laquelle vous pouvez vous inscrire ici : https://www.bloctel.gouv.frÂ
Dans le cadre de la protection des Données personnelles, nous vous invitons à ne pas inscrire de Données sensibles dans le champ de saisie libre
Ce site est protégé par reCAPTCHA, les Politiques de Confidentialité et les Conditions d'Utilisation de Google s'appliquent.
