Les infos Essentielles
à saisir en exclusivité!!
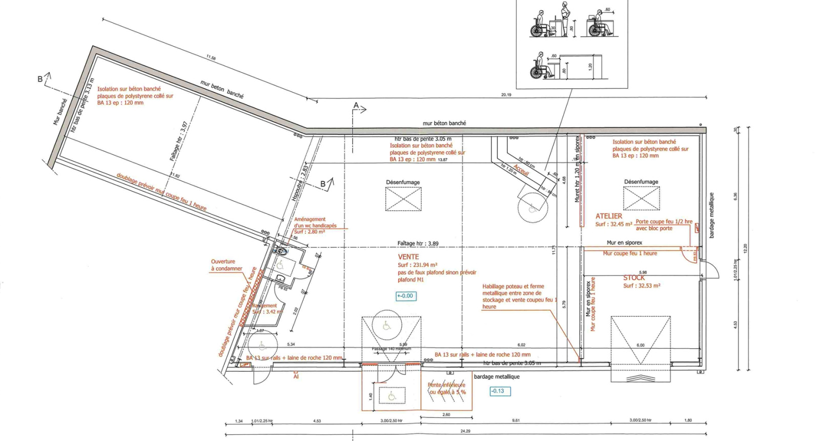
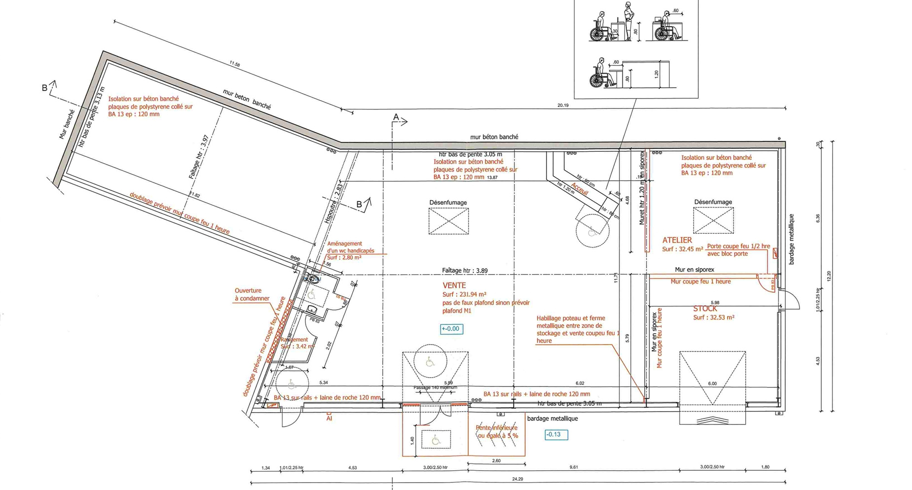
Vente local commercial / artisanal de 350 m² offre de nombreuses possibilités d'exploitation pour une activité artisanale, industrielle, commerciale ou de stokage.
Le bâtiment se compose d'un vaste espace fonctionnnel , facilement modulable selon vos besoins, avec une belle hauteur sous plafond , permettant l'installation de machines, rayonnages ou bureaux.
L'accès est aisé avec un parking privatif devant.
Ce local bénéficie d'un emplacement startégique , au coeur d'une zone dynamique , proche des axes routiers principaux garantissant une excellente accessibilité et visibilité pour votre activité.
Idéal pour artisants, entrepeneurs , PME, investisseurs .
Une opptunité rare pour implanter et développer durablement votre entreprise.
A visiter sans tarder!!
DPE en cours de réalisation
Les informations sur les risques auxquels ce bien est exposé sont disponibles sur le site Géorisques : www.georisques.gouv.fr. Aucune procédure judiciaire n'est en cours.
Information Loi ALUR: * honoraires d’agence à la charge du vendeur.
Votre contact : Marion JOUANICOT, votre conseillère immobilier, au 06 78 53 41 71
Les Terrasses de l'Immo, SAS située au 2 Avenue de la Libération 42000 St-Etienne, RCS Saint-Etienne CPI 4202 2016 000 009 941 délivrée par la Cci de Lyon Saint Etienne Roanne, Validité 03/09/2028. SIREN 820 093 995. RCP : N° 64302822. Marion JOUANICOT, agent commercial indépendante immatriculé au R.S.A.C de St- Etienne, sous le numéro : 993 443 985 qui exerce et publie cette annonce en tant que mandataire.
Localisation Du bien
-
Commerces et santé
-
Loisirs
-
Ecoles
-
Transports
-
Pratique
Les infos Energetiques
Ce site est protégé par reCAPTCHA, les Politiques de Confidentialité et les Conditions d'Utilisation de Google s'appliquent.
