Les infos Essentielles
Murs commerciaux mitoyens non loués à vendre à Apt, de plain pied, orientés au Nord, en rez-de-chaussée d'un ensemble immobilier ancien de 4 étages en copropriété situé sur les quais du centre-ville.
Situé juste en face des parkings gratuits du Calavon, le local a été loué pendant 27 ans comme restaurant, salle d'arcade/jeux vidéos, bars d'ambiance.
Dans un état nécessitant des travaux d'entretien et (selon les projets) de réaménagement, ce bien semble aussi très propice à d'autres activités comme une salle de sport, du stockage de marchandise ou bien comme bureaux pour des professions libérales.
La copropriété comporte des bureaux en Rez-de-chaussée et des appartements d'habitation dans les étages (dont quelques chambres d'hôtes), ainsi qu'un garage en sous-sol.
Pas de syndic, pas de provisions sur charges annuelles.
Une galerie piétonne couverte passe devant la vitrine.
Renseignements et visites auprès de Serge RODZIANKO 06 46 71 61 97, spécialiste de l'immobilier dans le Vaucluse
Annonce proposée par un agent commercial
Localisation Du bien
-
Commerces et santé
-
Loisirs
-
Ecoles
-
Transports
-
Pratique
Les infos Energetiques
2 WC séparés/Vasque lave_mains
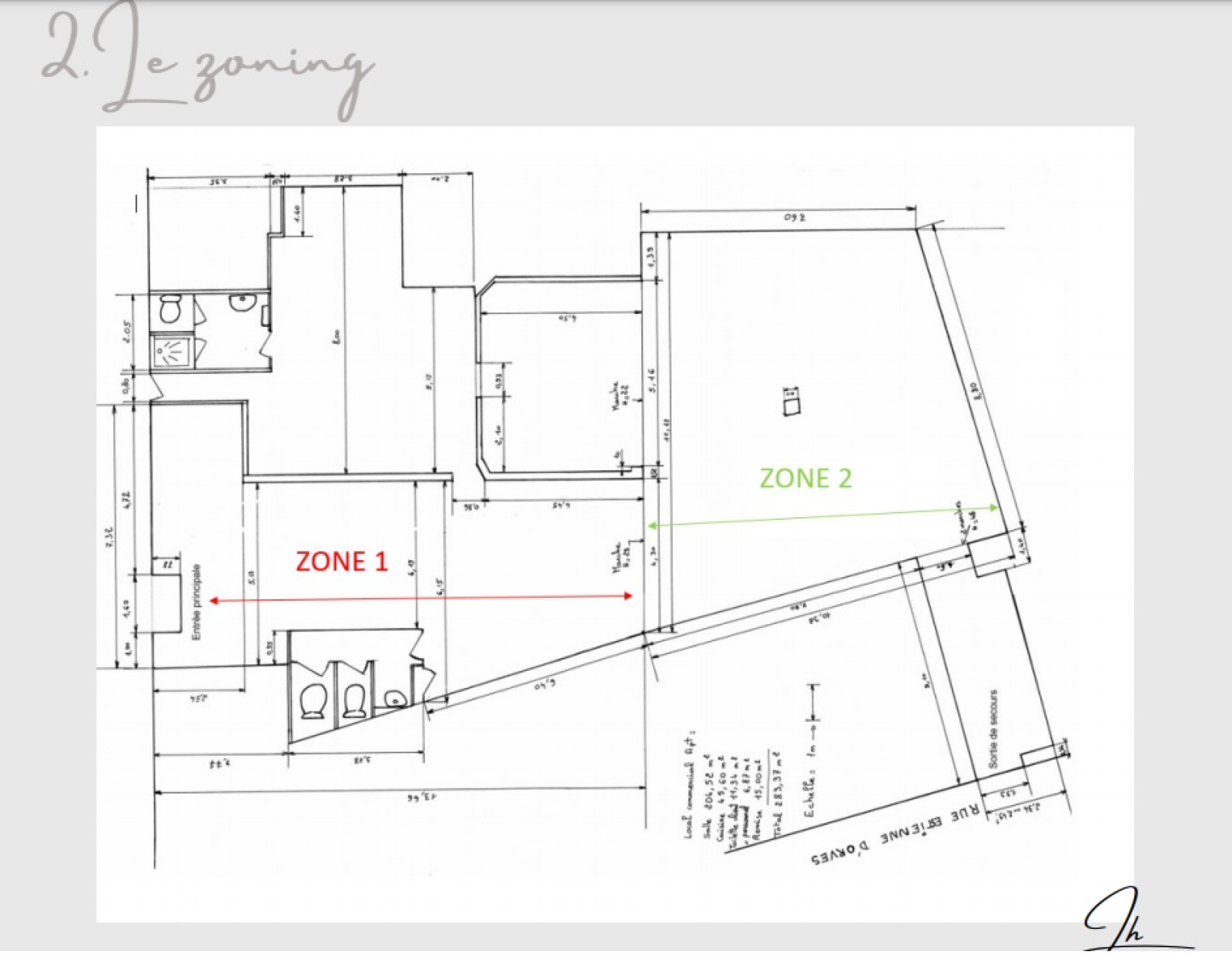
Entrée/Partie Bar/Salle principale/Scène
1 Vasque/1 WC séparé/1 douche
