Les infos Essentielles
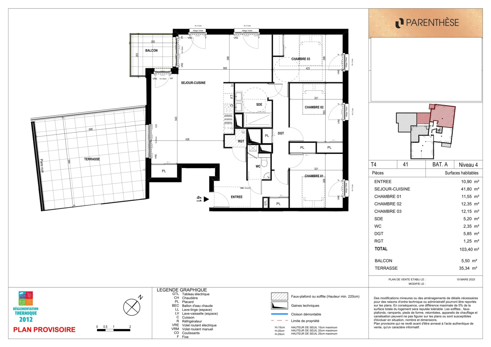
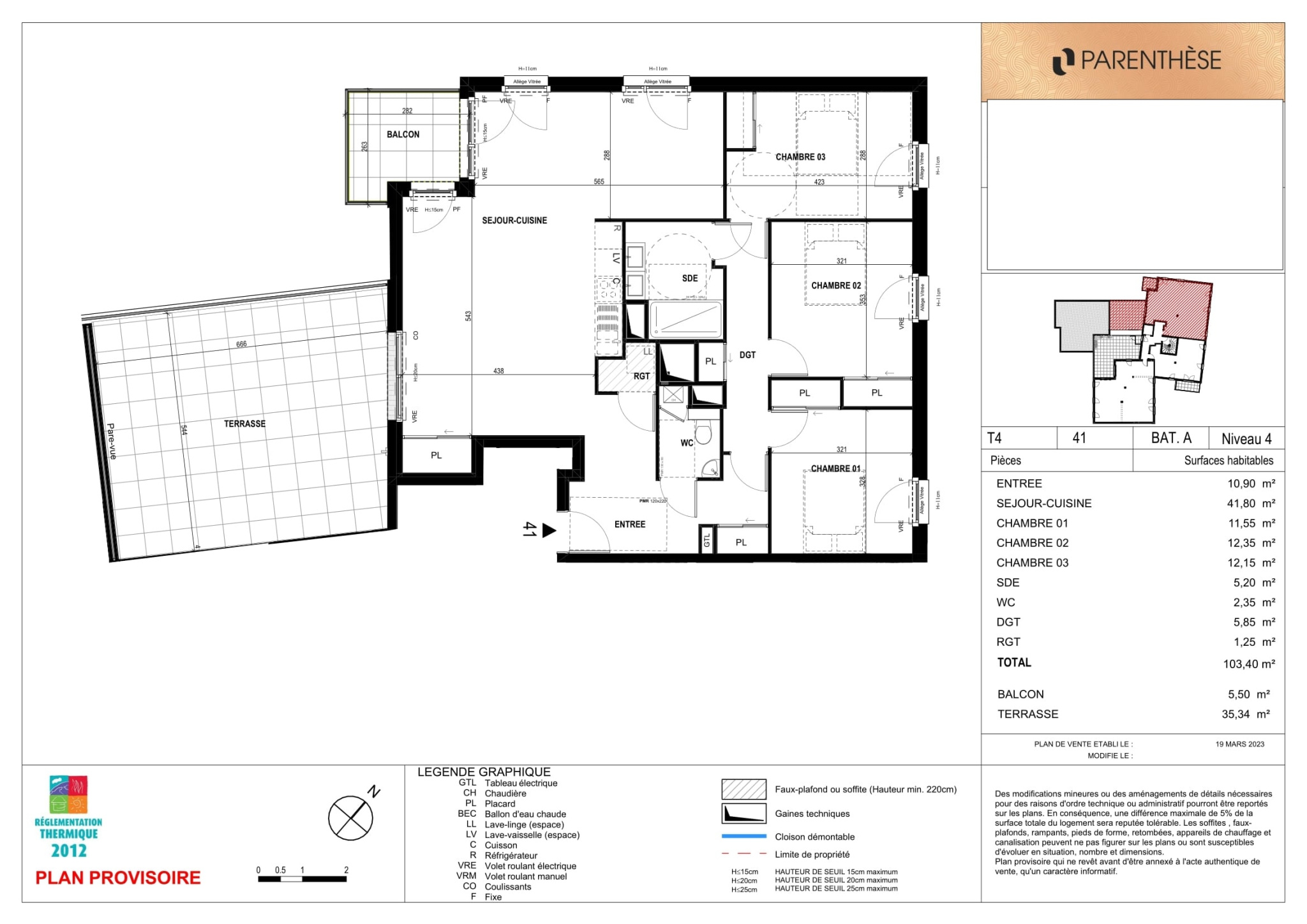
Trouvez un appartement avec 3 chambres et une large terrasse à vivre à Rennes. Dans un nouvel immeuble neuf de standing qui sera terminé en 2026 aux normes d'accessibilité PMR. Si vous voulez planifier une visite, votre conseillière Rozenn MAZÉ est à votre disposition. Ce logement convient tout à fait à une famille. L'appartement offre 103.4m² et se constitue d'un salon de 41.8m², un espace cuisine, une salle d'eau et 3 chambres. Il se trouve au 4e niveau dans un immeuble sur 5 étages ; l'accès se fait à l'aide d'un ascenseur. Neuve, la propriété attend ses premiers occupants. Satisfait aux dernières normes en matière de réglementation thermique associées au label bâtiment basse consommation. Le double vitrage garantit le calme du lieu. Pour prendre l'air, vous aurez accès à un balcon occupant 5.50m² et une terrasse mesurant 35.34m², ce qui élève la surface de l'ensemble à 144.24m². L'habitation donne accès à un parking privatif. Le prix de vente est 575 000 euros.
Annonce proposée par un agent commercial
Les informations sur les risques auxquels ce bien est exposé sont disponibles sur le site Géorisques
Localisation Du bien
-
Commerces et santé
-
Loisirs
-
Ecoles
-
Transports
-
Pratique
Les infos Energetiques
cuisine aménagée
avec placard
avec placard
avec placard
avec placard
Ce site est protégé par reCAPTCHA, les Politiques de Confidentialité et les Conditions d'Utilisation de Google s'appliquent.
Détails des diagnostics énergétiques
Rennes : appartement neuf balcon pour investir avec Rozenn MAZÉ
