Les infos Essentielles
Rare à la vente…Résidence intimiste avec ascenseur, offrant des extérieurs et du stationnement, en plein cœur de TOURS.
Cet appartement traversant va vous séduire par son emplacement au calme et ses beaux espaces. Il vous offrira une vie de plain-pied avec son séjour traversant de 43m² donnant sur une belle terrasse et un jardin intimiste clos.Le coin nuit est composé d’une belle suite parentale de près de 30m² avec son grand dressing indépendant, sa salle d’eau moderne avec douche à l’italienne et sa chambre avec un accès à la terrasse et au jardin.
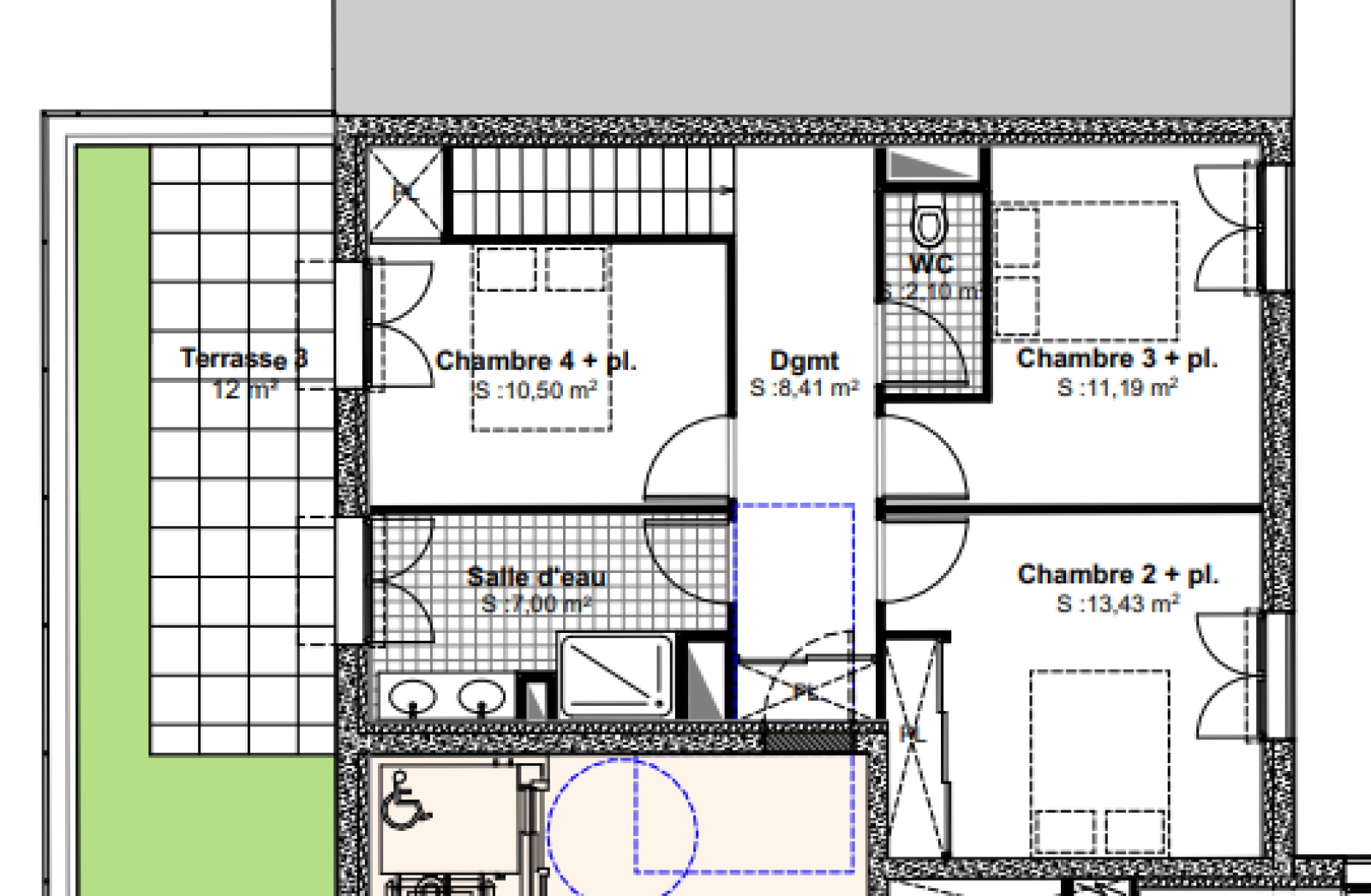
A l’étage, vous trouverez 3 belles chambres dont une avec une terrasse, une seconde salle d’eau et un second WC indépendant.
Le prix comprend un parking privatif. En plein cœur du quartier très prisé et recherché des Prébendes, cette petite résidence contemporaine sécurisée avec ascenseur vous apportera la sécurité d’un quartier tranquille tout en étant proche de tout.
L’avenue de Grammont avec tous les services et commerces se trouve à 400mètres. A 10 mn à pied des halles, de la place Jean Jaurès, de la gare SNCF et à seulement 5mn à vélo de l'hôpital Bretonneau.
Outres tous les avantages fiscaux et de garanties d'acquérir un logement neuf nous pouvons également retravailler le plan de ce logement afin qu'il corresponde au mieux à votre style de vie.
Vous souhaitez en savoir plus ? Contactez-moi 7j/7 au 06 06 42 88 47 19 ou 02 47 47 00 29 - frederic@angelot-immo.fr - Représentations virtuelles - Honoraires charge vendeur.Angélot immo - 4 Bd de Chinon 37510 BALLAN MIRE et 32 rue Alfred de Vigny 37000 TOURS
Les informations sur les risques auxquels ce bien est exposé sont disponibles sur le site Géorisques
Localisation Du bien
-
Commerces et santé
-
Loisirs
-
Ecoles
-
Transports
-
Pratique
Les infos Energetiques
La base légale du traitement repose sur l’intérêt légitime de l'Agence / du Réseau.
Elles sont conservées jusqu'à demande de suppression et sont destinées à l'Agence / au Réseau.
Conformément à la loi « informatique et libertés », vous pouvez exercer votre droit d'accès aux données vous concernant et les faire rectifier en contactant l'Agence / le Réseau.
Si vous estimez, après avoir contacté l'Agence / le Réseau, que vos droits « Informatique et Libertés » ne sont pas respectés, vous pouvez adresser une réclamation à la CNIL.
Nous vous informons de l’existence de la liste d'opposition au démarchage téléphonique « Bloctel », sur laquelle vous pouvez vous inscrire ici : https://www.bloctel.gouv.fr
Dans le cadre de la protection des Données personnelles, nous vous invitons à ne pas inscrire de Données sensibles dans le champ de saisie libre
Ce site est protégé par reCAPTCHA, les Politiques de Confidentialité et les Conditions d'Utilisation de Google s'appliquent.
