Les infos Essentielles
BRS – OPPORTUNITÉ À TOULOUSE – 3 PIÈCES NEUF AVEC BALCON DANS UN ENVIRONNEMENT D’EXCEPTION
Accédez à la propriété dans l’une des métropoles les plus dynamiques de France grâce au dispositif du Bail Réel Solidaire (BRS). Une solution d’accession innovante qui vous permet de devenir propriétaire de votre résidence principale à un prix maîtrisé.
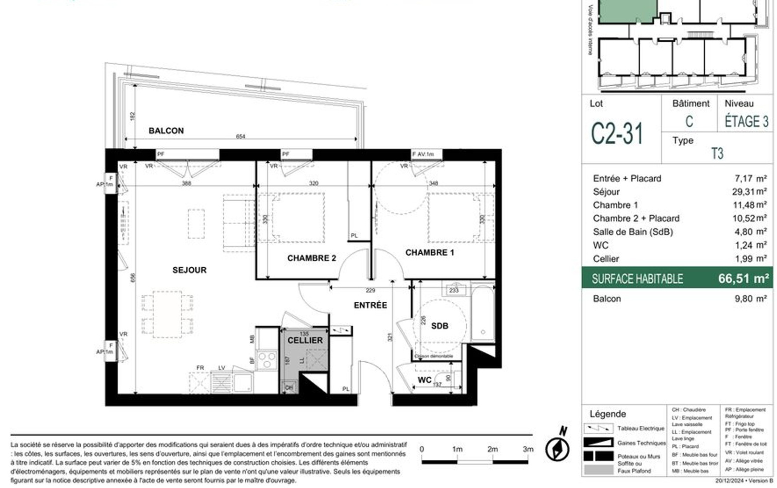
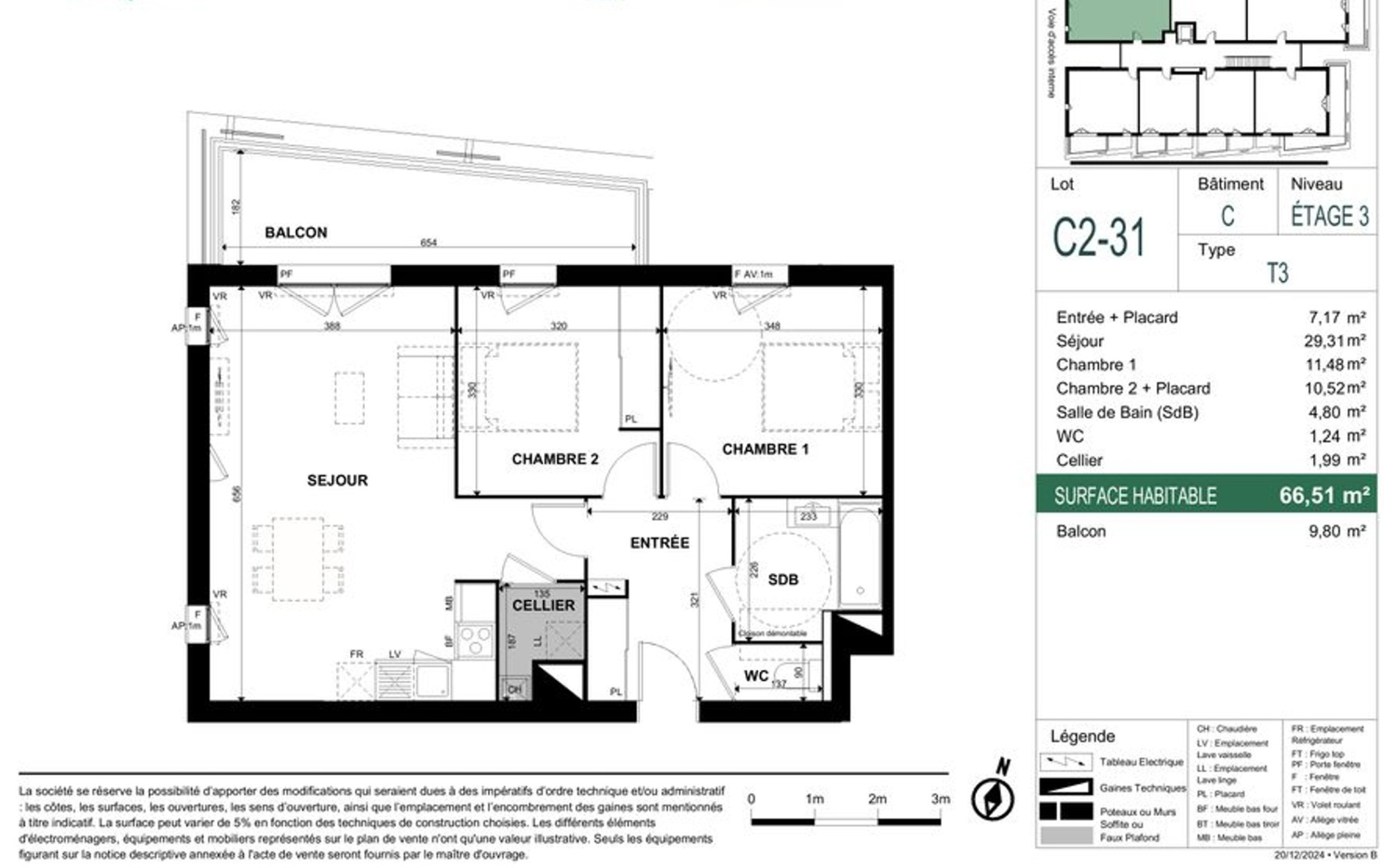
Découvrez ce superbe appartement 3 pièces neuf de 66 m², proposé à moins de 235 000 €, idéal pour un premier achat sécurisé à Toulouse.
Situé au sein d’une résidence d’exception composée de 5 îlots, ce programme a été conçu pour offrir un cadre de vie à la fois paisible, végétalisé et harmonieux, sur la rive gauche de la Garonne, dans un environnement recherché.
Vous serez les premiers occupants de ce logement, dont la livraison est prévue en juin 2027, vous garantissant des prestations modernes, une excellente performance énergétique et un confort durable.
L’appartement se compose de :
- Un séjour lumineux, ouvert sur l’extérieur
- Deux chambres confortables, adaptées à une vie de couple ou familiale
- Une organisation optimisée sans perte de surface
Vous bénéficierez également d’un balcon de 9 m², véritable prolongement de l’espace de vie, idéal pour profiter des beaux jours, aménager un coin détente ou partager des moments conviviaux.
La résidence se distingue par son architecture soignée et son intégration dans un environnement naturel, offrant un équilibre rare entre vie urbaine et tranquillité.
Dans le cadre du BRS, vous dissociez le foncier du bâti, ce qui permet de réduire significativement le prix d’acquisition. En contrepartie, une redevance mensuelle de 110 € est à prévoir.
Primo-accédants, vous pouvez bénéficier du Prêt à Taux Zéro (PTZ) ainsi que de frais de notaire réduits, sous réserve d’éligibilité, optimisant ainsi votre plan de financement.
L’accès au dispositif est soumis à des conditions de ressources, basées sur le revenu fiscal de référence (avis 2025 sur revenus 2024) :
- 1 personne : 38 844 €
- 2 personnes : 58 057 €
- 3 personnes : 76 105 €
- 4 personnes : 90 863 €
- 5 personnes : 108 107 €
Ce logement est destiné exclusivement à un usage en résidence principale, conformément à la vocation sociale du Bail Réel Solidaire.
Une opportunité rare à Toulouse, combinant cadre de vie qualitatif, accessibilité financière et sécurité d’un logement neuf, idéale pour un premier achat dans un secteur en plein développement.
Testez dès maintenant votre éligibilité grâce au simulateur disponible sur le site MY BRS, spécialiste de l’accompagnement en Bail Réel Solidaire.
Localisation Du bien
-
Commerces et santé
-
Loisirs
-
Ecoles
-
Transports
-
Pratique
Les infos Energetiques
Ce site est protégé par reCAPTCHA, les Politiques de Confidentialité et les Conditions d'Utilisation de Google s'appliquent.
