Les infos Essentielles
SAINT PIERRE---T3 traversant---2 Balcons---Cave
Ce T3 entièrement rénové et meublé vous propose une situation centrale à proximité immédiate du T1.
Au 5ème et avant dernier étage, une belle vue dégagée sur la vallée de l'Huveaune d'un côté et une vue sur le clocher de l'église Saint Pierre de l'autre.
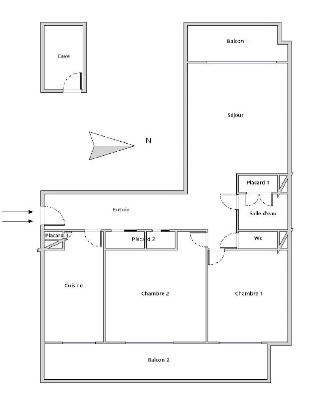
Cet appartement, idéal pour pour un couple ou une colocation, s'ouvre sur un couloir d'entrée de 10m² (avec un grand placard) à partir duquel vous rejoindrez une cuisine équipée de 8,5m² comprenant un réfrigérateur/congélateur, un four à chaleur tournante neuf, une plaque de cuisson à induction, un lave-vaisselle neuf, une machine à laver le linge neuve ainsi qu'un micro-ondes neuf.
Une première chambre de 11,8m² équipée d'un sommier et matelas neufs et une 2ème chambre de 9,7m² équipée d'un canapé convertible neuf vous attendent.
Toutes ces pièces s'ouvrent sur un balcon de 10m² exposé EST.
En sortant de la 2ème chambre, vous passerez devant des WC indépendants, une salle d'eau de 3,5m² et vous rejoindrez le salon de 17m² ouvert sur un balcon de 4,5m² exposé OUEST.
L'apparement est loué avec une cave de presque 5m² saine et éclairée.
Les charges comprennent l'eau froide, l'entretien de l'ascenseur ainsi que le chauffage.
Annonce proposée par un agent commercial
Les informations sur les risques auxquels ce bien est exposé sont disponibles sur le site Géorisques
* CC : Charges comprises
Localisation Du bien
-
Commerces et santé
-
Loisirs
-
Ecoles
-
Transports
-
Pratique
Les infos Energetiques
Ce site est protégé par reCAPTCHA, les Politiques de Confidentialité et les Conditions d'Utilisation de Google s'appliquent.
Détails des diagnostics énergétiques
Montant estimé des dépenses annuelles d'énergie pour un usage standard est compris entre 1 650 € et 2 290 € . Prix moyens des énergies indexés sur les années 2021, 2022 et 2023 (abonnements compris).
