Les infos Essentielles
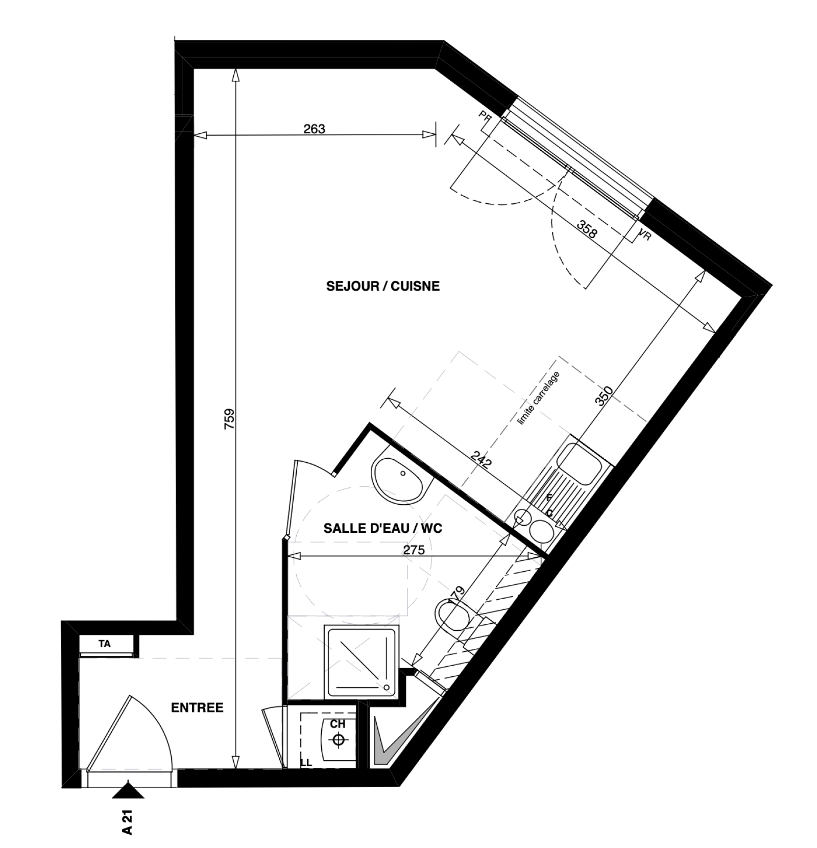
Proche Gare RER C, ligne H et J: découvrez ce studio, construit en 2016, de 32 m² environ situé à Saint-Ouen-l'Aumône, 18 rue du Mail. Ce bien est idéal pour une personne seule ou un couple cherchant un logement moderne et confortable.
Situé au deuxième étage d'un immeuble de quatre étages avec ascenseur, ce studio bénéficie d'une chaudière individuelle pour le chauffage et l'eau chaude. Avec un DPE classé B, ce studio assure une consommation énergétique maîtrisée.
LOYER: 715 euros par mois, parking et charges compris. Loué NON meublé. Disponible en décembre.
CHARGES: 72 euros par mois de provision pour charges (soumis à la régularisation annuelle).
PLACE DE PARKING: une place de parking privative incluse, située en sous-sol.
PINEL : cette location est soumise au dispositif 'LOI PINEL', des plafonds de ressources sont à respecter.
Prendre en compte le revenu fiscal de référence (RFR) indiqué sur votre avis d’imposition 2023 sur les revenus de l’année 2022. Le RFR prend en compte la totalité des revenus d’un foyer, imposables ou non.
Plafond zone A:
- Personne seul: 43 475€
- Couple: 64 976€
- Personne seul ou couple ayant 1 pers. à charge: 78 104 €
DOSSIER: merci de faire votre demande par mail ou par message (indiquez votre adresse mail).
Annonce proposée par un agent commercial
Les informations sur les risques auxquels ce bien est exposé sont disponibles sur le site Géorisques
* CC : Charges comprises
Localisation Du bien
-
Commerces et santé
-
Loisirs
-
Ecoles
-
Transports
-
Pratique
