Les infos Essentielles
*** NOUVEAUTE - CENTRE DU VILLAGE de SACLAY - DUPLEX au DERNIER ETAGE - BEAUX VOLUMES - 4 CHAMBRES - BALCON - RESIDENCE de 2013 aux NORMES RT2012 - DPE C - NOMBREUX RANGEMENTS - *** BAIL 1 AN ***
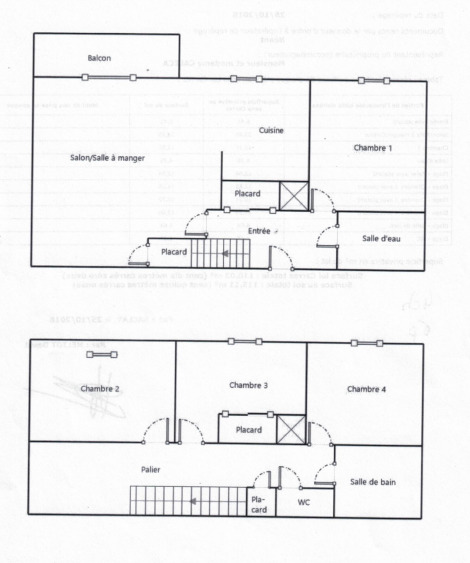
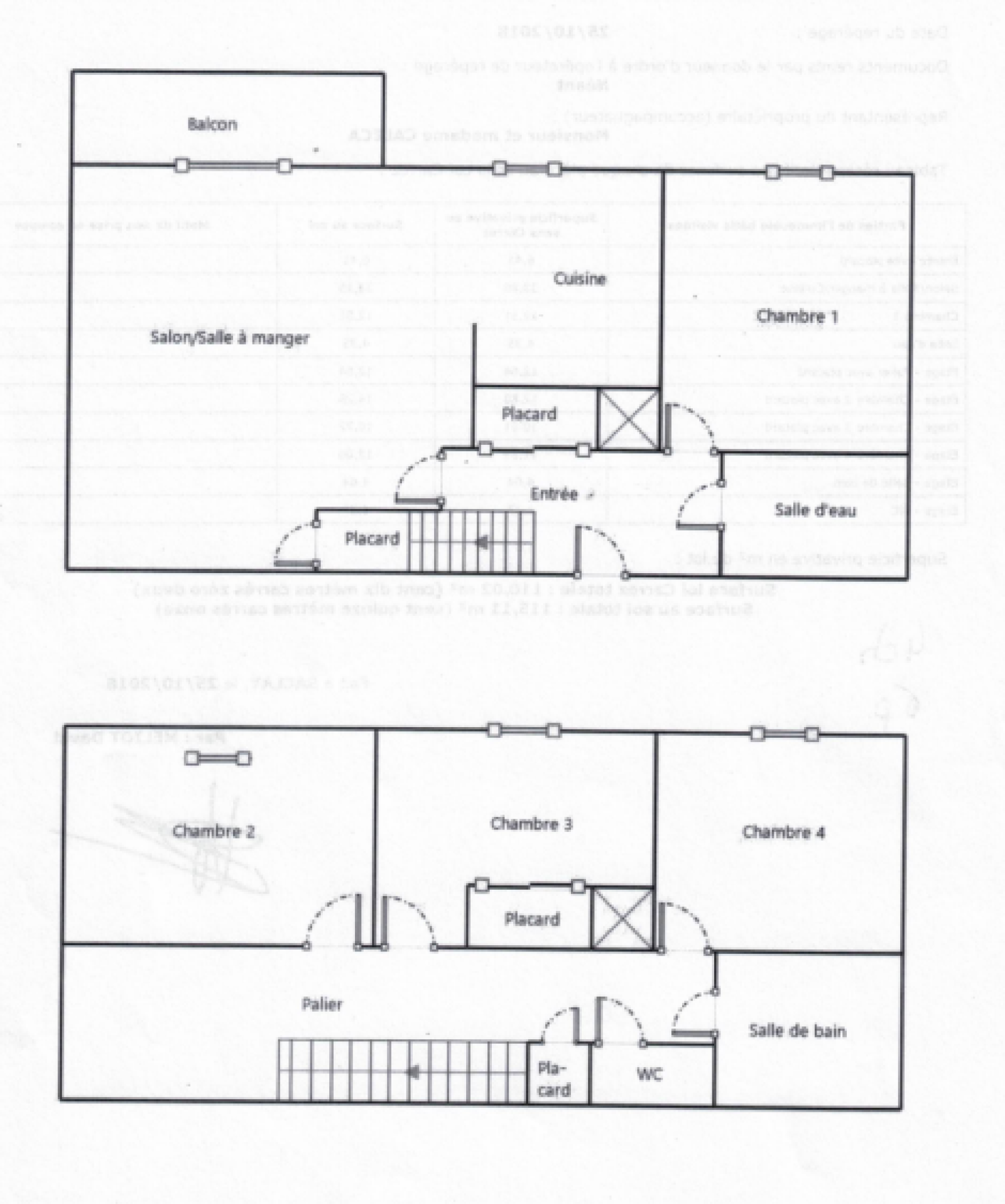
Florian RICHARD IMMOBILIER vous propose à la location (bail d'un an non renouvelable et non meublé), cet appartement de 110m² CARREZ (surface totale de 115m²) avec balcon et 2 PARKING en SOUS SOL. Ce duplex au 1er et dernier étage vous offre une entrée avec rangements, un dégagement avec grand placard conduisant à un double séjour spacieux avec une cuisine ouverte récente, une chambre (12,50m²), salle d'eau avec WC et emplacement pour machines. A l'étage, grand dégagement, 3 chambres (entre 11 et 14m²) avec placards, une salle de bain et WC séparés. *** SES ATOUTS : état propre, RESIDENCE 2013 avec DPE C, 2 PARKINGS *** Proche de toutes commodités à pieds, transports à proximité.Â
*** BAIL D'UN AN NON RENOUVELABLE, NON MEUBLE ***
Annonce proposée par un agent commercial
* CC : Charges comprises
Localisation Du bien
-
Commerces et santé
-
Loisirs
-
Ecoles
-
Transports
-
Pratique
