Réf : DHLDU21860149918

Nanterre (92000) Chambres à louer dans un duplex meublé et équipé pour 900 €/mois charges compris

4 Pièce(s)
3 Chambre(s)
1 Salle(s) de bain

Les infos Essentielles

Caractéristiques Valeurs
Code postal 92000
Surface habitable (m²) 91,21 m²
Nombre de chambre(s) 3
Nombre de pièces 4
Caractéristiques Valeurs
Meublé OUI
Etage 19
Nombre de niveaux 2
Ascenseur OUI
Caractéristiques Valeurs
Vue Dégagée
Nb de salle de bains 1
Cuisine Séparée
Type de cuisine Equipée
Caractéristiques Valeurs
Interphone OUI
Visiophone NON
Balcon NON
Terrasse NON
Caractéristiques Valeurs
Murs mitoyens 2
Nombre de garage 1
Cave NON
Exposition Sud
Caractéristiques Valeurs
Année de construction 1980
Les chambres 2 et 3 vont bientôt être à nouveau disponibles. La chambre 3 le sera à partir du 1er mai et la chambre 2 à partir 5 mai. est encore delles sont proposées à la COLOCATION pour 800 €/mois plus un budget de charges de 100 €/mois par chambre.
Chaque colocataire payera son loyer de manière indépendante ainsi que sa part du forfait de charges qui comprend : le chauffage, les eaux chaudes et froides, l'électricité, le gardiennage, la connexion internet par fibre optique, la box TV et l'entretien courant des parties communes de l'immeuble..
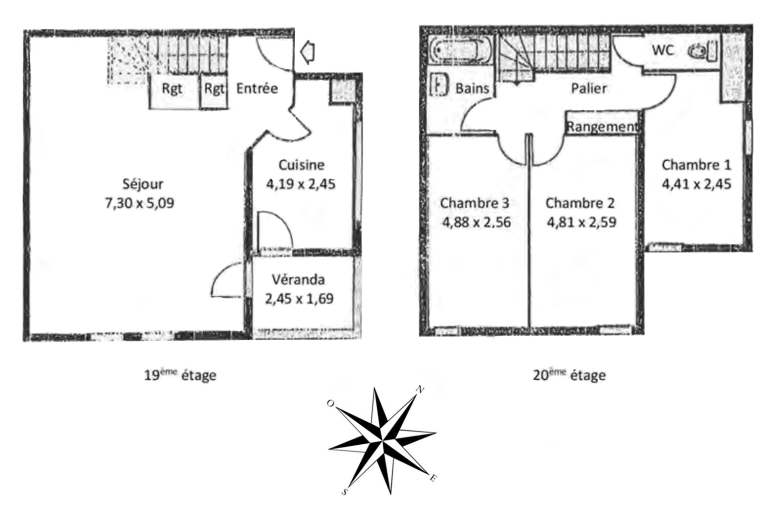
Le duplex est constitué :
- au 19ème étage : d’un grand séjour de 36 m² avec rangements et d’une cuisine meublée et équipée, qui donnent sur une véranda exposée au sud-est.
- au 20ème et dernier étage : d’un palier avec placards, desservant 3 chambres, la salle de bain et les WC indépendants avec lave main.
- au deuxième sous-sol, une place de parking dans un garage souterrain protégé par badge et caméra, accessible directement par les deux ascenseurs qui mènent à l’appartement
.
Il est clair, calme, et offre une vue dégagée.
Il a été rénové et meublé à neuf.
Sa surface Carrez est de 91,21 m² (surface au sol de 94,81 m² en comptant la surface non Carrez située sous l’escalier), plus 6,13 m² de véranda.
Son DPE est classé C (122) et son GES C (17).
Une place de parking souterrain pourra être loué en plus
Des salles communes sont mises à disposition des copropriétaires pour y réaliser différentes activités au sein de l'immeuble : billard, babyfoot, salle de sport, des grandes jardinières et une véranda pour le jardinage.
L'immeuble propose en location à des prix défiants toutes concurrences du matériel de bricolage, du matériel pour la cuisine et la maison, pour le jardin, pour l'automobile, pour les loisirs et la santé.

Annonce proposée par un agent commercial


Les informations sur les risques auxquels ce bien est exposé sont disponibles sur le site Géorisques

Les infos Financières

Loyer CC* / mois 900 €
Honoraires TTC charge locataire 395,24 €
Dont état des lieux 91 €
Dépôt de garantie TTC 1 600 €
Charges locatives (forfaitaires mensuelles) 100 €

Nos outils

Imprimer

* CC : Charges comprises

object(Applications\Sites\Model\Localite\ModelVille)#1039 (15) { ["_pays":protected]=> object(Applications\Sites\Model\Localite\ModelPays)#990 (7) { ["container":protected]=> NULL ["id"]=> string(1) "1" ["externalId"]=> string(1) "1" ["name"]=> string(6) "france" ["humanName"]=> string(6) "France" ["isoCode"]=> string(2) "fr" ["noZipCode"]=> string(1) "0" } ["cp":protected]=> NULL ["id":protected]=> string(4) "2107" ["idcp":protected]=> NULL ["humanName":protected]=> string(8) "Nanterre" ["_ville":protected]=> NULL ["_code":protected]=> object(Applications\Sites\Model\Localite\ModelCode)#988 (11) { ["_pays":protected]=> object(Applications\Sites\Model\Localite\ModelPays)#990 (7) { ["container":protected]=> NULL ["id"]=> string(1) "1" ["externalId"]=> string(1) "1" ["name"]=> string(6) "france" ["humanName"]=> string(6) "France" ["isoCode"]=> string(2) "fr" ["noZipCode"]=> string(1) "0" } ["cp":protected]=> NULL ["container":protected]=> NULL ["id"]=> string(4) "1597" ["externalId"]=> string(4) "5901" ["idPays"]=> string(1) "1" ["code"]=> string(5) "92000" ["latitude"]=> string(12) "48.900001526" ["longitude"]=> string(11) "2.200000048" ["name"]=> NULL ["_point4326"]=> string(25) "æÞ  ™™@’B@3sH@" } ["container":protected]=> NULL ["externalId"]=> string(5) "36292" ["idPays"]=> string(1) "1" ["name"]=> string(8) "nanterre" ["latitude"]=> string(12) "48.900001526" ["longitude"]=> string(11) "2.200000048" ["isoCode"]=> string(5) "92050" ["_point4326"]=> string(25) "æÞ  ™™@’B@3sH@" }

Localisation Du bien

  • Commerces et santé
  • Loisirs
  • Ecoles
  • Transports
  • Pratique

Les infos Energetiques

DPE GES

* Champ obligatoire

Les informations recueillies sur ce formulaire sont enregistrées dans un fichier informatisé par La Boite Immo agissant comme Sous-traitant du traitement pour la gestion de la clientèle/prospects de l'Agence / du Réseau qui reste Responsable du Traitement de vos Données personnelles. La base légale du traitement repose sur l'intérêt légitime de l'Agence / du Réseau. Elles sont conservées jusqu'à demande de suppression et sont destinées à l'Agence / au Réseau. Conformément à la loi « informatique et libertés », vous disposez des droits d’accès, de rectification, d’effacement, d’opposition, de limitation et de portabilité de vos données. Vous pouvez retirer votre consentement à tout moment en contactant directement l’Agence / Le Réseau. Consultez le site https://cnil.fr/fr pour plus d’informations sur vos droits. Si vous estimez, après avoir contacté l'Agence / le Réseau, que vos droits « Informatique et Libertés » ne sont pas respectés, vous pouvez adresser une réclamation à la CNIL. Nous vous informons de l’existence de la liste d'opposition au démarchage téléphonique « Bloctel », sur laquelle vous pouvez vous inscrire ici : https://www.bloctel.gouv.fr Dans le cadre de la protection des Données personnelles, nous vous invitons à ne pas inscrire de Données sensibles dans le champ de saisie libre.
Ce site est protégé par reCAPTCHA, les Politiques de Confidentialité et les Conditions d'Utilisation de Google s'appliquent.
contacter l'agence
Ces biens peuvent aussi vous intéresser
Courbevoie (92400)

Appartement T2 plein de charme à COURBEVOIE

Nanterre (92000)

Chambres en colocation meublée sans solidarité pour de 850 €/mois...