Les infos Essentielles
Secteur Conception / Timone
Idéal pour activité médicale - associative ou formation.
Au sein d'une rue calme et à proximité immédiate de tous les transports (Métro Timone, Tramway et Bus à 300m), nous vous proposons à l'achat ou à la location un beau local de 338m2 dôté de nombreux stationnements.
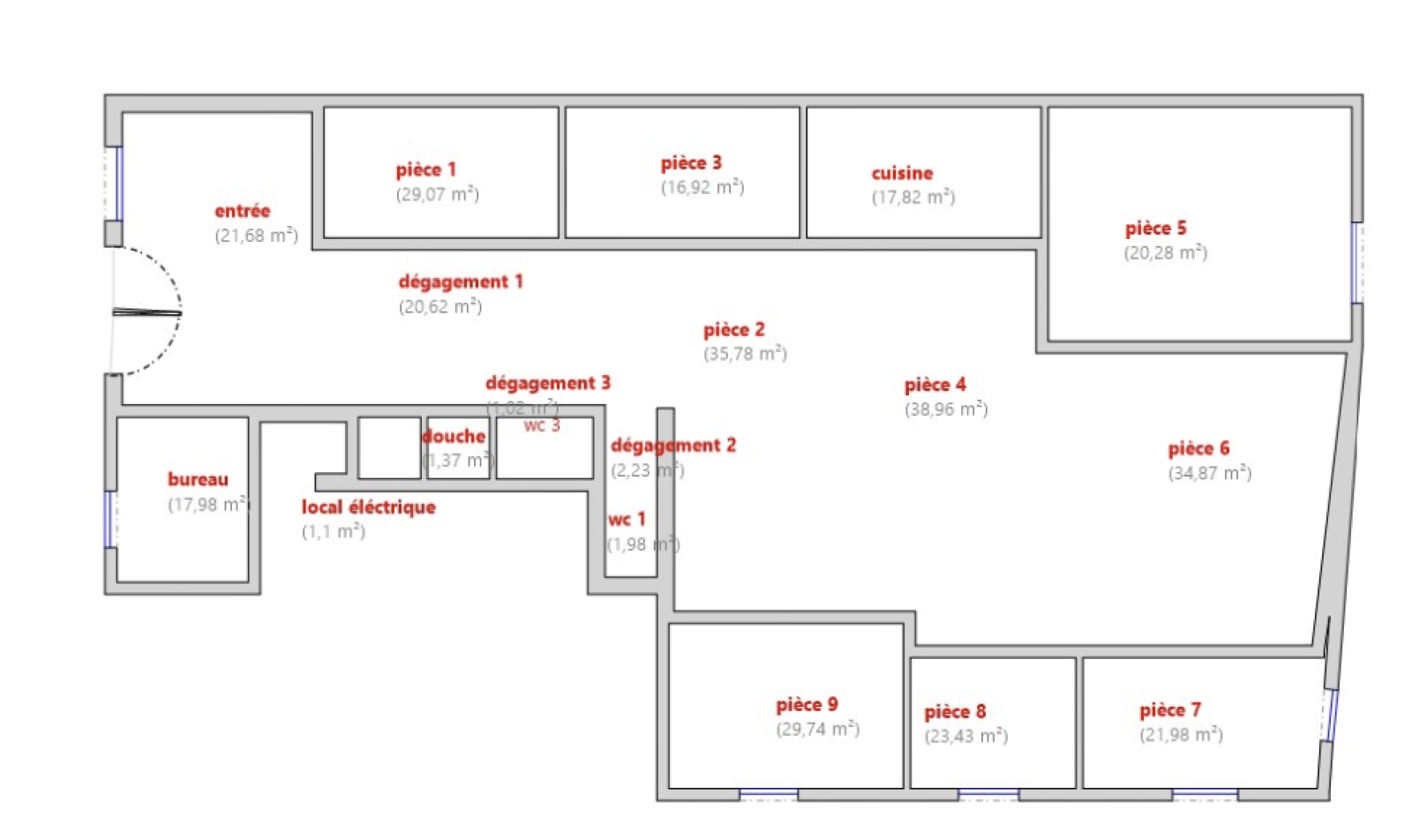
Très beau local PMR en excellent état disposant de nombreux points de lumières et d'une belle devanture de 8m sur rue. Local de plain pieds de 340m2 environ composé de 8 pièces fermées et vitrées de 17 à 30m2 dont deux possibles à usage de cuisine, d'un bel accueil de 22m2 et d'un bel espace ouvert (open space) de 120m2 environ cloisonable, ce local dispose également de deux blocs WC et d'une douche. Nombreux points d'eau.
Au sous sol vous trouverez 4 places de stationnements en enfilade ainsi q'un grand garage de 50m2 à usage de parking ou de stockage.
Très bon état général (électricité neuve, peintures et sols refaits, cablage RJ45, rideaux métalliques, entrée pallière).
A visiter dès maintenant : 06 67 03 35 58 - Julien TAIEB
Agent commercial indépendant - Réseau Expertimo - RSAC de Marseille 798 762 035
Copropriété de 35 lots - absence de procédure en cours - DPE vierge - Absence d'amiante.
Annonce proposée par un agent commercial
Les informations sur les risques auxquels ce bien est exposé sont disponibles sur le site Géorisques
* HC : Hors charges
Localisation Du bien
-
Commerces et santé
-
Loisirs
-
Ecoles
-
Transports
-
Pratique
Les infos Energetiques
La base légale du traitement repose sur l’intérêt légitime de l'Agence / du Réseau.
Elles sont conservées jusqu'à demande de suppression et sont destinées à l'Agence / au Réseau.
Conformément à la loi « informatique et libertés », vous pouvez exercer votre droit d'accès aux données vous concernant et les faire rectifier en contactant l'Agence / le Réseau.
Si vous estimez, après avoir contacté l'Agence / le Réseau, que vos droits « Informatique et Libertés » ne sont pas respectés, vous pouvez adresser une réclamation à la CNIL.
Nous vous informons de l’existence de la liste d'opposition au démarchage téléphonique « Bloctel », sur laquelle vous pouvez vous inscrire ici : https://www.bloctel.gouv.fr
Dans le cadre de la protection des Données personnelles, nous vous invitons à ne pas inscrire de Données sensibles dans le champ de saisie libre
Ce site est protégé par reCAPTCHA, les Politiques de Confidentialité et les Conditions d'Utilisation de Google s'appliquent.
