Les infos Essentielles
** Trop tard - sous promesse d'achat ! **
Visite virtuelle disponible sur simple demande.
Vous cherchez un appartement spacieux, très très récent, lumineux, bien agencé et fonctionnel, tout en étant au calme? Vous venez de trouver!
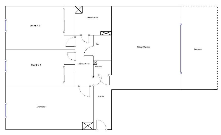
Louis ''Le Québécois'' vous propose de découvrir rapidement ce superbe appartement T4 de 2023 (Donc toujours sous garantie décennale) d'une surfacce loi carrez de 84 m² loi carrez situé au premier étage sur deux (avec ascenseur ) d'un immeuble récent de , comprenant trois chambres spacieuses, une grande terrasse de 15,5 mètres carrés exposée sud-ouest de idéale pour profiter des beaux jours, ainsi que deux garages privatifs indépendants en sous-sol (15.37 et 14.54 mètres carrés), côte à côte avec chacun leur porte.
L'appartement est traversant L'exposition du séjour sud-ouest vous garantit une belle luminosité tout au long de la journée. Les 3 chambres donnent sur une colline en pleine nature vous garantissant un sommeil paisible.
Les 3 chambres ont une belle surface (15,22m 14,06 et 14,08 mètres carrés) et donnent sur la colline au calme sans nuisance aucune. Vous y passerez des nuits paisibles et reposantes.
Vous bénéficierez d'une salle de bain moderne, d'un WC séparé et d'un cadre de vie agréable, au calme. Le bien n'est pas meublé et dispose d'un excellent classement énergétique (DPE 63: A, GES 2 : A également). Consommation d'énergie minime grâce à l'isolation et au ballon d'eau chaude thermodynamique !
Idéal pour une famille à la recherche de confort et de praticité, à proximité des commodités d'Auriol.
Il y a également plusieurs espaces de parking visiteurs pour le confort de vos proches qui assurément viendront vous rendre visite ;)
** Les informations sur les risques auxquels ce bien est exposé sont disponibles sur le site Géorisques : www.georisques.gouv.fr **
Annonce proposée par un agent commercial
Les informations sur les risques auxquels ce bien est exposé sont disponibles sur le site Géorisques
Localisation Du bien
-
Commerces et santé
-
Loisirs
-
Ecoles
-
Transports
-
Pratique
Les infos Energetiques
Ce site est protégé par reCAPTCHA, les Politiques de Confidentialité et les Conditions d'Utilisation de Google s'appliquent.
Détails des diagnostics énergétiques
Montant estimé des dépenses annuelles d'énergie pour un usage standard est compris entre 510 € et 750 € . Prix moyens des énergies indexés sur les années 2021, 2022 et 2023 (abonnements compris).
